
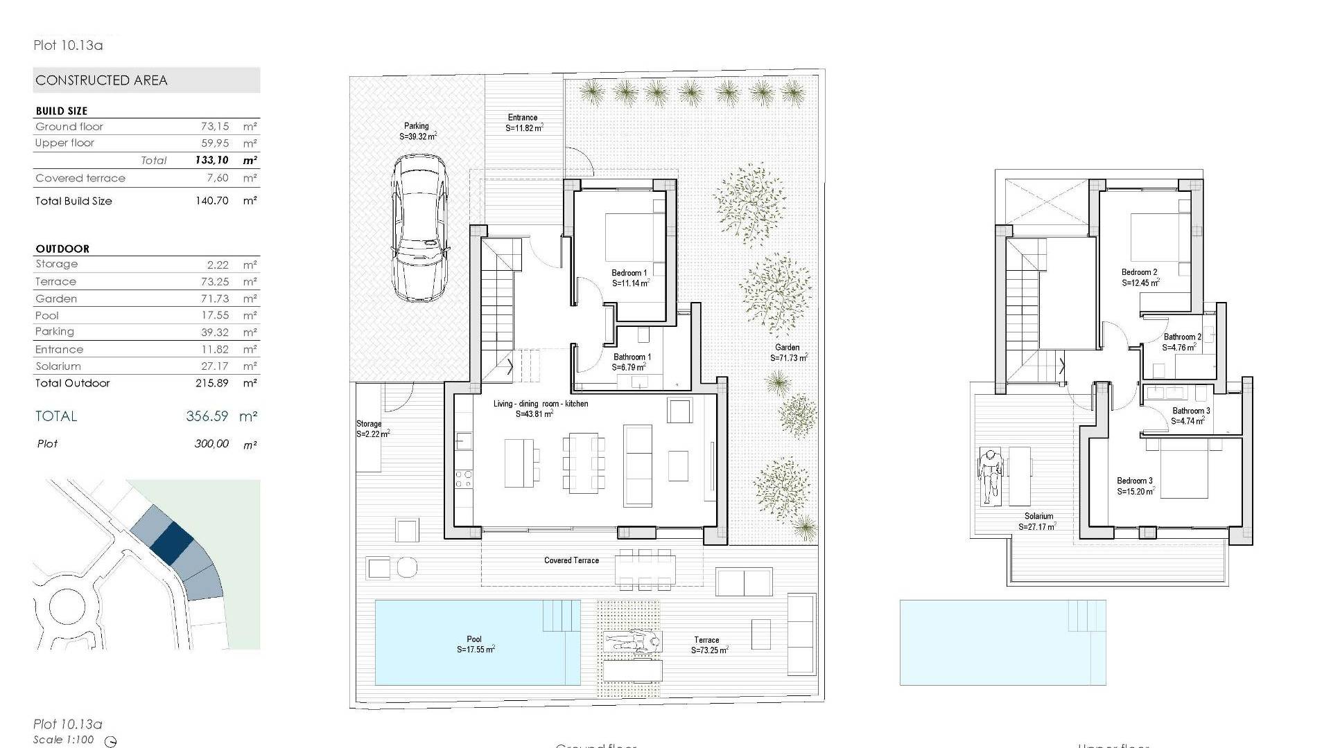
Neubau-Villen in erster Reihe am Roda Golf mit privatem Pool Exklusives Wohnen am Golfplatz an der Costa Cálida Diese modernen Villen in erster Reihe in Roda Golf (Murcia) bieten die perfekte Mischung aus Luxus, Komfort und mediterranem Lebensstil. Nur 3 km von den goldenen Stränden des Mar Menor entfernt, ist dieses Wohnprojekt ideal für Golfliebhaber, Wassersportler und diejenigen, die ein ruhiges und dennoch gut angebundenes Zuhause an der Costa Cálida suchen. Die Anlage ist umgeben von Dienstleistungen, Restaurants, Einkaufsmöglichkeiten und Sportanlagen, die den Komfort des täglichen Lebens gewährleisten. Geräumige Villen mit privaten Pools Jede Villa ist durchdacht auf zwei Ebenen mit einer Gesamtfläche von 140 m² angelegt. Der Grundriss umfasst: 3 Schlafzimmer (2 mit eigenem Bad) 3 voll ausgestattete Badezimmer Helles Wohnzimmer mit offener Küche Schlafzimmer im Erdgeschoss für mehr Komfort Zwei Schlafzimmer im ersten Stock mit direktem Zugang zur überdachten Terrasse Genießen Sie das Leben im Freien mit einem privaten Swimmingpool, einer großzügigen Terrasse im Erdgeschoss und einer Sonnenterrasse im ersten Stock, die einen unverbauten Blick auf den Golfplatz und den ganzen Tag Sonne bietet. Zu jeder Immobilie gehören außerdem ein privater Parkplatz auf dem Grundstück und ein großer Außenabstellraum. Hochwertige Ausstattung Diese Häuser sind nach den höchsten Standards gebaut und verfügen über: Fußbodenheizung in den Badezimmern Motorisierte Aluminiumrollläden in allen Schlafzimmern Komplett ausgestattete Badezimmer mit Möbeln, Spiegeln, Beleuchtung und Duschwänden aus Glas Moderne Küchen mit Geräten Vorinstallation für eine Klimaanlage im Wohnzimmer und in den Schlafzimmern Solarzellen mit Wechselrichter für Energieeffizienz Erstklassige Lage in Roda Golf Diese Villen befinden sich im prestigeträchtigen Roda Golf & Beach Resort und sind von üppigen Fairways und mediterranen Landschaften umgeben. Entfernungen zu den wichtigsten Sehenswürdigkeiten: Strände von Mar Menor: 3 km Einkaufszentrum Dos Mares: 5 km Yachthafen Lo Pagán: 6 km Roda Golf Clubhaus: zu Fuß erreichbar Internationaler Flughafen Murcia (Corvera): 35 km Flughafen Alicante: 85 km Stadt Cartagena: 30 km Leben Sie den mediterranen Lebensstil Ob als Dauerwohnsitz, Urlaubsdomizil oder Mietinvestition – diese Villen bieten die perfekte Kombination aus Eleganz, Funktionalität und Lage. Kontaktieren Sie uns noch heute, um einen Besichtigungstermin zu vereinbaren und sich Ihre Villa in erster Reihe im Roda Golf zu sichern. Ihr Traumhaus an der Costa Cálida wartet auf Sie!
Diese hier angegebenen Informationen unterliegen Fehlern und sind nicht Bestandteil eines Vertrages. Das Angebot kann ohne vorherige Ankündigung geändert oder zurückgezogen werden. Die Preise beinhalten keine Einkaufskosten.