
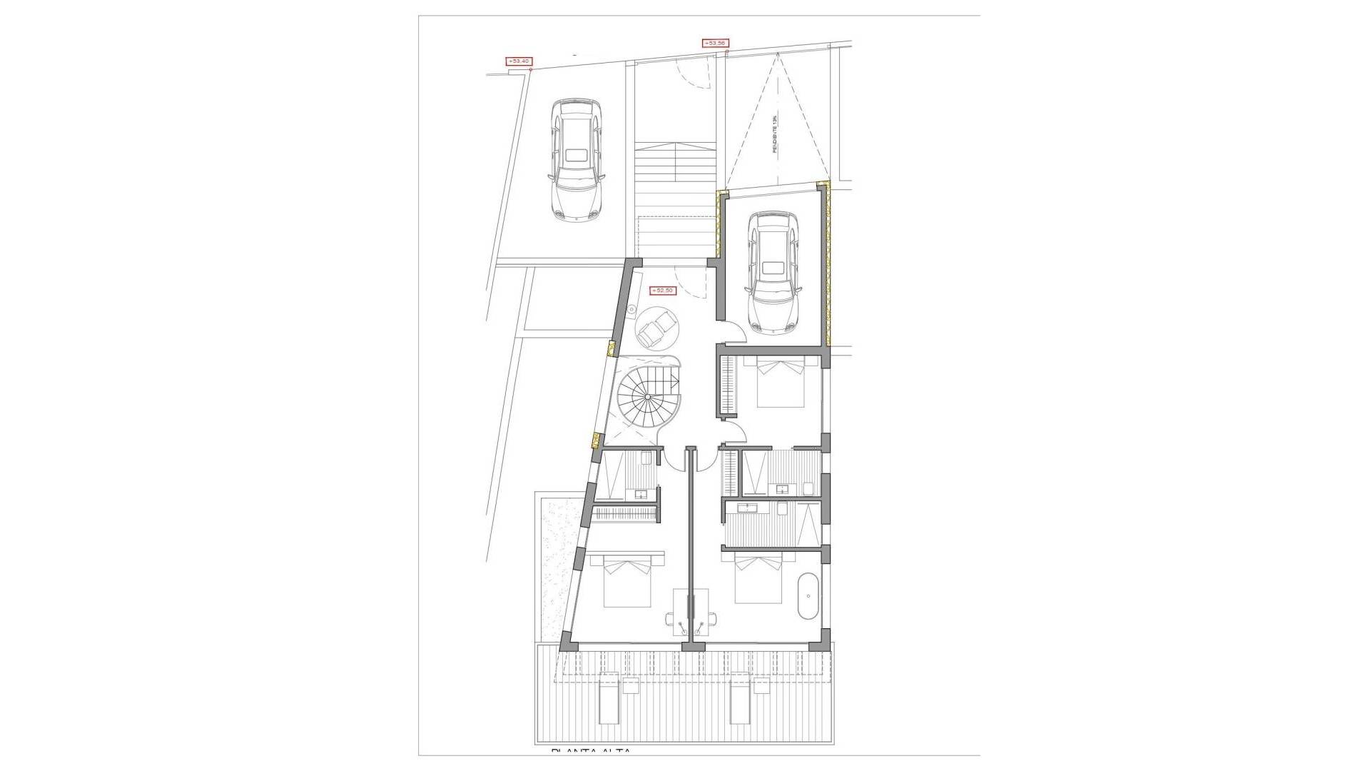
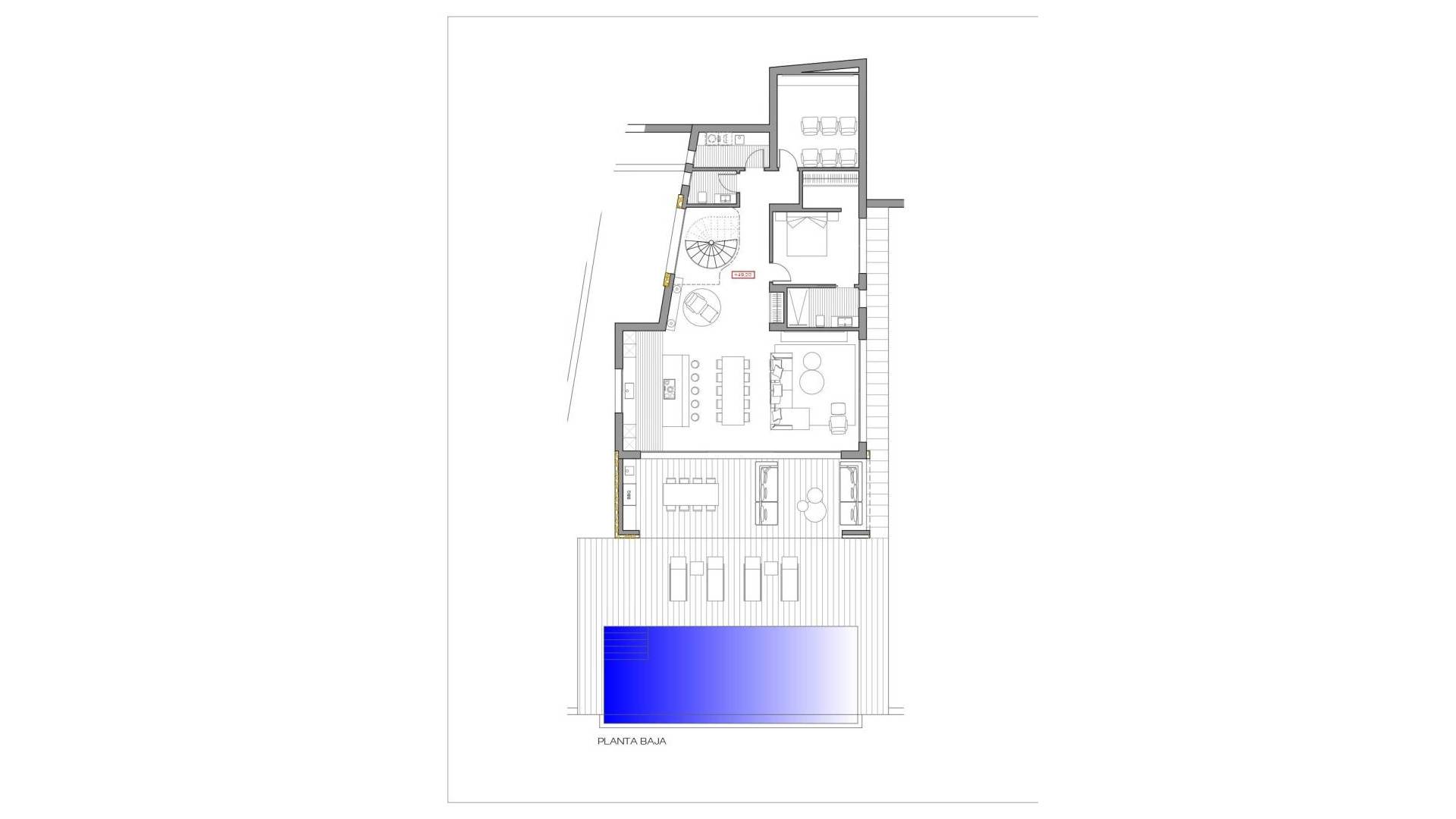
Luxuriöse Neubau-Villa mit Meerblick in Moraira Erstklassige Lage in der Nähe des Strandes und des Stadtzentrums Diese luxuriöse Villa in Moraira liegt nur 1,8 km vom Strand und dem lebhaften Stadtzentrum entfernt und bietet eine ideale Balance zwischen Privatsphäre und Komfort. Moraira, eine charmante Küstenstadt an der Costa Blanca, ist bekannt für ihre feinen Sandstrände, das kristallklare Wasser und den mediterranen Lebensstil. Die Stadt bietet eine große Auswahl an Restaurants, Bars, Supermärkten und einen lebhaften Yachthafen. Der internationale Flughafen Alicante ist über die Autobahn A7 in ca. 90 km (1h15) zu erreichen, während der Flughafen Valencia in ähnlicher Entfernung nördlich liegt, was die Anreise einfach und bequem macht. Modernes Design mit großzügigen Innenräumen Die Villa wurde auf einem großzügigen 912 m² großen Grundstück erbaut und verfügt über eine Gesamtfläche von 350 m² auf zwei Etagen. Das Haus verfügt über 4 Schlafzimmer mit eigenem Bad sowie ein Gäste-WC, die alle mit hochwertigen Materialien ausgestattet sind. Das Erdgeschoss präsentiert sich mit einem hellen, offenen Wohn- und Essbereich, der nahtlos in eine moderne Küche mit zentraler Kochinsel übergeht. Von hier aus führen große Schiebetüren direkt auf die Terrasse, zur Sommerküche und zum privaten Pool. Ein Schlafzimmer mit eigenem Bad, ein Gäste-WC, eine Waschküche und ein vielseitig nutzbarer Raum vervollständigen diese Etage. Elegantes Obergeschoss mit Meerblick Eine Designertreppe führt in das Obergeschoss, das drei weitere Schlafzimmer mit eigenem Bad sowie eine geräumige Eingangshalle und eine private Terrasse mit spektakulärem Meerblick beherbergt. Die Immobilie verfügt außerdem über eine Garage, einen privaten Parkplatz, Fußbodenheizung, Klimaanlage, Doppelverglasung und eine verstärkte Sicherheitstür, die maximalen Komfort und Sicherheit gewährleisten. Mediterrane Oase im Freien Der Außenbereich wurde als privater Rückzugsort konzipiert und kombiniert Landschaftsgärten, überdachte und offene Terrassen, einen privaten Swimmingpool mit Außendusche und einen Grillbereich, der sich perfekt für gesellige Anlässe eignet. Die Südostausrichtung garantiert den ganzen Tag über viel Tageslicht, sodass jeder Winkel der Villa hell und einladend wirkt. Lifestyle in Moraira Moraira ist bekannt für seine entspannte und dennoch kosmopolitische Atmosphäre. Familien werden den sicheren Sandstrand lieben, während Naturliebhaber atemberaubende Küstenwanderungen mit Blick auf den Peñón de Ifach in Calpe genießen können, der nur 12 km entfernt liegt. Golfbegeisterte finden ebenfalls ausgezeichnete Golfplätze im Umkreis von 10 bis 15 km. Ihre Traumvilla erwartet Sie Erleben Sie luxuriöses Wohnen in Moraira mit dieser exklusiven Villa. Kontaktieren Sie uns noch heute, um einen Besichtigungstermin zu vereinbaren und dieses mediterrane Paradies zu Ihrem neuen Zuhause zu machen. 489
Diese hier angegebenen Informationen unterliegen Fehlern und sind nicht Bestandteil eines Vertrages. Das Angebot kann ohne vorherige Ankündigung geändert oder zurückgezogen werden. Die Preise beinhalten keine Einkaufskosten.