
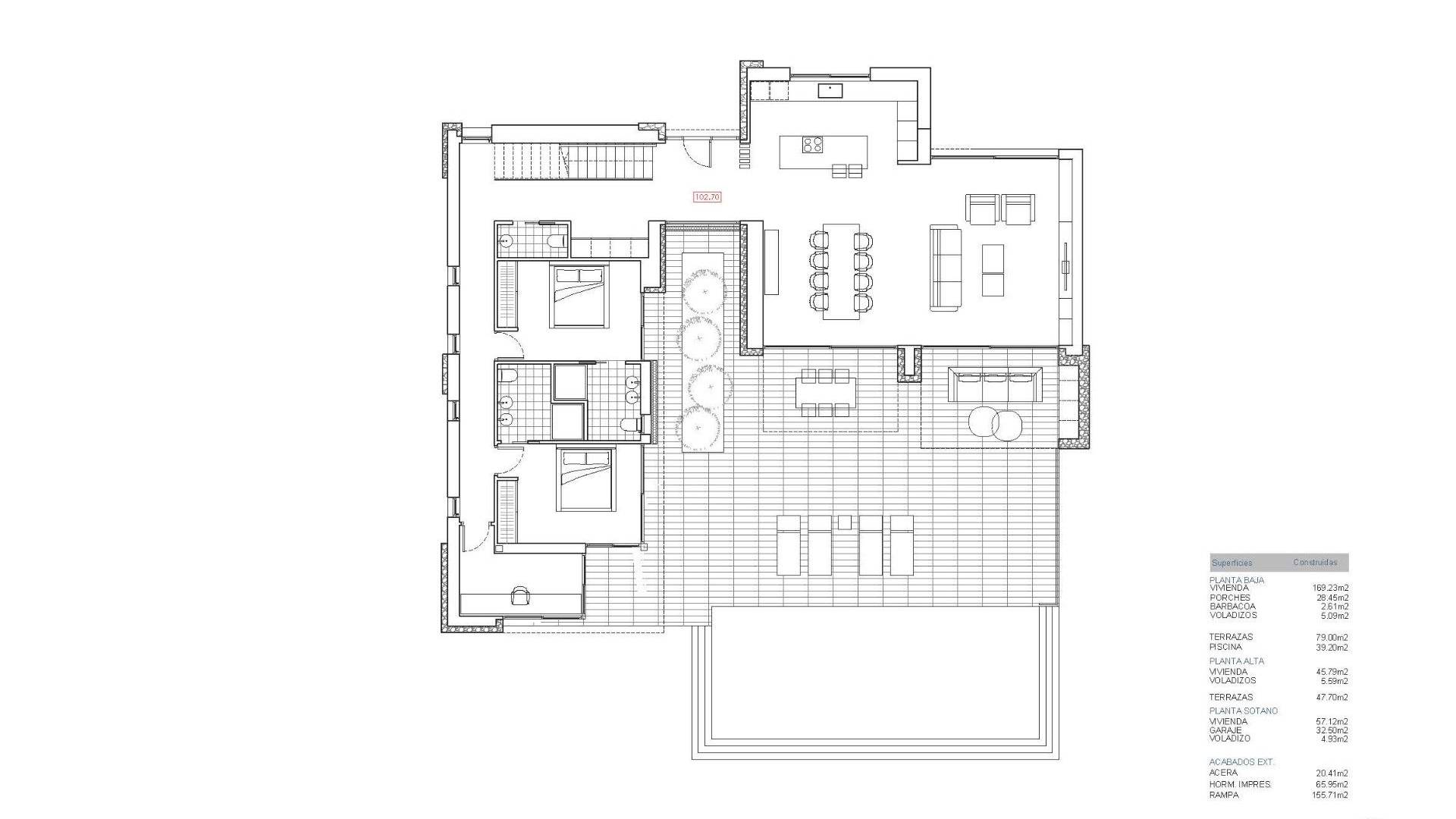
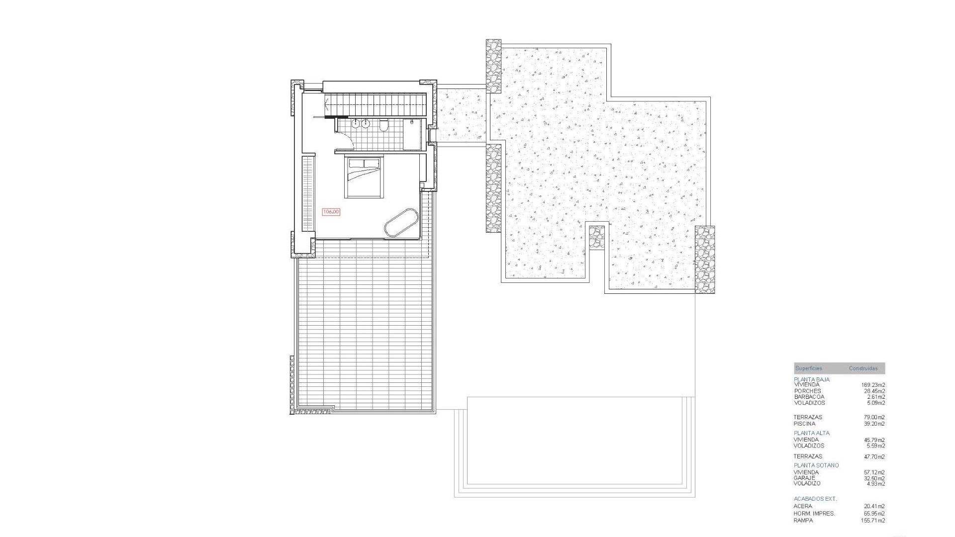
Luxuriöse Neubauvilla mit Meerblick in San Jaime, Benissa Exklusive Residenz in erstklassiger Lage an der Costa Blanca Diese außergewöhnliche Neubauvilla befindet sich in der prestigeträchtigen Gegend San Jaime in Benissa und bietet Meerblick, Privatsphäre und modernes mediterranes Design, nur 2 km vom Strand entfernt. Die Immobilie liegt in einer ruhigen Sackgasse und garantiert Ruhe, während sie gleichzeitig in der Nähe der wichtigsten Dienstleistungen und Freizeiteinrichtungen an der nördlichen Costa Blanca liegt. San Jaime ist eine der begehrtesten Wohngegenden an der Costa Benissa und bekannt für seine eleganten Villen, die grüne Umgebung und die Nähe zu Golfplätzen, Stränden und charmanten Küstenstädten. Die Villa befindet sich auf einem großzügigen 1021 m² großen Grundstück mit einer Gesamtfläche von 351 m² und befindet sich derzeit im Bau, wobei die Struktur bereits fertiggestellt ist. Durchdachtes Design auf drei Ebenen Diese moderne Villa erstreckt sich über drei sorgfältig geplante Etagen und verbindet Funktionalität mit raffinierter Ästhetik. Die Eingangsebene umfasst eine private Garage, einen Waschraum und einen Technikraum, sodass praktische Räume diskret in das Gesamtdesign integriert sind. Im Erdgeschoss verbindet sich der offene Wohn- und Essbereich nahtlos mit einer voll ausgestatteten Küche und schafft so eine helle und einladende Atmosphäre, die ideal für das tägliche Leben und zur Unterhaltung ist. Auf dieser Ebene befinden sich auch zwei geräumige Schlafzimmer, jedes mit eigenem Bad. Die Außenterrasse und der private Swimmingpool erweitern den Wohnraum und bieten einen idealen Rahmen, um sich zu entspannen, zu speisen und das mediterrane Klima mit wunderschönem Meerblick zu genießen. Das Obergeschoss ist der Master-Suite vorbehalten, die über ein eigenes Bad und direkten Zugang zu einer großen offenen Terrasse verfügt, von der aus Sie den Panoramablick und friedliche Sonnenuntergänge genießen können. Hochwertige Ausstattung und moderner Komfort Die Villa wird mit hochwertigen Oberflächen und fortschrittlichen Systemen geliefert, um maximalen Komfort und Effizienz zu gewährleisten, darunter: Voll ausgestattete Küche mit Geräten Designer-Badezimmer mit Möbeln Elektrische Jalousien Video-Gegensprechanlage und Alarmanlage Aerothermisches System für Warmwasser und Fußbodenheizung Voll installierte Klimaanlage Erstklassige Lage in der Nähe von Golf, Stränden und Dienstleistungen Die Immobilie befindet sich neben dem Club de Golf Ifach und in der Nähe des beliebten Supermarkts Pepe La Sal. Die Küste und die Buchten von Benissa Costa sind nur 2 km entfernt. Entfernungen zu wichtigen Sehenswürdigkeiten Strand 2 km Moraira 5 km Calpe 8 km Club de Golf Ifach 0,5 km Flughafen Alicante 80 km Flughafen Valencia 110 km Sichern Sie sich Ihre Traumvilla in Benissa Costa Diese herausragende Villa vereint moderne Architektur, Meerblick und eine privilegierte Lage in San Jaime. Kontaktieren Sie uns noch heute für weitere Informationen oder um eine private Besichtigung dieser exklusiven Neubauimmobilie in Benissa zu vereinbaren.
Diese hier angegebenen Informationen unterliegen Fehlern und sind nicht Bestandteil eines Vertrages. Das Angebot kann ohne vorherige Ankündigung geändert oder zurückgezogen werden. Die Preise beinhalten keine Einkaufskosten.