
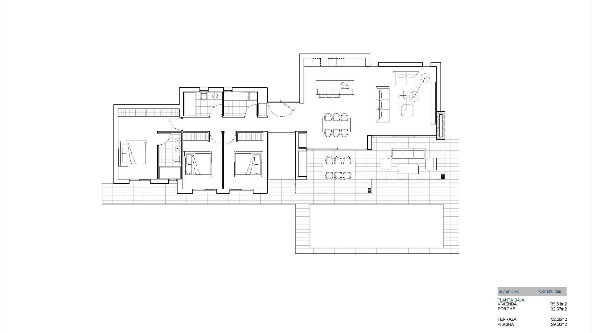
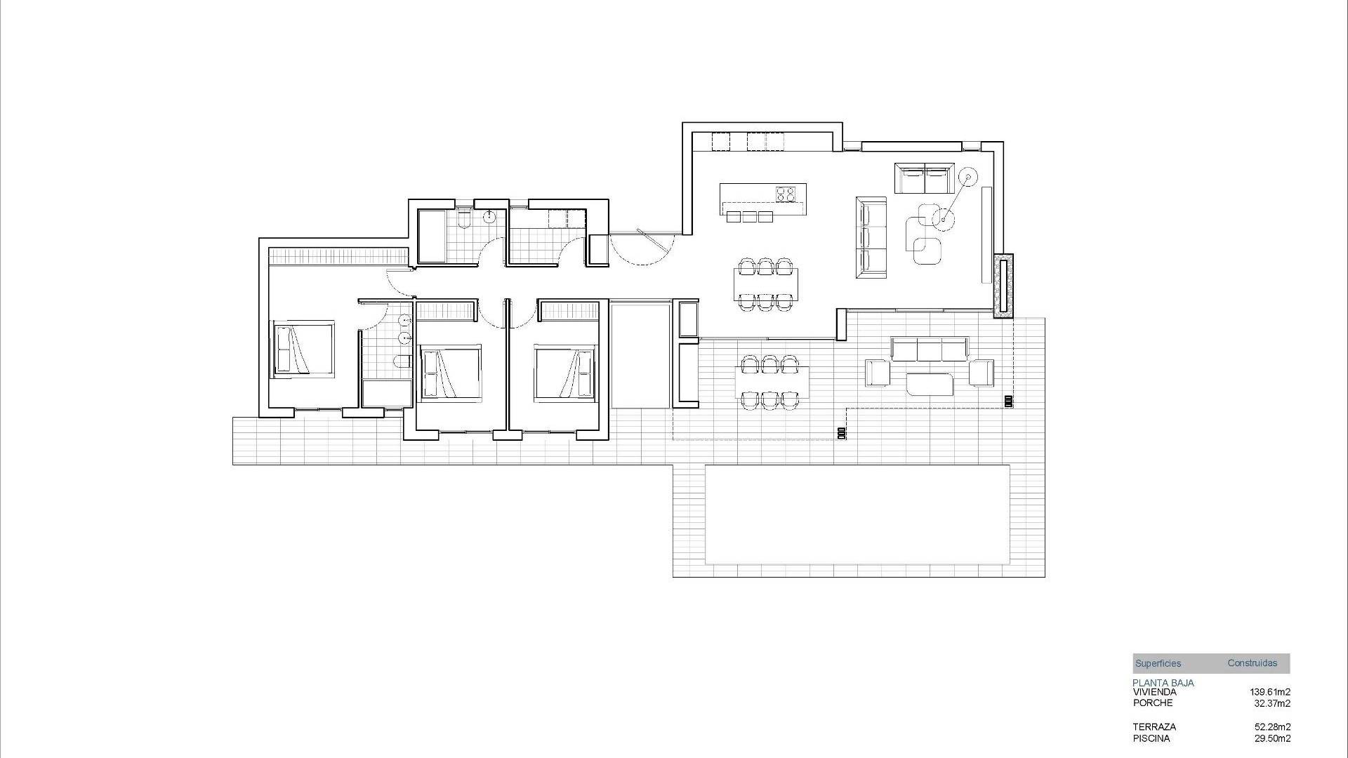
NOWA WILLA W CALPE Willa New Build położona w jednej z dzielnic mieszkalnych preferowanych przez wszystkich mieszkańców Calpe, ze względu na bliskość centrum miasta, plaż, a jednocześnie dlatego, że jest to cicha, ale bezpieczna okolica, gdyż znajduje się na obrzeżach centrum miasta. Nieruchomość została zaplanowana na jednym piętrze, co czyni ten projekt praktycznym i wygodnym. Cała działka jest ogrodzona i posiada wewnątrz żywopłot z cyprysów, co zapewnia prywatność i przyjemne otoczenie. Z głównego wejścia do domu wchodzimy do holu, z którego po lewej stronie mamy dostęp do części dziennej, składającej się z salonu z jadalnią i otwartej kuchni z wyspą. Z salonu mamy dostęp do części zewnętrznej, gdzie mamy zadaszoną strefę ganku z grillem oraz duży taras z basenem o powierzchni 40m2. Po prawej stronie domu znajduje się część sypialna, z 4 sypialniami: master suite z garderobą i łazienką, kolejna sypialnia z łazienką i dwie kolejne sypialnie dzielące łazienkę. Znajduje się tam również strefa pralni. Na zewnątrz znajduje się parking z pergolą w formie żagla na dwa samochody. Calpe, jedno z miast La Marina Alta, leży na północnym wybrzeżu prowincji Alicante, w otoczeniu miast Altea, Benidorm, Teulada-Moraira, Benissa. Calpe ma wspaniałą mieszankę starej walenckiej kultury i nowoczesnych udogodnień turystycznych. Jest to świetna baza, z której można zwiedzać okolicę lub korzystać z wielu lokalnych plaż. W samym Calpe znajdują się trzy z najpiękniejszych piaszczystych plaż na wybrzeżu. Calpe posiada również dwa kluby żeglarskie: Real Club Náutico de Calpe i Club Náutico de Puerto Blanco. Wioska rybacka Calpe teraz przekształcony w magnesie turystycznym, miasto siedzi w idealnym miejscu, łatwo dostępne przez autostradę A7 i N332, który biegnie z Walencji do Alicante; jego około 1 godziny jazdy od lotniska w Alicante i 1,5 godziny do lotniska Valencias.
Podane informacje mogą zawierać błędy i nie stanowią części żadnej umowy. Oferta może zostać zmieniona lub wycofana bez uprzedzenia. Ceny nie obejmują kosztów zakupu.