
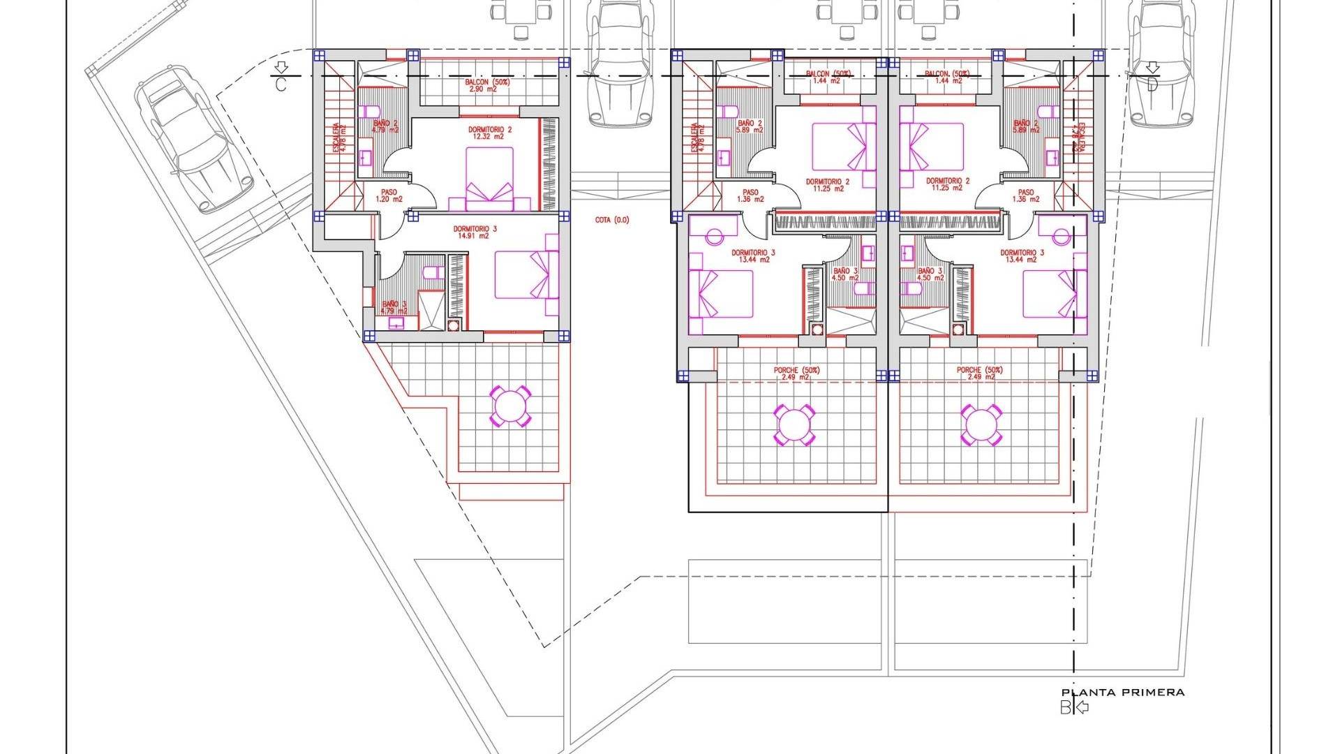
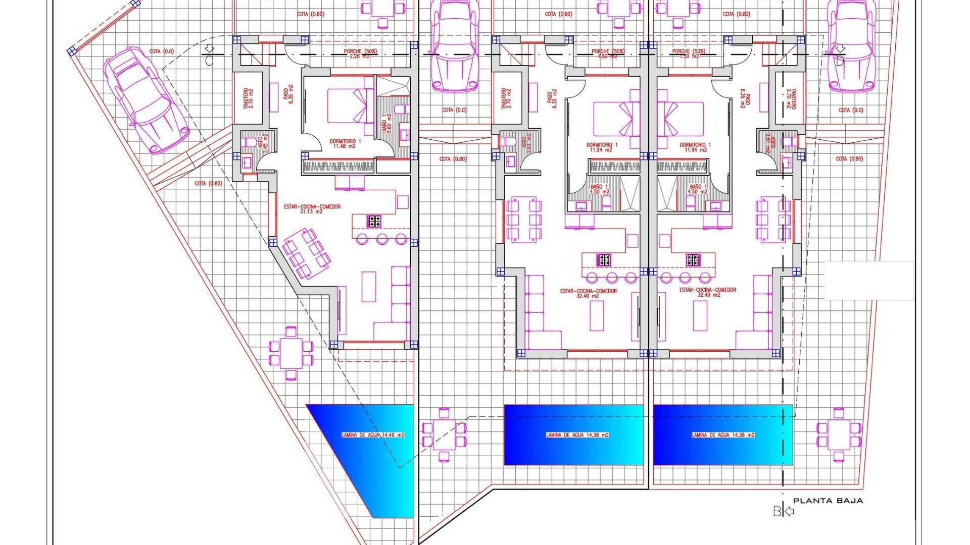
Nowe wille z prywatnym basenem w Daya Nueva, Costa Blanca Nowoczesne wille bliźniacze i wolnostojące o doskonałym projekcie Odkryj tę ekskluzywną inwestycję składającą się z trzech nowo wybudowanych willi, zarówno bliźniaczych, jak i wolnostojących, położonych w uroczej miejscowości Daya Nueva, w południowej części prowincji Alicante. Te stylowe nieruchomości zostały zaprojektowane z myślą o komforcie, świetlistości i prywatności, oferując wyjątkowe wrażenia z mieszkania zaledwie kilka minut od plaż La Marina i Guardamar del Segura. Każda willa posiada jasny i przestronny salon z jadalnią, otwartą kuchnię z barem śniadaniowym, trzy sypialnie, trzy w pełni wyposażone łazienki oraz toaletę dla gości. Ciesz się śródziemnomorskim klimatem na dwóch górnych tarasach, zrelaksuj się przy prywatnym basenie lub zaparkuj wygodnie na własnej działce. Komfort i jakość w każdym szczególe Domy te zostały zaprojektowane tak, aby maksymalnie wykorzystać naturalne światło i przestrzeń zewnętrzną. Najważniejsze cechy: Prywatny basen i parking na działce Dwa odkryte tarasy na piętrze Opcjonalne solarium na dachu zapewniające dodatkową przestrzeń na świeżym powietrzu (za dodatkową opłatą) W pełni wyposażone łazienki z kabinami prysznicowymi Klimatyzacja kanałowa Zautomatyzowane aluminiowe rolety w sypialniach, kuchni i łazienkach Otwarta przestrzeń parteru łączy kuchnię, jadalnię i salon w spójną i jasną przestrzeń mieszkalną, która otwiera się bezpośrednio na taras i basen — idealną do relaksu lub rozrywki. Doskonała lokalizacja w pobliżu wszystkich udogodnień Położone w spokojnej dzielnicy mieszkalnej Daya Nueva, te wille znajdują się zaledwie 3 minuty spacerem od centrum miejscowości, gdzie znajdują się sklepy, restauracje i niezbędne usługi. Ta spokojna okolica oferuje idealne połączenie uroku wsi i wygody życia nad morzem. Odległości do najważniejszych atrakcji: Plaże Guardamar del Segura i La Marina: 12 km (10 minut) La Marquesa Golf (Ciudad Quesada): 9 km (10 minut) Centrum handlowe Habaneras (Torrevieja): 20 km (20 minut) Międzynarodowe lotnisko w Alicante: 38 km (25 minut) Szpital Vega Baja: 14 km (15 minut) Twój idealny dom na Costa Blanca czeka na Ciebie Te wille są idealne jako stałe miejsce zamieszkania, dom wakacyjny lub inwestycja. Dzięki nowoczesnej architekturze, przemyślanej konstrukcji i spokojnej, ale dobrze skomunikowanej lokalizacji, jest to wyjątkowa okazja do nabycia wysokiej jakości domu na Costa Blanca. Skontaktuj się z nami już dziś, aby uzyskać więcej informacji i umówić się na wizytę.
Podane informacje mogą zawierać błędy i nie stanowią części żadnej umowy. Oferta może zostać zmieniona lub wycofana bez uprzedzenia. Ceny nie obejmują kosztów zakupu.