
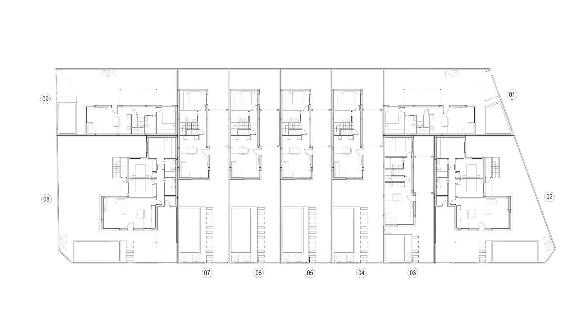
Nowe wille z prywatnym basenem w Los Alcázares, Costa Cálida Ekskluzywne nowoczesne wille zaledwie 700 metrów od morza Odkryj tę ekskluzywną inwestycję obejmującą 9 nowych willi w Los Alcázares, jednej z najbardziej cenionych miejscowości na wybrzeżu Costa Cálida ze względu na bliskość morza, spokojną atmosferę i doskonałą ofertę usług. Każda willa posiada prywatny basen, niezależny garaż i została zaprojektowana z myślą o komforcie, funkcjonalności i nowoczesnym stylu. Domy są rozmieszczone na jednym lub dwóch piętrach i mają 3 sypialnie i 2 łazienki, w pełni wyposażoną kuchnię na otwartym planie, przestronny salon z jadalnią, taras i ogród na parterze oraz prywatny solarium na zadaszonym piętrze z letnią kuchnią. Dzięki różnym orientacjom można cieszyć się słońcem przez cały dzień, przez cały rok. Wysokiej jakości wyposażenie Wille te zostały zaprojektowane z najwyższej jakości materiałów i oferują: Prywatny basen z prysznicem zewnętrznym Kuchnia wyposażona w sprzęt AGD: lodówka, piekarnik, mikrofalówka do zabudowy, płyta ceramiczna, okap i zmywarka do naczyń Szafy wnękowe z szufladami Kompletne łazienki z meblami, lustrem z oświetleniem i kabinami prysznicowymi Instalacja pod klimatyzację Instalacja 2 paneli słonecznych Letnia kuchnia na tarasie słonecznym Zadaszone miejsce parkingowe na działce Niezrównana lokalizacja na Costa Cálida Położone zaledwie 700 metrów od plaż Mar Menor, domy te pozwalają cieszyć się wyjątkowym otoczeniem natury z spokojnymi i ciepłymi wodami. Los Alcázares łączy w sobie spokojny styl życia z dostępnością wszystkich usług: supermarketów, restauracji, obiektów sportowych i placówek służby zdrowia. Idealne miejsce zarówno na stałe zamieszkanie, jak i na wakacje. Odległości do najważniejszych atrakcji Plaża Mar Menor: 0,7 km Pola golfowe (Roda, La Serena, Mar Menor Golf): od 3 do 10 km Międzynarodowe lotnisko w Murcji: 30 km Kartagena: 22 km Centrum handlowe Dos Mares: 13 km Marina w Los Alcázares: 2 km Twoja oaza słońca i spokoju nad Morzem Śródziemnym Te wille oferują idealne połączenie nowoczesnego designu, prywatności, komfortu i doskonałej lokalizacji. Skontaktuj się z nami już dziś i umów się na wizytę, aby odkryć swój nowy dom nad morzem.
Podane informacje mogą zawierać błędy i nie stanowią części żadnej umowy. Oferta może zostać zmieniona lub wycofana bez uprzedzenia. Ceny nie obejmują kosztów zakupu.
© 2026 Costa Weflen Group · Informacje prawne · Prywatność · Cookies · Mapa strony
Projekt: Mediaelx
Przede wszystkim dziękujemy za kontakt.
Otrzymaliśmy Twoje zapytanie dotyczące nieruchomości o numerze referencyjnym: N9005. Jeden z naszych agentów skontaktuje się z Tobą jak najszybciej.
Przede wszystkim dziękujemy za kontakt.
Otrzymaliśmy prośbę o powiadomienie, jeśli cena nieruchomości o numerze referencyjnym zostanie obniżona: N9005
Tymczasem zapoznaj się z naszą selekcją podobnych nieruchomości — mogą Cię zainteresować: