Alicante (Costa Blanca) - Orihuela Vistabella Golf
Ref.: SP1152
Villa Nowy budynek

Szczegóły

  • 175m2
  • 305m2
  • 4
  • 3

Szczegóły oferty

icon Sypialnie: 4
icon Łazienki: 3
icon Powierzchnia: 175m2
icon Działka: 305m2
Klasa energetyczna
Klasa energetyczna:
B

Opis

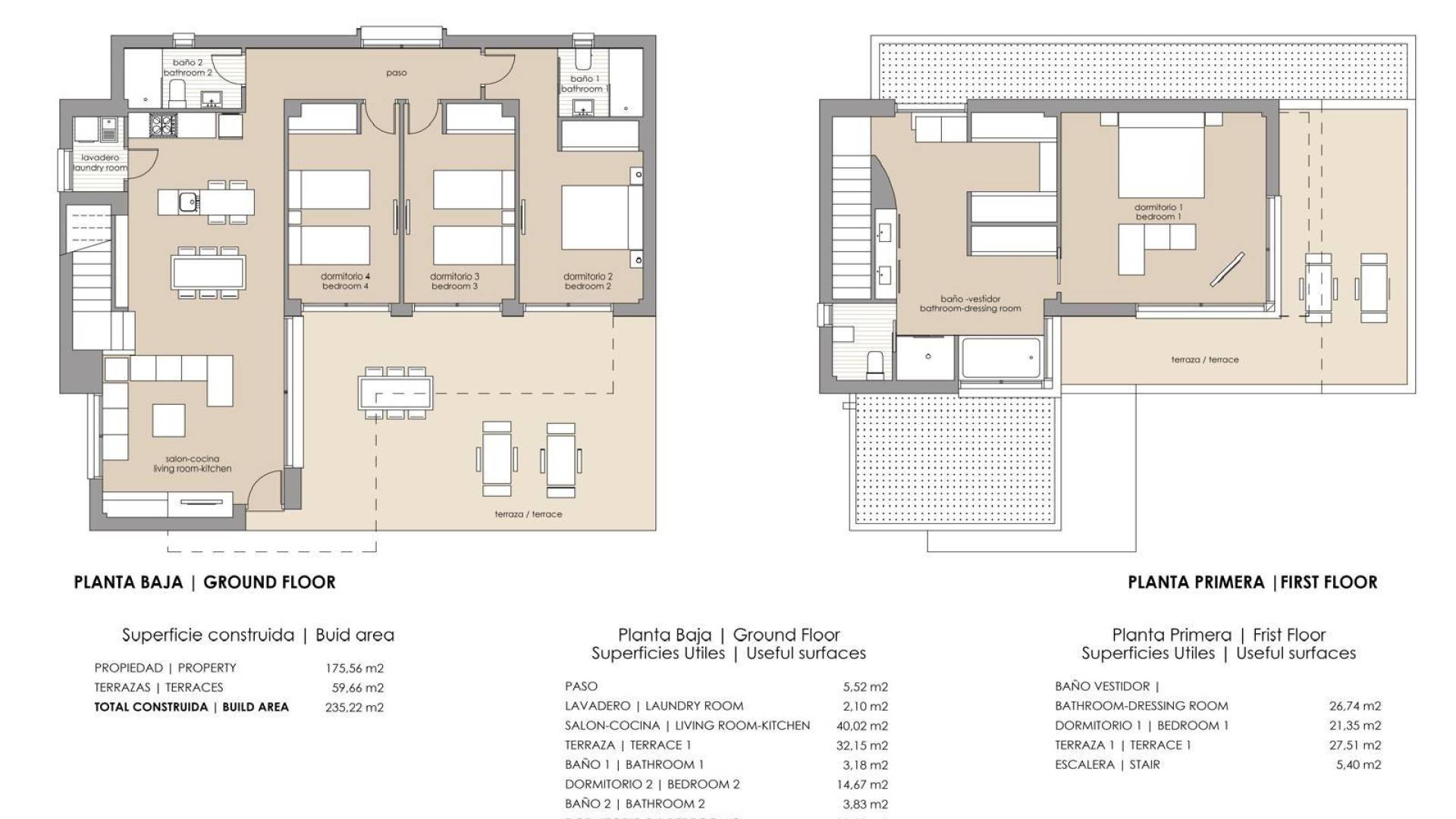
Nowe wille w ośrodku golfowym Vistabella – Orihuela Poczuj nowoczesny styl życia w stylu śródziemnomorskim w samym sercu Costa Blanca dzięki tym wspaniałym nowym willom w ośrodku golfowym Vistabella. Położona pomiędzy San Miguel de Salinas i Los Montesinos, w gminie Orihuela, ta ekskluzywna inwestycja oferuje luksus, komfort i niezrównaną lokalizację zarówno dla miłośników golfa, jak i osób poszukujących odpowiedniego stylu życia. Dwa różne modele willi Kupujący mogą wybierać spośród dwóch eleganckich projektów: Wille parterowe z 3 sypialniami, 2 łazienkami i solarium na dachu. Wille dwupoziomowe z 4 sypialniami, 3 łazienkami i tarasem solarium na pierwszym piętrze. Oba modele są położone na działkach o powierzchni około 300 m² i obejmują prywatny basen oraz parking na terenie obiektu. Najwyższa jakość i nowoczesny komfort Każda willa posiada luksusowe wykończenie, w tym w pełni zainstalowaną klimatyzację kanałową, wyposażoną kuchnię ze sprzętem AGD, oświetlenie zewnętrzne, elektryczne rolety oraz eleganckie kabiny prysznicowe w łazienkach. Połączenie stylu i funkcjonalności zapewnia dom, który jest zarówno piękny, jak i praktyczny. Ekskluzywny styl życia w ośrodku golfowym Vistabella Golf Resort to ogrodzona społeczność z 18-dołkowym polem golfowym, kortami do paddle tenisa, kręgielnią, supermarketem oraz szeroką gamą barów i restauracji. Przyszłe modernizacje podniosą standard ośrodka do poziomu prawdziwego 5-gwiazdkowego kurortu, a planowane dodatki obejmują bar szampański, bar sushi, hotel spa, sztuczną plażę, kort tenisowy, boisko do piłki nożnej i bar dla smakoszy. Doskonała lokalizacja na Costa Blanca Ośrodek oferuje doskonały dostęp do najlepszych plaż, pól golfowych i usług w regionie. Odległości do najważniejszych atrakcji: Plaża La Mata: 18 km Plaża Guardamar del Segura: 20 km Torrevieja: 15 km Lotnisko w Alicante: 55 km Lotnisko w Murcji: 68 km Villamartín Golf: 12 km Las Colinas Golf & Country Club: 14 km Twój wymarzony dom czeka Niezależnie od tego, czy szukasz stałego miejsca zamieszkania, domu wakacyjnego, czy inwestycji pod wynajem, te nowo wybudowane wille w Vistabella Golf Resort oferują wyjątkową wartość w jednym z najbardziej pożądanych nadmorskich regionów Hiszpanii. Skontaktuj się z nami już dziś, aby umówić się na oglądanie i zapewnić sobie miejsce w tej luksusowej społeczności golfowej. 489

Lokalizacja

Ekonomia

Podane informacje mogą zawierać błędy i nie stanowią części żadnej umowy. Oferta może zostać zmieniona lub wycofana bez uprzedzenia. Ceny nie obejmują kosztów zakupu.

Oblicz kredyt hipoteczny

Wymiana walut

  • Funty: 479.337 GBP
  • Rubel rosyjski: 479.337 RUB
  • Frank szwajcarski: 507.613 CHF
  • Juan chiński: 4.425.760 CNY
  • Dolar: 648.717 USD
  • Korona szwedzka: 5.940.570 SEK
  • Korona norweska: 6.058.248 NOK

Poproś o informacje

Responsable del tratamiento: Costa Weflen Group SL, Finalidad del tratamiento: Gestión y control de los servicios ofrecidos a través de la página Web de Servicios inmobiliarios, Envío de información a traves de newsletter y otros, Legitimación: Por consentimiento, Destinatarios: No se cederan los datos, salvo para elaborar contabilidad, Derechos de las personas interesadas: Acceder, rectificar y suprimir los datos, solicitar la portabilidad de los mismos, oponerse altratamiento y solicitar la limitación de éste, Procedencia de los datos: El Propio interesado, Información Adicional: Puede consultarse la información adicional y detallada sobre protección de datos Aquí.

Kontakt

© 2026 Costa Weflen Group · Informacje prawne · Prywatność · Cookies · Mapa strony

Projekt: Mediaelx

Kontakt WhatsApp
WhatsApp