
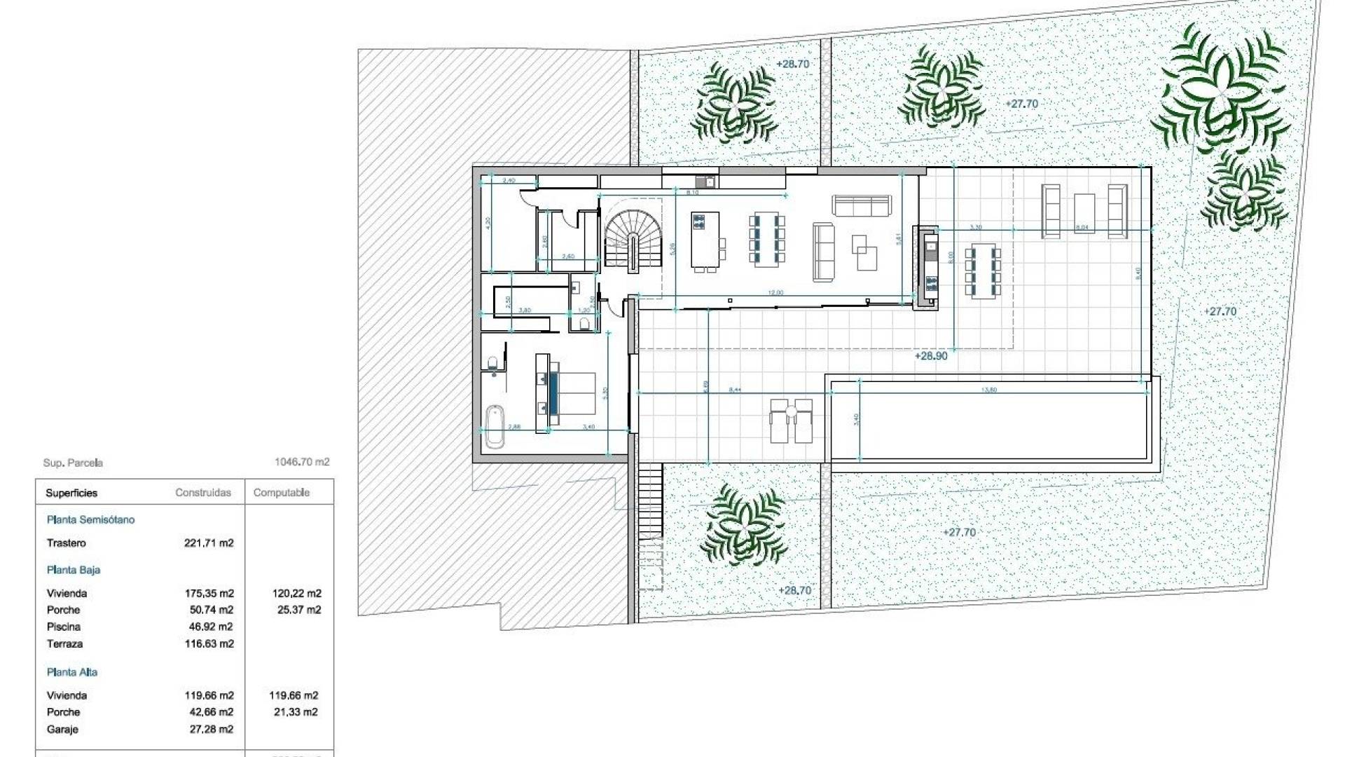
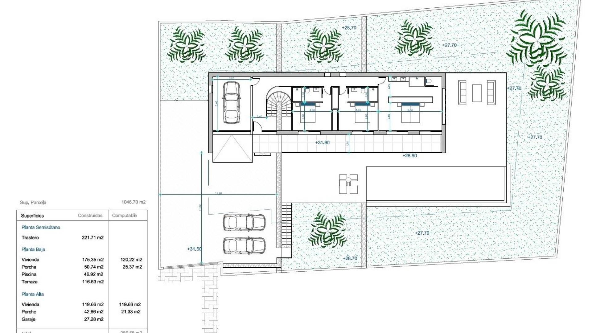
LUKSUSOWA, NOWO WYBUDOWANA WILLA W MORAIRA New Build Luksusowa willa o najlepszych właściwościach, w odległości spaceru od pięknych plaż i centrum Moraira. Ta luksusowa willa jest rozmieszczona na 3 piętrach: na parterze (147,30m2) znajduje się duży, jasny salon obok otwartej kuchni z wyspą kuchenną, toaleta dla gości oraz sypialnia z łazienką. Na zewnątrz tego piętra znajdziemy basen i miejsce do grillowania. Następnie wchodzimy na wyższe piętro (133,65m2), gdzie znajdziemy 3 przestronne pokoje z ich łazienką en suite. Wreszcie piętro piwnicy, gdzie prowadzi do podwójnego garażu i pralni. EXTRAS: Stolarka Technal z bezpiecznym szkłem, pełna kuchnia z urządzeniami Siemens, pełne łazienki i krany marki Roca, oświetlenie LED, system aerotermalny dla ciepłej wody i ogrzewania podłogowego, klimatyzacja kanałowa (ciepła i zimna) w całym domu, panele słoneczne, dopasowane szafy, rolety elektryczne, alarm wewnętrzny, preinstalacja alarmu zewnętrznego i kamer bezpieczeństwa. Prostokątny basen z systemem przelewowym o wymiarach 12x4,5 metra, miejsce do grillowania o powierzchni 22m2, pralnia, wykończony ogród. Automatyczne drzwi wejściowe. Klasyfikacja energetyczna A. Orientacja południowa. Moraira to małe miasteczko z dobrymi restauracjami, barami i mnóstwem supermarketów wokół. Tuż obok miasta znajduje się bardzo przyjemna plaża, która jest świetna dla rodzin. Nadbrzeże oferuje wspaniałe widoki na Penon Ifach przez zatokę w Calpe. Droga przybrzeżna, która tam prowadzi jest warta zrobienia z kilkoma spektakularnymi widokami. Moraira położony około 1 godziny 15 minut na północ w górę A7 z Alicante lotniska jego dość łatwo dostać. Jest to mniej więcej ta sama odległość lub trochę mniej na południe od lotniska w Walencji. 489
Podane informacje mogą zawierać błędy i nie stanowią części żadnej umowy. Oferta może zostać zmieniona lub wycofana bez uprzedzenia. Ceny nie obejmują kosztów zakupu.