
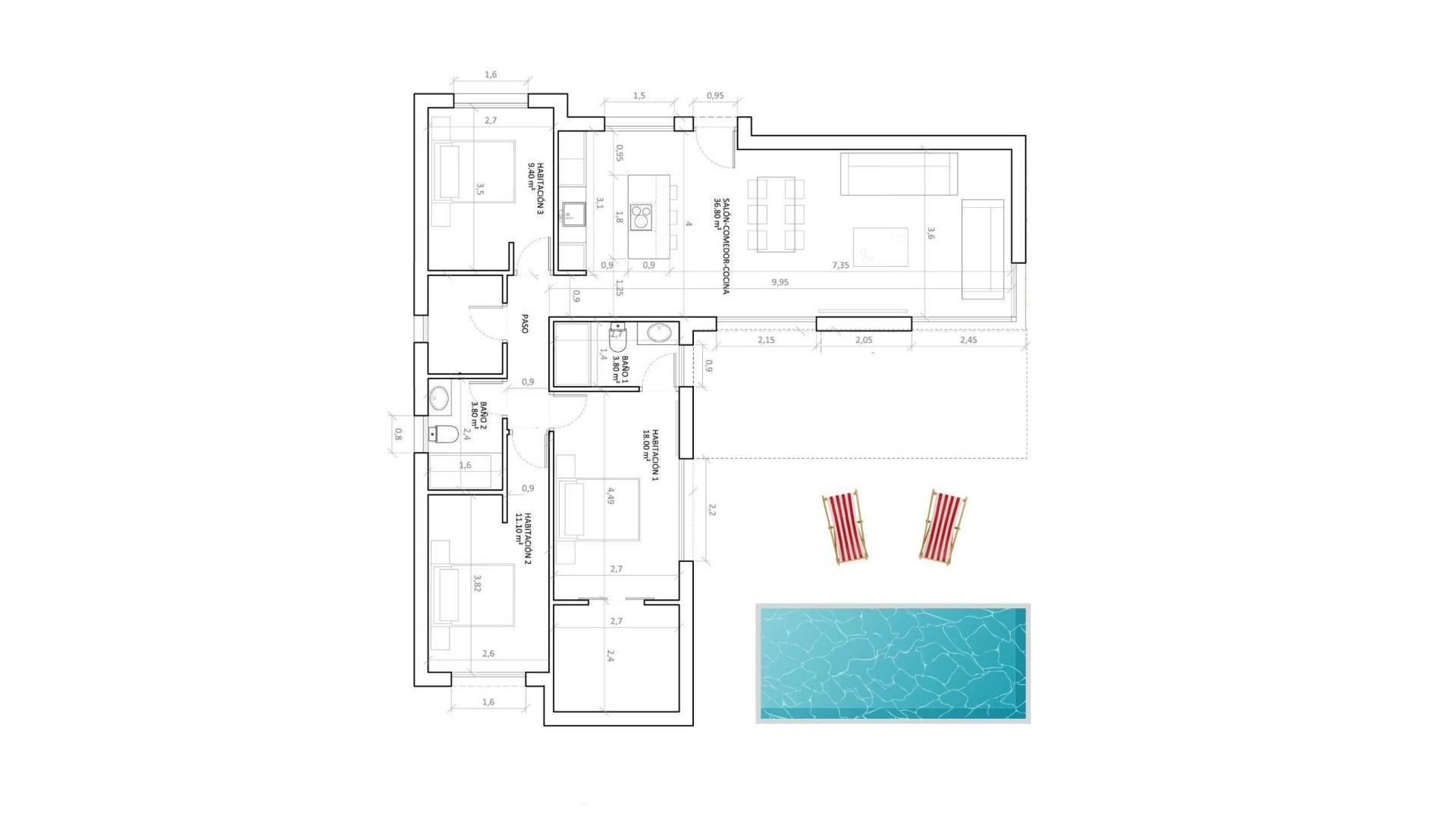
NOWE WILLA Z BASENEM W HONDON DE LAS NIEVES Odkryj elegancję i komfort tych pięknych, wolnostojących willi o powierzchni od 108 do 128 m2, zaprojektowanych z myślą o wyjątkowym stylu życia, wszystkie na parterze. Ciesz się prywatnością, jaką oferuje ta willa, gdzie możesz zrelaksować się we własnym ogrodzie, stworzyć oazę spokoju lub ochłodzić się w prywatnym basenie, ciesząc się ciepłymi letnimi dniami. Nieruchomość podzielona jest na dwie duże strefy: Część dzienna: Znajduje się tu przestronny salon z jadalnią i kuchnią amerykańską (meble kuchenne w cenie), który poprzez dwa duże okna łączy się z nowoczesną werandą, prowadzącą na ogród i basen. Dodatkową przestrzeń stanowi pralnia, strategicznie umieszczona w rozkładzie domu, do której bardzo łatwo jest dostać się z każdego miejsca w domu. Strefa wypoczynkowa: W tej strefie znajdują się 3 sypialnie. Główna sypialnia posiada przestronną garderobę i łazienkę. Jest również druga łazienka dla pozostałych sypialni i reszty domu. Położona w spokojnej, rezydenckiej okolicy, ta willa pozwala cieszyć się prywatnością i spokojem, a jednocześnie znajduje się w pobliżu usług, sklepów, supermarketów i restauracji. Jest to idealna równowaga między spokojną izolacją a wygodami współczesnego życia. W tej urbanizacji Hondón de las Nieves każdy dzień jest okazją do nawiązania kontaktu ze światem. Hondón de las Nieves to gmina w regionie Walencja w Hiszpanii. Znajduje się w południowo-zachodniej części prowincji Alicante, w regionie Vinalopó Medio. Plaże i lotnisko w Alicante są bardzo blisko, zaledwie 30 minut jazdy samochodem.
Podane informacje mogą zawierać błędy i nie stanowią części żadnej umowy. Oferta może zostać zmieniona lub wycofana bez uprzedzenia. Ceny nie obejmują kosztów zakupu.