Alicante (Costa Blanca) - Alicante Carolinas Bajas
Ref.: N9358
Apartament Nowy budynek

Szczegóły

  • 84m2
  • 2
  • 2

Szczegóły oferty

icon Sypialnie: 2
icon Łazienki: 2
icon Powierzchnia: 84m2
icon Single Bedrooms: 1, Double Bedrooms: 1
Klasa energetyczna
Klasa energetyczna:
B

Opis

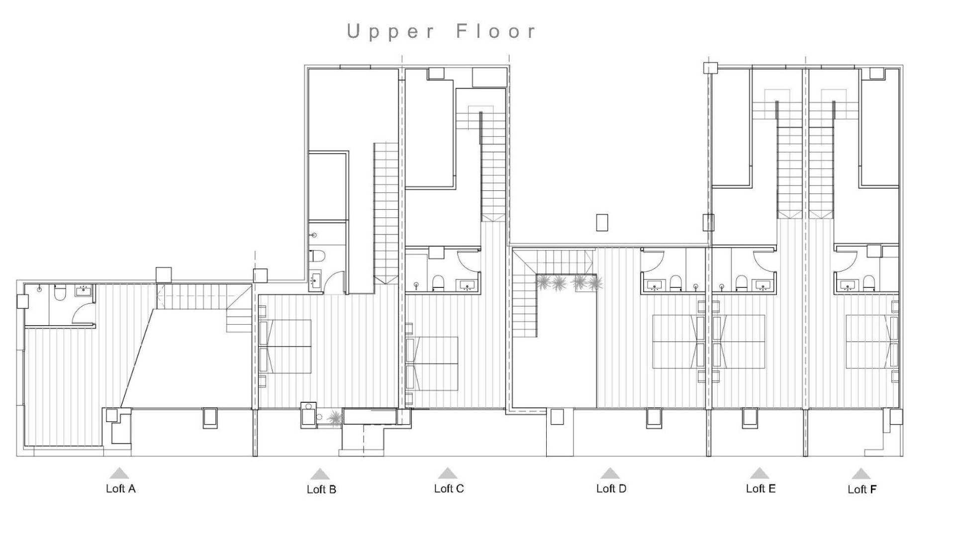
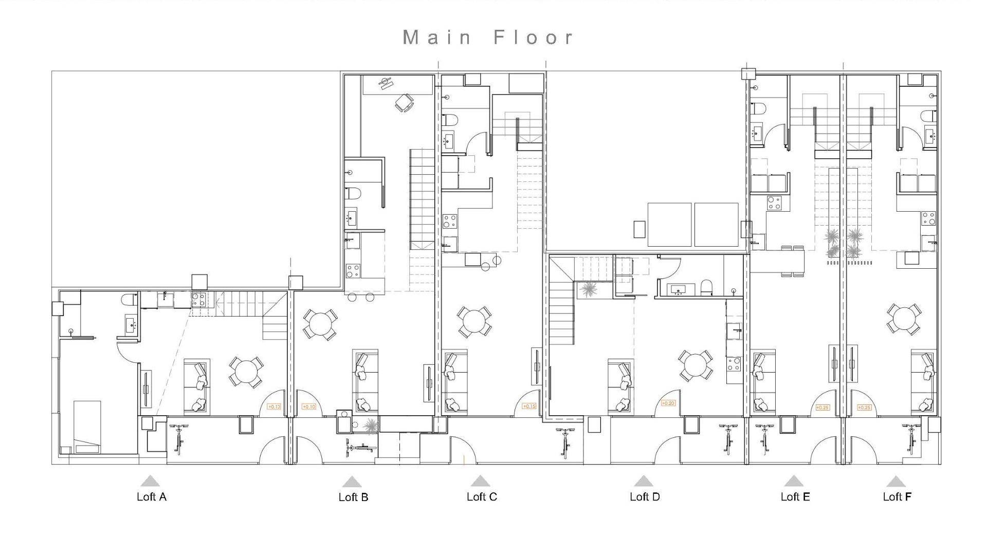
Nowoczesne apartamenty typu loft w centrum Alicante Ekskluzywna nowa inwestycja w dzielnicy Benalúa Odkryj wyjątkową okazję do nabycia stylowego apartamentu typu loft w Benalúa, jednej z najbardziej tętniących życiem i dobrze skomunikowanych dzielnic Alicante. Ten wyjątkowy projekt przekształca sześć nieużywanych lokali użytkowych w nowoczesne lofty mieszkalne, oferując nowoczesny miejski styl życia zaledwie 1 km od wybrzeża Morza Śródziemnego. Benalúa słynie z lokalnych sklepów, kawiarni, działalności kulturalnej i bliskości centrum miasta, co czyni ją bardzo poszukiwaną lokalizacją zarówno przez mieszkańców, jak i inwestorów. Nowoczesny design w stylu loftowym Każdy dom został całkowicie przeprojektowany, aby zapewnić świeżą, otwartą i elegancką przestrzeń mieszkalną. Promocja obejmuje dwupoziomowe lofty z 1 lub 2 sypialniami i 2 łazienkami, wszystkie z imponującymi pomieszczeniami o podwójnej wysokości, które zwiększają ilość naturalnego światła i zapewniają prawdziwą atmosferę loftu. Na piętrze znajduje się sypialnia i w pełni wyposażona łazienka, zapewniające prywatność i komfort. Dzięki niezależnemu wejściu od strony ulicy i prywatnemu tarasowi, każdy apartament łączy w sobie nowoczesną architekturę z praktycznością. Wysokiej jakości wykończenia, nowoczesny układ i jasne wnętrza sprawiają, że lofty te są doskonałym wyborem dla osób poszukujących stylu i funkcjonalności. Komfort i udogodnienia wspólnotowe Mieszkańcy będą mieli dostęp do wspólnego basenu znajdującego się w budynku, zapewniającego relaksującą i orzeźwiającą atmosferę podczas ciepłych śródziemnomorskich dni. Prywatne tarasy i niezależne wejścia zapewniają dodatkową wygodę i ekskluzywność. Doskonała lokalizacja w pobliżu najważniejszych atrakcji Kompleks, idealnie położony zarówno do zamieszkania, jak i do inwestycji, otoczony jest niezbędnymi usługami i głównymi atrakcjami: Plaża w Alicante: 1 km Stacja kolejowa Renfe: 0,8 km Centrum handlowe El Corte Inglés: 0,7 km Pałac Sprawiedliwości w Alicante: 0,5 km Lotnisko w Alicante: 12 km Marina i port w Alicante: 2 km Pola golfowe (Alicante Golf): 7 km Okolica oferuje doskonałe połączenia komunikacyjne, obiekty kulturalne, tereny zielone i łatwy dostęp do pięknych plaż miasta. Inteligentna inwestycja w nadmorski styl życia w Alicante Niezależnie od tego, czy szukasz głównego miejsca zamieszkania, nieruchomości wakacyjnej, czy inwestycji o dużym potencjale wynajmu, te dwupoziomowe apartamenty typu loft w Benalúa stanowią wyjątkową okazję w jednej z najbardziej obiecujących dzielnic Alicante. Skontaktuj się z nami już dziś, aby zarezerwować swój ekskluzywny loft i cieszyć się nowoczesnym stylem życia w samym sercu Alicante. * Dostęp do basenu wymaga zatwierdzenia przez wspólnotę mieszkaniową po zmianie przeznaczenia lokali.

Lokalizacja

Ekonomia

Podane informacje mogą zawierać błędy i nie stanowią części żadnej umowy. Oferta może zostać zmieniona lub wycofana bez uprzedzenia. Ceny nie obejmują kosztów zakupu.

Oblicz kredyt hipoteczny

Wymiana walut

  • Funty: 268.755 GBP
  • Rubel rosyjski: 268.755 RUB
  • Frank szwajcarski: 282.350 CHF
  • Juan chiński: 2.441.795 CNY
  • Dolar: 360.848 USD
  • Korona szwedzka: 3.338.243 SEK
  • Korona norweska: 3.338.708 NOK

Poproś o informacje

Responsable del tratamiento: Costa Weflen Group SL, Finalidad del tratamiento: Gestión y control de los servicios ofrecidos a través de la página Web de Servicios inmobiliarios, Envío de información a traves de newsletter y otros, Legitimación: Por consentimiento, Destinatarios: No se cederan los datos, salvo para elaborar contabilidad, Derechos de las personas interesadas: Acceder, rectificar y suprimir los datos, solicitar la portabilidad de los mismos, oponerse altratamiento y solicitar la limitación de éste, Procedencia de los datos: El Propio interesado, Información Adicional: Puede consultarse la información adicional y detallada sobre protección de datos Aquí.

Kontakt

© 2026 Costa Weflen Group · Informacje prawne · Prywatność · Cookies · Mapa strony

Projekt: Mediaelx

Kontakt WhatsApp
WhatsApp