Alicante (Costa Blanca) - Torrevieja Los Balcones
Ref.: N9510
Bungalow Nowy budynek

Szczegóły

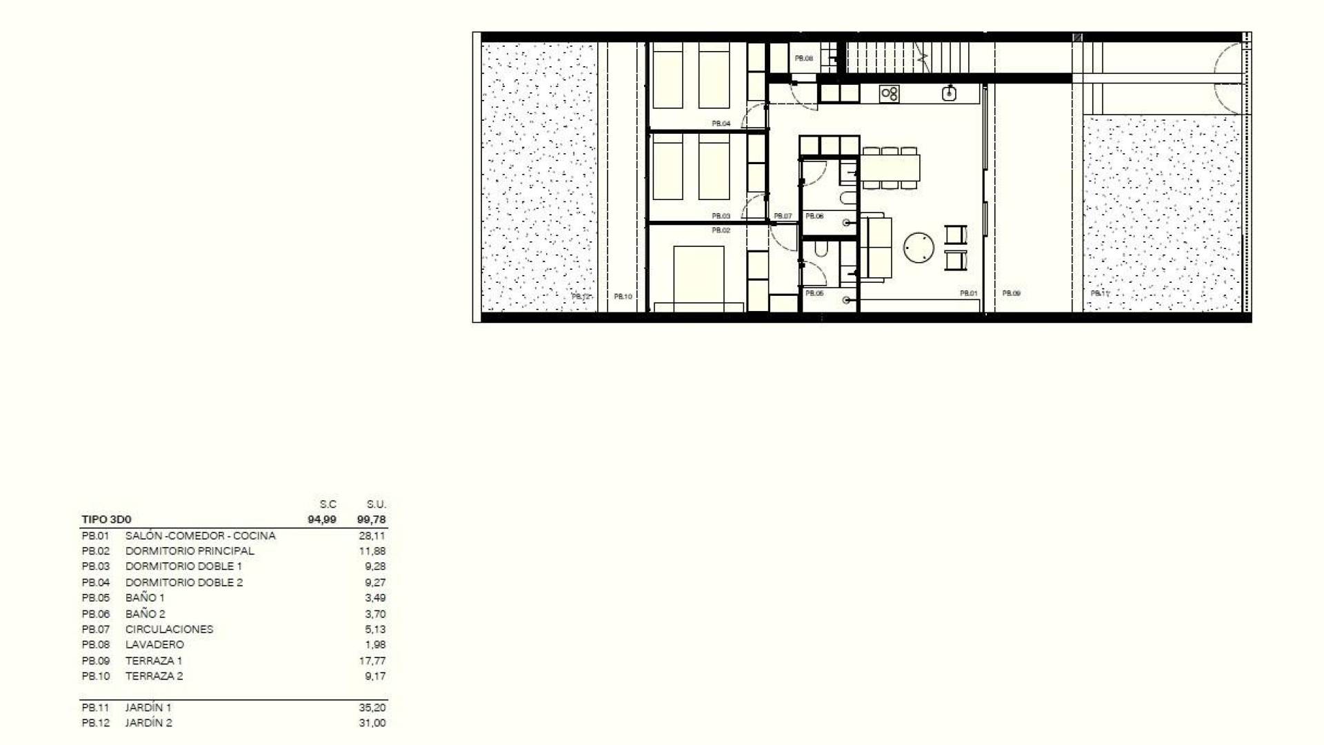
  • 99m2
  • 76m2
  • 3
  • 2

Szczegóły oferty

icon Sypialnie: 3
icon Łazienki: 2
icon Powierzchnia: 99m2
icon Działka: 76m2
icon Storage / Trastero
Klasa energetyczna
Klasa energetyczna:
B

Opis

Nowe apartamenty mieszkalne w Los Balcones, Torrevieja Nowoczesne domy w doskonałej lokalizacji Odkryj ten atrakcyjny, nowo wybudowany kompleks mieszkaniowy położony w Los Balcones, jednej z najpopularniejszych i najbardziej znanych dzielnic na obrzeżach Torrevieja. Położony w spokojnej okolicy, z doskonałym dostępem do wszystkich niezbędnych usług, kompleks ten znajduje się zaledwie 4 km od piaszczystych plaż Costa Blanca. Los Balcones słynie z relaksującej atmosfery, szerokich ulic, terenów zielonych oraz bliskości szpitali, supermarketów, restauracji i centrów handlowych, co sprawia, że jest to idealne miejsce do zamieszkania przez cały rok lub spędzania wakacji. Nowoczesne apartamenty z prywatnymi przestrzeniami zewnętrznymi Kompleks składa się z 52 nowoczesnych apartamentów zbudowanych na łącznej powierzchni 6700 m2. Każda nieruchomość posiada prywatne miejsce parkingowe oraz piwnicę w podziemiach. Mieszkania mają 2 lub 3 sypialnie i 2 łazienki, z których jedna jest przylegająca. Kupujący mogą wybierać między apartamentami na parterze z prywatnym ogrodem a mieszkaniami na wyższych piętrach z przestronnym tarasem i prywatnym solarium. Układy te zostały zaprojektowane tak, aby maksymalnie wykorzystać naturalne światło i zapewnić komfortowe przestrzenie mieszkalne wewnątrz i na zewnątrz, pozwalające cieszyć się śródziemnomorskim klimatem przez cały rok. Pomieszczenia wspólne zaprojektowane z myślą o relaksie Projekt składa się z czterech bloków otaczających dużą centralną część wspólną. To zielone serce inwestycji obejmuje basen z wydzieloną strefą dla dzieci oraz pięknie zaprojektowane ogrody. Te wspólne przestrzenie są idealnym miejscem do relaksu, spotkań towarzyskich i spędzania czasu z rodziną w bezpiecznym i przyjaznym otoczeniu. Wysokiej jakości wyposażenie i energooszczędna konstrukcja Każdy apartament jest zbudowany zgodnie z nowoczesnymi standardami i wyposażony w preinstalację klimatyzacji kanałowej, aerotermiczny system ciepłej wody użytkowej dla poprawy efektywności energetycznej, oświetlenie zewnętrzne oraz stolarkę zewnętrzną z podwójnymi szybami. Kuchnie są w pełni wyposażone, oferując funkcjonalną i stylową przestrzeń do codziennego życia. Cechy te zapewniają wysoki poziom komfortu, niskie koszty utrzymania i zmniejszone zużycie energii, dzięki czemu domy są zarówno praktyczne, jak i zrównoważone. Doskonała lokalizacja w pobliżu plaż i pól golfowych Los Balcones oferuje strategiczną lokalizację w pobliżu wielu interesujących miejsc. Plaże Torrevieja znajdują się w odległości około 4 km. Kilka renomowanych pól golfowych, takich jak Villamartin Golf, Las Ramblas Golf i Campoamor Golf, znajduje się w odległości od 10 do 15 km. Szpital Uniwersytecki w Torrevieja znajduje się niecałe 2 km od obiektu, co zapewnia dodatkową wygodę i spokój ducha. Centrum miasta Torrevieja znajduje się około 5 km od Los Balcones i jest z nim połączone autobusem. Znajduje się tam szeroki wybór sklepów, restauracji, obiektów kulturalnych i tętniąca życiem marina. Międzynarodowe lotnisko w Alicante znajduje się około 42 km od Los Balcones, zapewniając łatwe połączenia międzynarodowe. Port w Torrevieja znajduje się około 6 km od Los Balcones. Idealne miejsce do życia lub inwestycji Dzięki nowoczesnemu projektowi, doskonałym pomieszczeniom wspólnym i doskonałej lokalizacji w pobliżu plaż, pól golfowych i usług, ten nowy kompleks mieszkaniowy w Los Balcones Torrevieja jest idealny jako stałe miejsce zamieszkania, dom wakacyjny lub okazja inwestycyjna. Skontaktuj się z nami już dziś, aby uzyskać więcej informacji lub umówić się na oglądanie tych nowych apartamentów w Los Balcones w Torrevieja.

Lokalizacja

Ekonomia

Podane informacje mogą zawierać błędy i nie stanowią części żadnej umowy. Oferta może zostać zmieniona lub wycofana bez uprzedzenia. Ceny nie obejmują kosztów zakupu.

Oblicz kredyt hipoteczny

Wymiana walut

  • Funty: 294.661 GBP
  • Rubel rosyjski: 294.661 RUB
  • Frank szwajcarski: 311.678 CHF
  • Juan chiński: 2.677.908 CNY
  • Dolar: 394.978 USD
  • Korona szwedzka: 3.679.310 SEK
  • Korona norweska: 3.669.960 NOK

Poproś o informacje

Responsable del tratamiento: Costa Weflen Group SL, Finalidad del tratamiento: Gestión y control de los servicios ofrecidos a través de la página Web de Servicios inmobiliarios, Envío de información a traves de newsletter y otros, Legitimación: Por consentimiento, Destinatarios: No se cederan los datos, salvo para elaborar contabilidad, Derechos de las personas interesadas: Acceder, rectificar y suprimir los datos, solicitar la portabilidad de los mismos, oponerse altratamiento y solicitar la limitación de éste, Procedencia de los datos: El Propio interesado, Información Adicional: Puede consultarse la información adicional y detallada sobre protección de datos Aquí.

Kontakt

© 2026 Costa Weflen Group · Informacje prawne · Prywatność · Cookies · Mapa strony

Projekt: Mediaelx

Kontakt WhatsApp
WhatsApp