
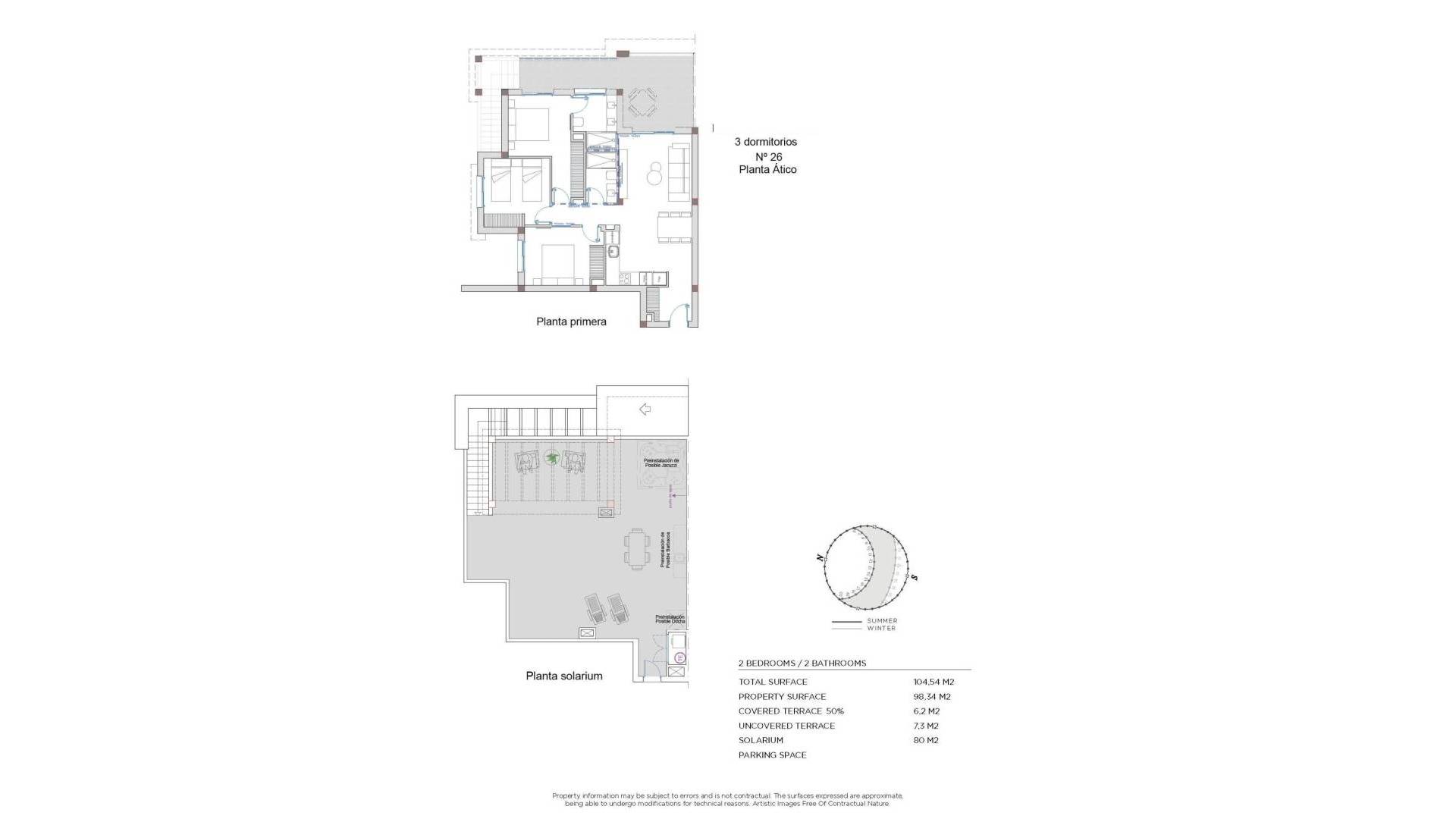
Nowoczesne apartamenty w stylu śródziemnomorskim w Ciudad Quesada na Costa Blanca Ekskluzywne mieszkania Odkryj ekskluzywny prywatny kompleks mieszkaniowy zaprojektowany z myślą o zapewnieniu maksymalnego komfortu, jakości i stylu życia w jednej z najbardziej pożądanych lokalizacji na Costa Blanca. Położona w Ciudad Quesada, zaledwie kilka minut od międzynarodowego lotniska w Alicante, ta nowoczesna inwestycja łączy w sobie ponadczasowy urok architektury śródziemnomorskiej ze świeżym, funkcjonalnym designem idealnym dla współczesnego stylu życia. Eleganckie apartamenty z prywatnymi przestrzeniami zewnętrznymi Kompleks oferuje dwa rodzaje mieszkań dostosowane do różnych stylów życia. Wybierz między apartamentami na parterze z przestronnym prywatnym ogrodem, idealnym do relaksu na świeżym powietrzu, a apartamentami na pierwszym piętrze z dużym prywatnym solarium, idealnym do cieszenia się słońcem przez cały rok i spokojnymi widokami. Każdy apartament posiada 2-3 sypialnie i 2 łazienki, oferując jasne i komfortowe wnętrza. Dodatkowo, każdy dom posiada prywatny parking na terenie kompleksu oraz pomieszczenie gospodarcze dla dodatkowej wygody. Przestrzenie wspólne sprzyjające relaksowi i dobremu samopoczuciu Zaprojektowany z myślą o przyjemności i relaksie kompleks mieszkaniowy oferuje pięknie zagospodarowane ogrody wspólne i duży basen, które tworzą spokojną i ekskluzywną atmosferę. Niezależnie od tego, czy chcesz odpocząć w słońcu, popływać, czy po prostu cieszyć się otaczającą przyrodą, ta inwestycja zapewnia wszystko, czego potrzebujesz, aby komfortowo mieszkać na Costa Blanca. Doskonała lokalizacja w pobliżu plaż i pól golfowych Ciudad Quesada to dobrze rozwinięta i tętniąca życiem społeczność, znana z doskonałych usług, restauracji i możliwości spędzania wolnego czasu. Pole golfowe La Marquesa, położone zaledwie kilka minut drogi stąd, jest jednym z najbardziej historycznych pól golfowych na Costa Blanca, oferującym 18 dołków i słynny dołek 17 inspirowany Sawgrass, zapewniający wyjątkowe wrażenia miłośnikom golfa. Piękne plaże Guardamar del Segura, La Mata i Torrevieja, wyróżnione Błękitną Flagą, znajdują się zaledwie 15 km od inwestycji i są idealnym miejscem do opalania się lub uprawiania sportów wodnych. Międzynarodowe lotnisko w Alicante jest dogodnie położone w odległości 40 km, co sprawia, że podróżowanie jest łatwe i dostępne. Śródziemnomorski styl życia w najlepszym wydaniu Otoczony naturą, polami golfowymi i morzem, ten projekt mieszkaniowy oferuje idealne warunki zarówno do stałego zamieszkania, jak i spędzania wakacji. To miejsce, w którym nowoczesny komfort łączy się z urokiem śródziemnomorskiego stylu życia. Umów się na wizytę już dziś Nie przegap okazji, aby stać się właścicielem nowego domu w Ciudad Quesada na Costa Blanca. Skontaktuj się z nami już dziś, aby uzyskać więcej informacji lub umówić się na prywatną wizytę w tych wyjątkowych, nowo wybudowanych apartamentach. 489
Podane informacje mogą zawierać błędy i nie stanowią części żadnej umowy. Oferta może zostać zmieniona lub wycofana bez uprzedzenia. Ceny nie obejmują kosztów zakupu.