
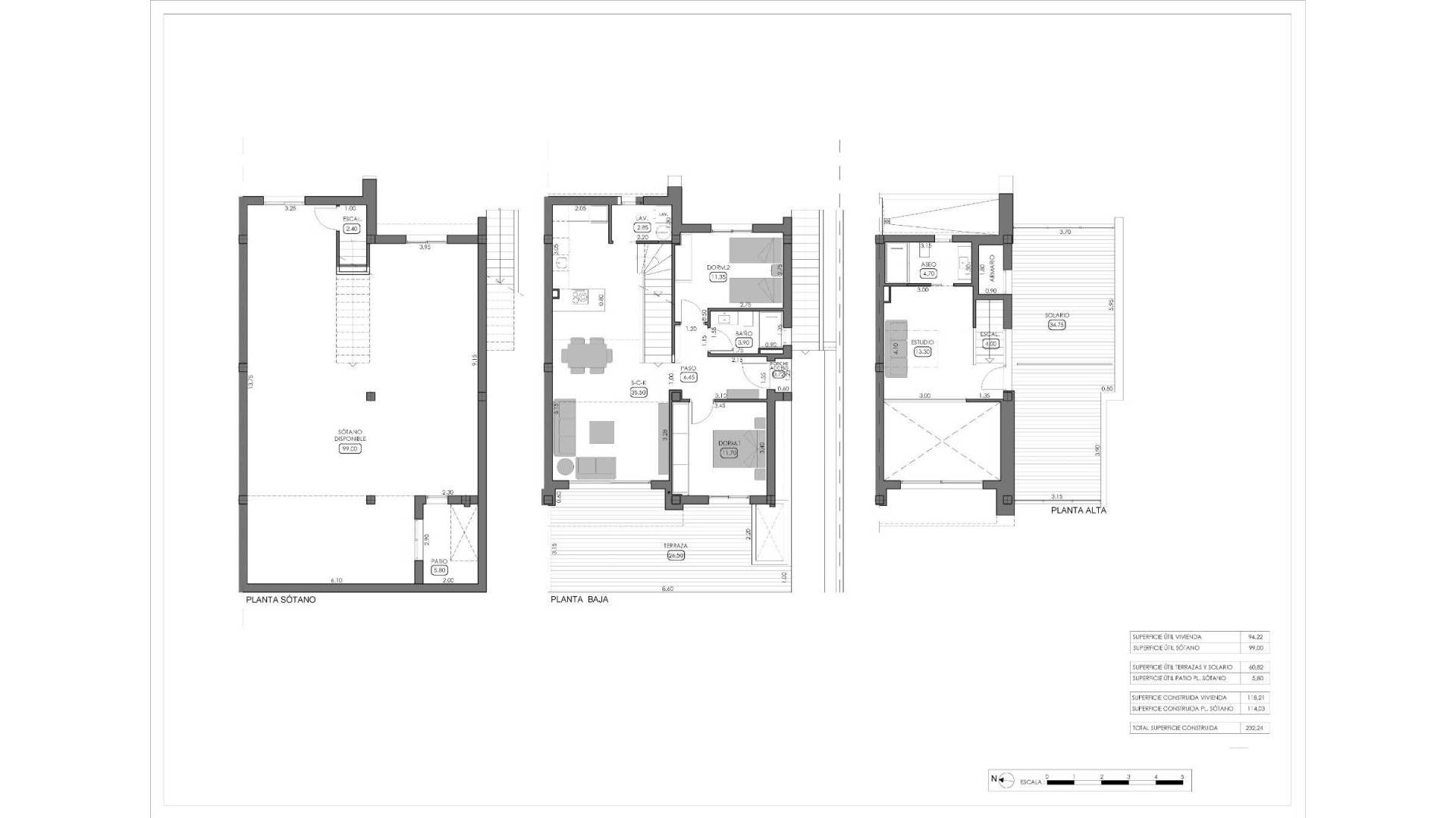
Nowe bliźniacze wille z prywatnym basenem w ośrodku golfowym La Finca, Algorfa Ekskluzywne życie w stylu śródziemnomorskim w La Finca Golf Odkryj tę wyjątkową nową inwestycję mieszkaniową położoną w prestiżowym ośrodku golfowym La Finca w Algorfa na południowym wybrzeżu Costa Blanca. Możesz wybierać spośród apartamentów z 2/3 sypialniami i wspólnym basenem lub bliźniaczych lub wolnostojących willi z prywatnymi basenami. Otoczona bujnymi fairwayami i naturalnymi krajobrazami, ta społeczność oferuje idylliczny styl życia w spokojnym i bezpiecznym otoczeniu. Urokliwe miasteczko Algorfa znane jest z tradycyjnego hiszpańskiego charakteru, doskonałej gastronomii i swobodnej atmosfery, co czyni je idealnym miejscem zarówno na domy wakacyjne, jak i na stałe zamieszkanie. Nowoczesne bliźniacze wille z prywatnym basenem Te pięknie zaprojektowane bliźniacze wille mają 3 sypialnie i 2 łazienki, łącząc funkcjonalność, komfort i nowoczesny styl. Szczegóły układu Parter Jasny salon i jadalnia na planie otwartym połączone z umeblowaną kuchnią Duże przesuwane drzwi zapewniające bezpośredni dostęp do ogrodu i prywatnego basenu Dwie przestronne sypialnie z wbudowanymi szafami Jedna w pełni wyposażona łazienka Prywatny parking na terenie działki Piętro Studio z łazienką, idealne na biuro, salon lub pokój gościnny Dostęp do prywatnego tarasu o powierzchni 30 m2, idealnego do opalania się i relaksu Wysokiej jakości wyposażenie i wykończenie Wille te, zbudowane zgodnie z najwyższymi standardami, oferują nowoczesne udogodnienia do całorocznego zamieszkania, w tym Wbudowane szafy we wszystkich sypialniach Elektryczne rolety w salonie i sypialniach W pełni wyposażone łazienki z lustrami i kabinami prysznicowymi W pełni zainstalowana klimatyzacja kanałowa Prywatny ogród i basen Doskonała lokalizacja w pobliżu plaż, pól golfowych i usług La Finca Golf Resort jest jednym z najbardziej renomowanych ośrodków golfowych na Costa Blanca, oferującym szeroki zakres usług, takich jak luksusowy hotel, restauracje, spa i obiekty sportowe. Osiedle cieszy się szybkim dostępem do pobliskich miast, plaż i lotnisk, zapewniając wygodę i dobre połączenia komunikacyjne. Odległości do kluczowych punktów Klub golfowy La Finca: w odległości spaceru Plaże Guardamar del Segura: 15 km Torrevieja i Orihuela Costa: 15 km Almoradí, Benijófar i Ciudad Quesada: krótka przejażdżka samochodem Lotnisko w Alicante: 35 km Ciesz się tym, co najlepsze w życiu na Costa Blanca Dzięki nowoczesnemu wzornictwu, prywatnym przestrzeniom zewnętrznym i doskonałej lokalizacji, te wille są doskonałym wyborem dla rodzin, inwestorów i miłośników golfa poszukujących wysokiej jakości stylu życia na południu Hiszpanii. Skontaktuj się z nami już dziś, aby umówić się na wizytę lub otrzymać więcej informacji na temat tej ekskluzywnej nowej inwestycji w La Finca Golf Resort w Algorfa.
Podane informacje mogą zawierać błędy i nie stanowią części żadnej umowy. Oferta może zostać zmieniona lub wycofana bez uprzedzenia. Ceny nie obejmują kosztów zakupu.
© 2026 Costa Weflen Group · Informacje prawne · Prywatność · Cookies · Mapa strony
Projekt: Mediaelx
Przede wszystkim dziękujemy za kontakt.
Otrzymaliśmy Twoje zapytanie dotyczące nieruchomości o numerze referencyjnym: N9538. Jeden z naszych agentów skontaktuje się z Tobą jak najszybciej.
Przede wszystkim dziękujemy za kontakt.
Otrzymaliśmy prośbę o powiadomienie, jeśli cena nieruchomości o numerze referencyjnym zostanie obniżona: N9538
Tymczasem zapoznaj się z naszą selekcją podobnych nieruchomości — mogą Cię zainteresować: