
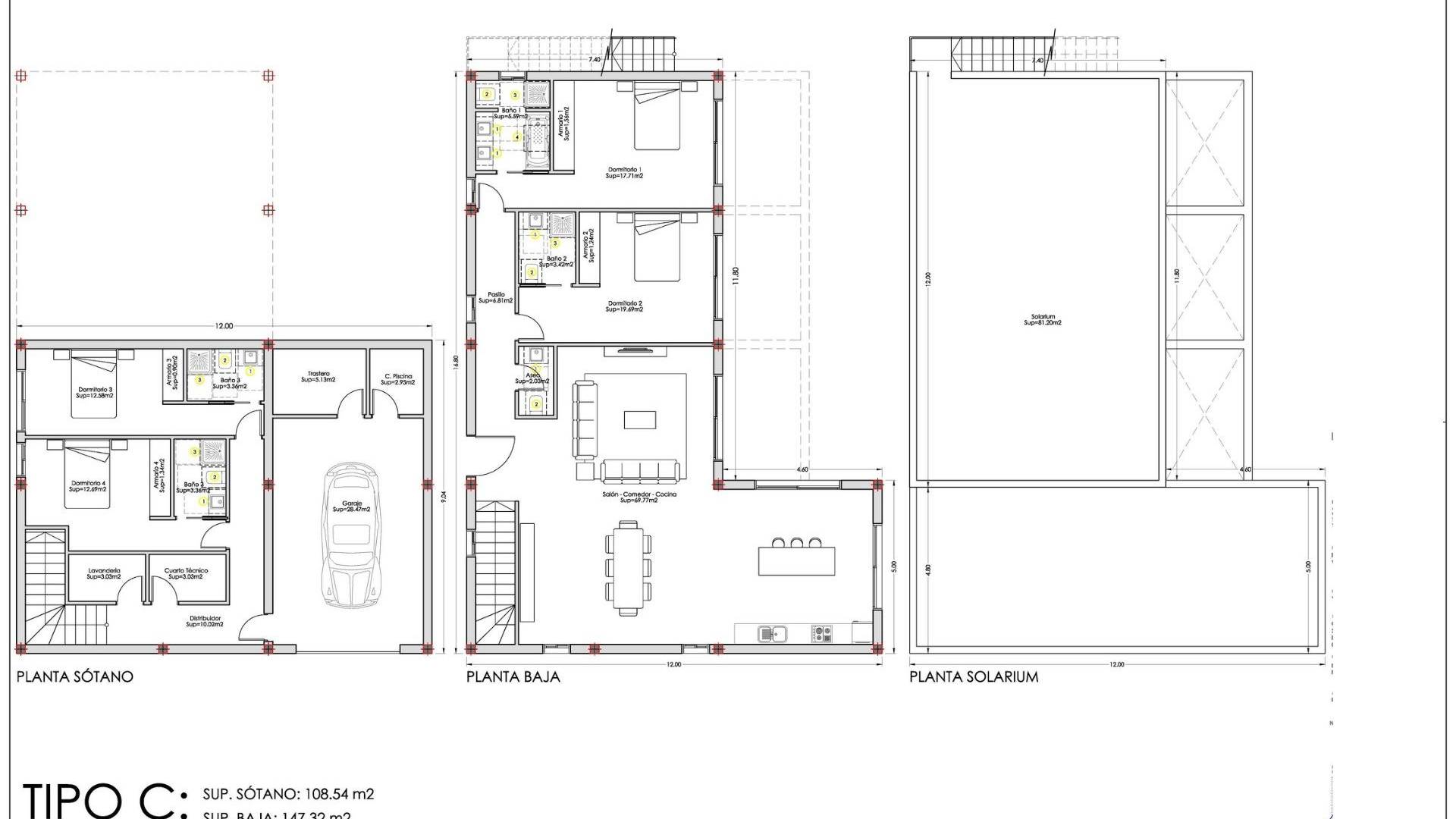
Luksusowe nowe wille w Finestrat niedaleko Benidorm Ekskluzywna kolekcja niezależnych willi zrównoważonych Ta prestiżowa inwestycja obejmuje 36 niezależnych willi w popularnej urbanizacji Bahia Golf w Finestrat, zaledwie 3,5 km od wybrzeża Morza Śródziemnego. Zaprojektowane z myślą o połączeniu luksusu, komfortu i zrównoważonego rozwoju, te nowoczesne domy oferują wyjątkowy styl życia na Costa Blanca, w otoczeniu natury, a jednocześnie w pobliżu wszystkich usług. Każda willa oferuje 3 lub 4 przestronne sypialnie, prywatny ogród krajobrazowy i prywatny basen bez krawędzi. Wybrane jednostki oferują wspaniałe widoki na morze, a wszystkie nieruchomości położone są na obszernych działkach o powierzchni ponad 500 m2, a powierzchnia zabudowy zaczyna się od 222 m2. Elastyczne układy z piwnicą i solarium na dachu Kupujący mogą wybierać spośród czterech różnych układów, wszystkie starannie zaprojektowane w celu maksymalnego wykorzystania przestrzeni i naturalnego światła. Każda willa posiada piwnicę z prywatnym parkingiem, pomieszczeniem gospodarczym, pralnią i dwiema sypialniami z łazienkami połączonymi z angielskim patio, które zapewnia naturalne światło i wentylację. Na parterze znajduje się jedna lub dwie dodatkowe sypialnie z łazienkami, toaleta dla gości oraz otwarta kuchnia połączona z salonem i jadalnią, z bezpośrednim dostępem do tarasu i basenu. Każda nieruchomość posiada solarium na dachu, z którego roztacza się panoramiczny widok na góry lub morze i gdzie można zainstalować jacuzzi. Wysokiej jakości wykończenia i efektywność energetyczna BREEAM Wille te są budowane zgodnie z normami certyfikacji BREEAM, zapewniając doskonałą efektywność energetyczną i odpowiedzialność za środowisko. Najwyższej jakości specyfikacje obejmują: Okna aluminiowe z podwójnymi szybami, przegrodą termiczną i elektrycznymi roletami W pełni zainstalowana klimatyzacja kanałowa Zmotoryzowana brama wjazdowa Prywatny basen i ogród krajobrazowy Nowoczesna kuchnia PORCELANOSA wyposażona w sprzęt AGD Designerskie łazienki z meblami, lustrami i kabinami prysznicowymi Płytki porcelanowe PORCELANOSA Doskonała lokalizacja w pobliżu plaż, pól golfowych i sklepów Finestrat to urocze miasteczko położone między górami a morzem, oferujące spokój, a jednocześnie znajdujące się zaledwie kilka minut od tętniącego życiem Benidormu. Okolica łączy w sobie naturalne piękno z doskonałą infrastrukturą, międzynarodowymi szkołami, restauracjami i centrami handlowymi. Odległości do najważniejszych atrakcji Plaże Benidormu 3,5 km Centrum handlowe La Marina 1 km Puig Campana Golf 3 km Stare miasto Benidorm 4 km Lotnisko w Alicante 55 km Dostęp do autostrady A7 2 km Spełnij swoje śródziemnomorskie marzenie w Finestrat Te wille oferują idealną równowagę między luksusem, naturą i dostępnością komunikacyjną na Costa Blanca. Skontaktuj się z nami już dziś, aby uzyskać więcej informacji lub umówić się na prywatną prezentację tych wyjątkowych nowych domów w Finestrat.
Podane informacje mogą zawierać błędy i nie stanowią części żadnej umowy. Oferta może zostać zmieniona lub wycofana bez uprzedzenia. Ceny nie obejmują kosztów zakupu.