
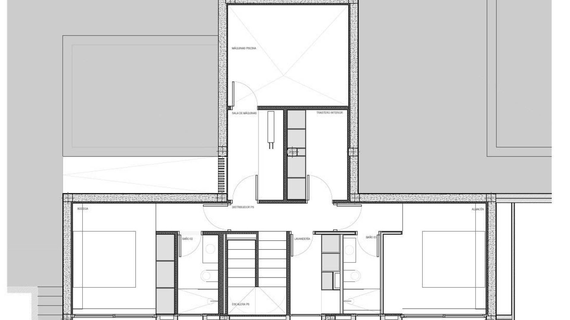
Gotowa do zamieszkania nowa willa z widokiem na morze w La Alberca Polop Luksusowa, nowoczesna willa w naturalnym otoczeniu górskim Ta gotowa do zamieszkania, nowoczesna willa znajduje się w La Alberca, spokojnej dzielnicy mieszkalnej Polop, otoczonej lasami i górami. Położona na wzniesieniu nieruchomość oferuje panoramiczne widoki na Morze Śródziemne, góry i historyczne centrum miasta Polop. Willa zapewnia prywatność, spokój i doskonałe połączenia z wybrzeżem i pobliskimi miastami. Polop to urokliwa wioska w regionie Marina Baixa na Costa Blanca, znana ze swojego tradycyjnego charakteru i naturalnego otoczenia. Nieruchomość znajduje się w pobliżu wszystkich usług w La Nucia, w tym sklepów, restauracji, centrów sportowych i szkół, a plaże i tętniące życiem nadmorskie miasteczka są oddalone o kilka minut jazdy samochodem. Przestronny układ na parterze, w piwnicy i solarium Willa składa się z parteru, piwnicy i solarium na dachu, oferując przestronną przestrzeń mieszkalną i elastyczność. Na parterze znajduje się przytulny hol wejściowy z wbudowaną szafą, który prowadzi do dwóch sypialni z łazienkami, w tym apartamentu głównego z podnoszonymi drzwiami okiennymi wychodzącymi na balkon Juliette i taras. Otwarta część dzienna z jadalnią płynnie łączy się z zadaszonym tarasem z pergolą i prywatnym basenem ze słoną wodą. W piwnicy znajdują się dwie dodatkowe sypialnie z łazienkami i dużymi oknami, elastyczny pokój zabaw lub sala kinowa z przyłączami wodnymi i elektrycznymi do baru, w pełni wyposażona pralnia z urządzeniami Haier oraz dwa pomieszczenia techniczne. Solarium na dachu zapewnia rozległą przestrzeń zewnętrzną z panoramicznym widokiem na morze i jest przygotowane do przyszłej instalacji paneli słonecznych. Kuchnia na świeżym powietrzu, liczne schowki i ogród w stylu śródziemnomorskim z automatycznym nawadnianiem dopełniają wygląd zewnętrzny. Wysokiej klasy wyposażenie i energooszczędność Willa wyróżnia się wysokiej jakości wykończeniem i zaawansowanymi instalacjami, w tym: Centralna wyspa kuchenna ze zintegrowanymi urządzeniami BOSCH Blaty z naturalnego kamienia wewnątrz i na zewnątrz Instalacja podgrzewania podłogowego System klimatyzacji aerotermicznej Mitsubishi Klasa efektywności energetycznej A Instalacja pod system inteligentnego domu Basen ze słoną wodą z opcjonalnym ogrzewaniem Prywatny parking na dwa samochody Duże okna z szybami chroniącymi przed słońcem maksymalizują ilość naturalnego światła, zapewniając jednocześnie komfort i bezpieczeństwo. Doskonała lokalizacja i odległości Centrum Polop 2 km La Nucia 4 km Benidorm 12 km Altea 10 km Plaże 10 km Villaitana Golf 14 km Lotnisko w Alicante 65 km Zabezpiecz swój wymarzony dom w Polop Ta wyjątkowa, gotowa do zamieszkania willa łączy prywatność, design i panoramiczne widoki w jednej z najbardziej atrakcyjnych lokalizacji w głębi lądu na Costa Blanca. Skontaktuj się z nami już dziś, aby umówić się na prywatną wizytę i sprawić, że ta luksusowa willa w La Alberca Polop stanie się Twoim nowym domem.
Podane informacje mogą zawierać błędy i nie stanowią części żadnej umowy. Oferta może zostać zmieniona lub wycofana bez uprzedzenia. Ceny nie obejmują kosztów zakupu.