
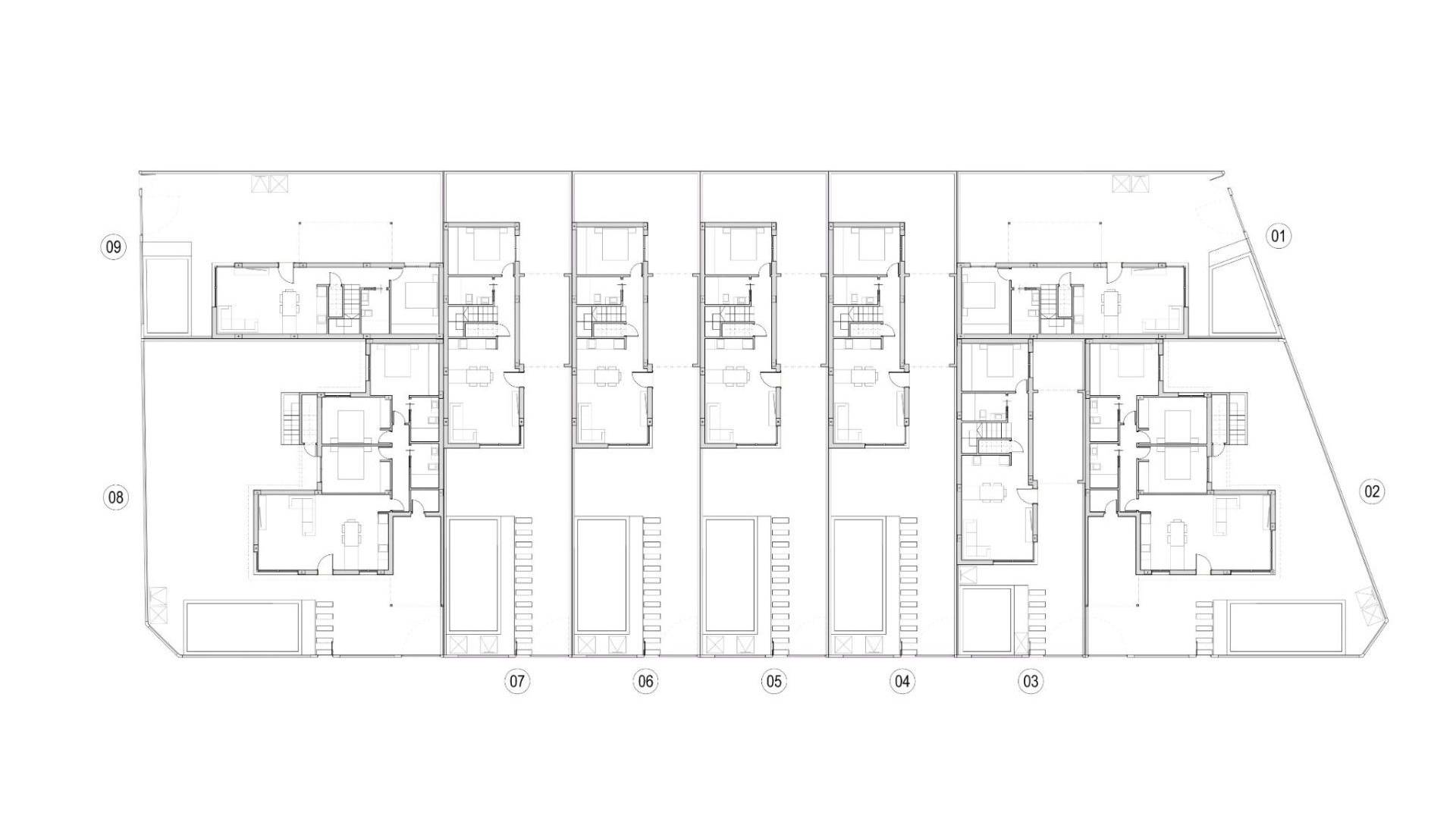
Newly Built Villas with Private Pool in Los Alcázares, Costa Cálida Exclusive Modern Villas Just 700 Metres from the Sea Discover this exclusive residential development of 9 new build villas in Los Alcázares, one of the most sought-after locations on the Costa Cálida due to its proximity to the sea, relaxed atmosphere and excellent amenities. Each villa has a private pool, separate covered garage and has been designed to offer comfort, functionality and contemporary style. Duplex Design with Solarium and Ideal Orientation The properties are distributed over two floors and have 3 bedrooms and 2 bathrooms, a fully equipped open-plan kitchen, a spacious living-dining room, a terrace and garden on the ground floor, a terrace on the first floor and a private solarium on the roof with a summer kitchen. Thanks to their different orientations, you can enjoy the sun all day long, all year round. High-quality fittings These villas are designed with top quality materials and offer: Private swimming pool with outdoor shower Kitchen equipped with appliances: fridge, oven, built-in microwave, ceramic hob, extractor hood and integrated dishwasher Built-in wardrobes with drawers Fully fitted bathrooms with mirror cabinet and shower screens Pre-installation for air conditioning Installation of 2 solar panels Summer kitchen on the solarium Covered parking space on the plot Unbeatable location on the Costa Cálida Located just 700 metres from the beaches of the Mar Menor, these homes allow you to enjoy a unique natural environment with calm and warm waters. Los Alcázares combines a relaxed lifestyle with all amenities close at hand: supermarkets, restaurants, sports facilities and health centres. Ideal for both permanent residence and holidays. Distances to points of interest Mar Menor beach: 0.7 km Golf courses (Roda, La Serena, Mar Menor Golf): between 3 and 10 km Murcia International Airport: 30 km Cartagena: 22 km Dos Mares shopping centre: 13 km Los Alcázares marina: 2 km Your haven of sunshine and tranquillity in the Mediterranean These villas offer the perfect combination of modern design, privacy, comfort and a privileged location. Contact us today and schedule your visit to discover your next home by the sea.
This info given here is subject to errors and do not form part of any contract. The offer can be changed or withdrawn without notice. Prices do not include purchase costs.
First of all, thanks for contacting us.
We have received your request regarding the property reference: N8861. One of our agents will contact you as soon as possible.
First of all, thanks for contacting us.
We have received a request for a report if you lower the price of the property with the reference: N8861
In the meantime, please have a look at this selection of similar properties, that might be of interest to you: