
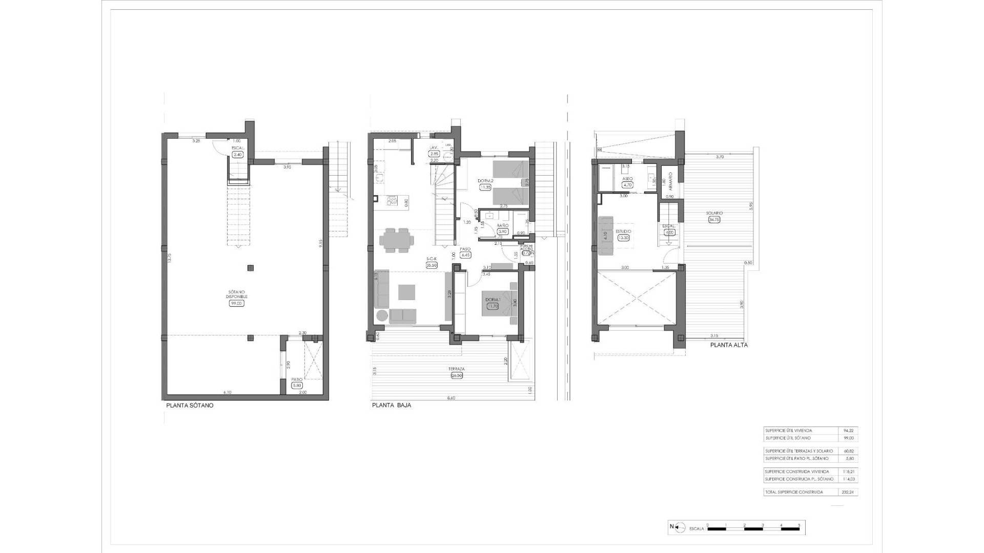
New Build Semi-Detached Villas with Private Pool in La Finca Golf Resort, Algorfa Exclusive Mediterranean Living in La Finca Golf Discover this exceptional new residential development located within the prestigious La Finca Golf Resort in Algorfa, Costa Blanca South. You can choose between 2/3 bedroom apartments with comunal pool or semi-detached or detached villas with private pools. Surrounded by lush fairways and natural landscapes, this community offers an idyllic lifestyle in a peaceful and secure environment. The charming town of Algorfa is known for its traditional Spanish character, excellent gastronomy and relaxed atmosphere, making it an ideal destination for both holiday homes and permanent living. Modern Semi-Detached Villas with Private Pool These beautifully designed semi-detached villas feature 3 bedrooms and 2 bathrooms, combining functionality, comfort and modern style. Layout details Ground floor Bright open plan living and dining room connected to a furnished kitchen Large sliding doors providing direct access to the garden and private swimming pool Two spacious bedrooms with built in wardrobes One full bathroom Private parking within the plot Upper floor Studio space with a bathroom ideal for office, lounge or guest area Access to a 30 m2 private open terrace, perfect for sunbathing and relaxing High Quality Features and Finishes Built to premium standards, these villas offer contemporary comforts for year round living, including Built in wardrobes in all bedrooms Electric shutters in living room and bedrooms Fully equipped bathrooms with mirrors and shower screens Ducted air conditioning fully installed Private garden and pool Prime Location Close to Beaches, Golf and Services La Finca Golf Resort is one of the most renowned golf destinations on the Costa Blanca, offering a wide range of services such as a luxury hotel, restaurants, spa and sports facilities. The development enjoys quick access to nearby towns, beaches and airports, providing convenience and connectivity. Distances to key points La Finca Golf Club: walking distance Beaches of Guardamar del Segura: 15 km Torrevieja and Orihuela Costa: 15 km Almoradí, Benijófar and Ciudad Quesada: short drive Alicante Airport: 35 km Enjoy the Best of Costa Blanca Living With modern design, private outdoor spaces and a privileged location, these villas are an excellent choice for families, investors and golf lovers seeking a quality lifestyle in the south of Spain. Contact us today to arrange a visit or receive more information about this exclusive new build development in La Finca Golf Resort, Algorfa.
This info given here is subject to errors and do not form part of any contract. The offer can be changed or withdrawn without notice. Prices do not include purchase costs.
First of all, thanks for contacting us.
We have received your request regarding the property reference: N9538. One of our agents will contact you as soon as possible.
First of all, thanks for contacting us.
We have received a request for a report if you lower the price of the property with the reference: N9538
In the meantime, please have a look at this selection of similar properties, that might be of interest to you: