
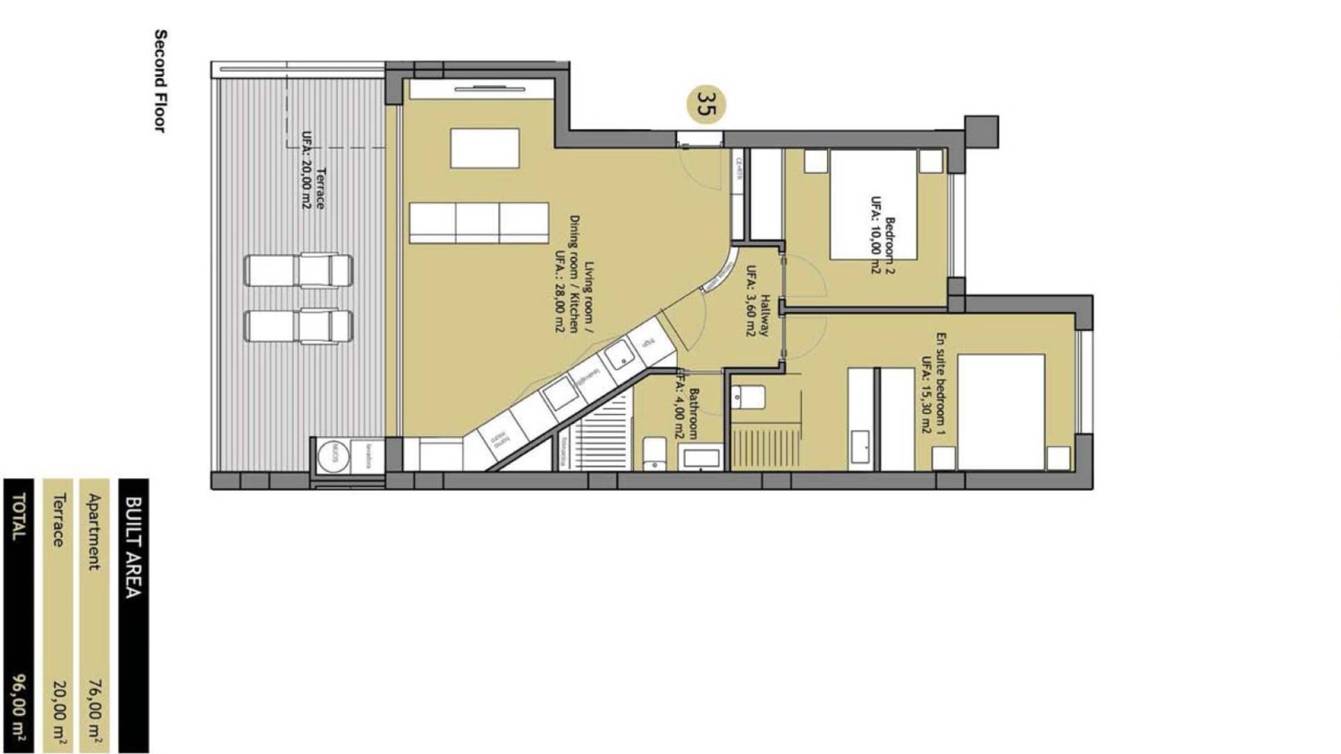
2 bedroom Hinojo apartment in Las Colinas Golf If you dream of a luxury home on Las Colinas Golf and Country Club in the most favorable climate of Spain, we offer you this furnished dream apartment in Community Hinojo 1 on the second floor. When you enter here, you are welcomed by a warm and cozy ambiance. This south facing apartment is lovingly furnished and decorated in Ibiza Style. The living room has three large windows across the entire width, all of which can be slid open so that the terrace with the same tiled floor becomes an extension of the living room. From this terrace with cozy lounge set, you can enjoy a magnificent view with lots of greenery (forest), sea and the Mar Menor with the Manga. The kitchen is equipped with luxury Bosch appliances and can be completely closed off to a wide white wall. There are two bedrooms with large fitted wardrobes and extra storage space under the beds. The Master bedroom has a luxurious bathroom en suite, the second bedroom also has its own separate bathroom. The apartment includes underground parking and private storage room. Major advantages of this apartment are: Fully furnished South facing terrace Very well and cleanly maintained As new; no damage or defects Fantastic view Fully situated on the sunny South The terrace is enclosed with glass walls so that you also have a full view while sitting Air conditioning in all rooms Filtered drinking water Washing machine / dryer available in the outdoor cupboard Las Colinas Golf & Country Club A World Apart! Las Colinas Golf & Country Club is one of the most prestigious resorts on the Costa Blanca! It is an exclusive and unique 330 hectare golf resort with many sports facilities including golf, padel, hiking, fitness, yoga and much more. It is A World Apart where you can enjoy a healthy Mediterranean lifestyle. With an exceptional climate and first class services, the resort has been recognised as “Spain’s and Europe’s Leading Villa Resort” by the World Travel Awards in recent years. Nestled among the hills of the Dehesa de Campoamor – on the Mediterranean coast south of Alicante – Las Colinas Golf & Country Club is a unique natural area that has been carefully preserved and where exclusive homes have been integrated into the surroundings where you can relax and enjoy the scenery. This resort, with some excellent restaurants and the Wow Beach by Las Colinas has an international reputation and is well known and sought after by celebrities. Find your dream home today by taking a look at the most beautiful and exclusive homes we have to offer!
This info given here is subject to errors and do not form part of any contract. The offer can be changed or withdrawn without notice. Prices do not include purchase costs.