
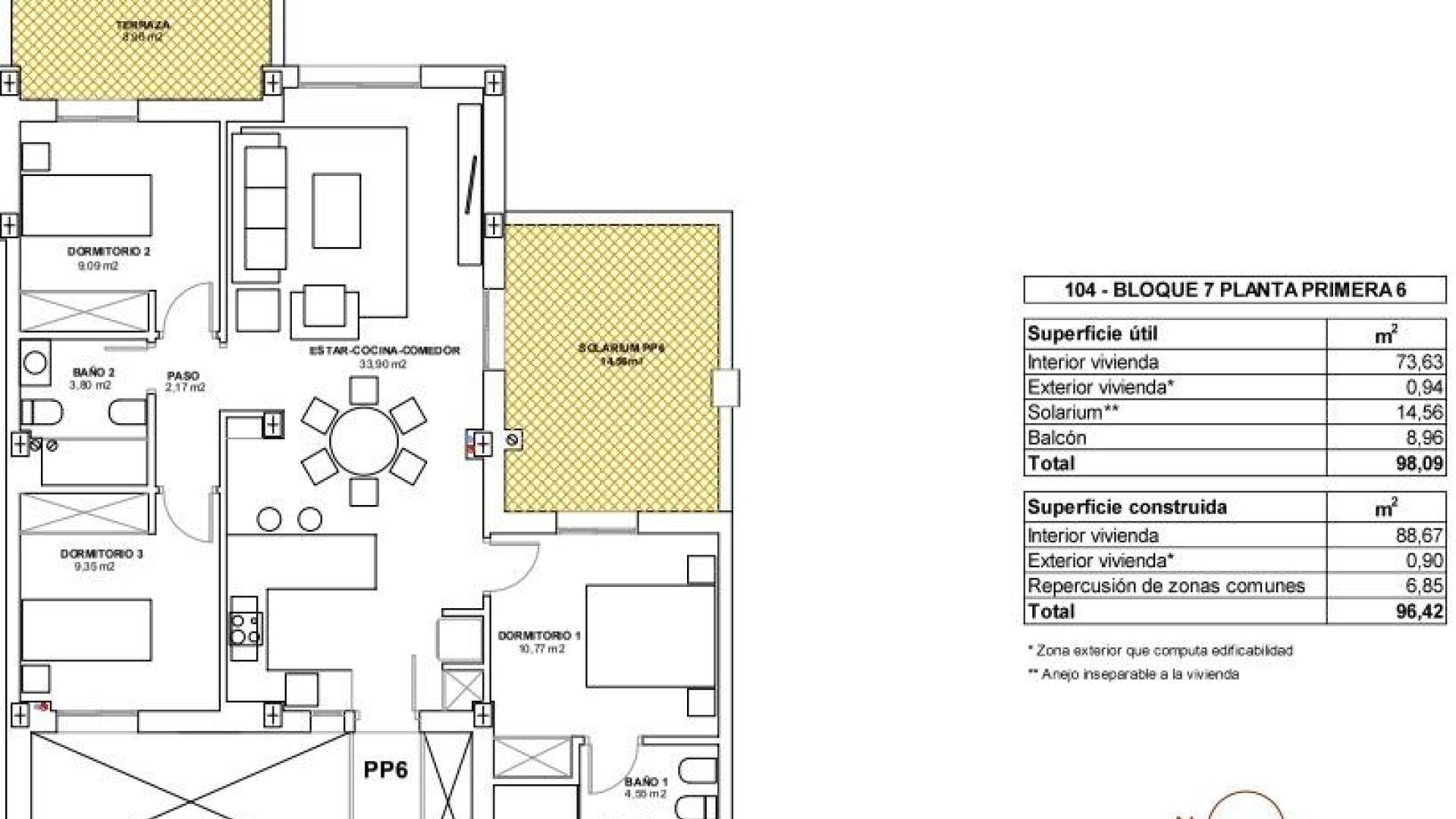
NYBYGGT BOSTADSOMRÅDE I VERA Nybyggd bostadsfastighet med lägenheter i Vera bara 400 meter från den stora stranden "El Playazo" i Vera. Typologierna är på bottenvåningen med två privata trädgårdar, en i varje riktning, vilket gör att du kan njuta av sol eller skugga när du vill beroende på tid på dagen eller årstiden. De första våningarna har terrasser och takvåningarna har stora solarier. Alla lägenheter har extra högt i tak (2,95 m) vilket ger en stor känsla av rymd. Köket kommer fullt möblerat och utrustat integrerat med vardagsrum/matsal med barområde. Dörrar och inbyggda garderober är lackerade i vitt och golvet är av laminerat trä. Den varm-kalla luftkonditioneringen och varmvattnet genereras av en toppmodern DAIKIN Aerothermal-enhet, en teknik som sparar upp till 70 % av elförbrukningen jämfört med traditionella system. Alla badrum har en dusch i stället för badkar, med infällda speglar och även med en bänkskiva i sten och en glasvägg i det stora badrummet. Persiennerna i vardagsrummet och det stora sovrummet är elektriska, hermetiskt förslutna och med justerbara lameller. Trädgårdarna och solariumet levereras med golv som är färdiga med en kombination av konstgräs och en vacker stenläggning som imiterar trä. Till varje hus hör en privat parkeringsplats utomhus. Varje kvarter i befordringen har en oberoende hiss. Både byggnaderna och lägenheterna har en rad bioklimatiska arkitekturegenskaper (orientering, isolering, fönster och fönsterluckor, pergola) som möjliggör optimal naturlig reglering av ventilation, temperatur och ljus under årets olika årstider. De gemensamma områdena består av gågator och grönområden, med en stor pool för vuxna och en annan för barn på det centrala torget. Hela urbaniseringen är fri från arkitektoniska hinder för funktionshindrade. Här garanteras lugn och avkoppling. Vera är en av de bästa naturistplatserna i Europa, erkänd för vattnets kvalitet och renhet. Här finns sex kilometer stränder (Las Marinas-Bolaga, Puerto Rey, El Playazo, Quitapellejos). Vera gränsar till kända turistmål som Mojacar och Almanzora-grottorna. Bostadsområde beläget ca 1,5 timmes bilresa från Murcia - Corvera flygplats och ca 2 timmar från Alicante flygplats.
Informationen som ges här är föremål för felskrivningar och utgör inte en del av något kontrakt. Erbjudandet kan ändras eller dras tillbaka utan förvarning. Priserna inkluderar inte övriga omkostnader.