
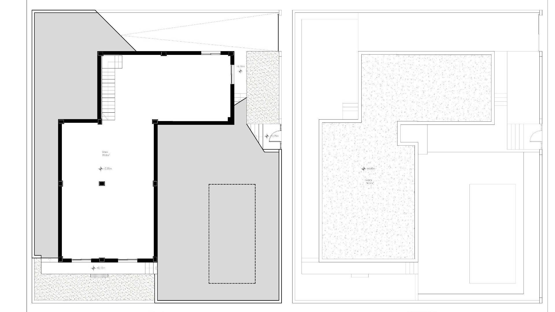
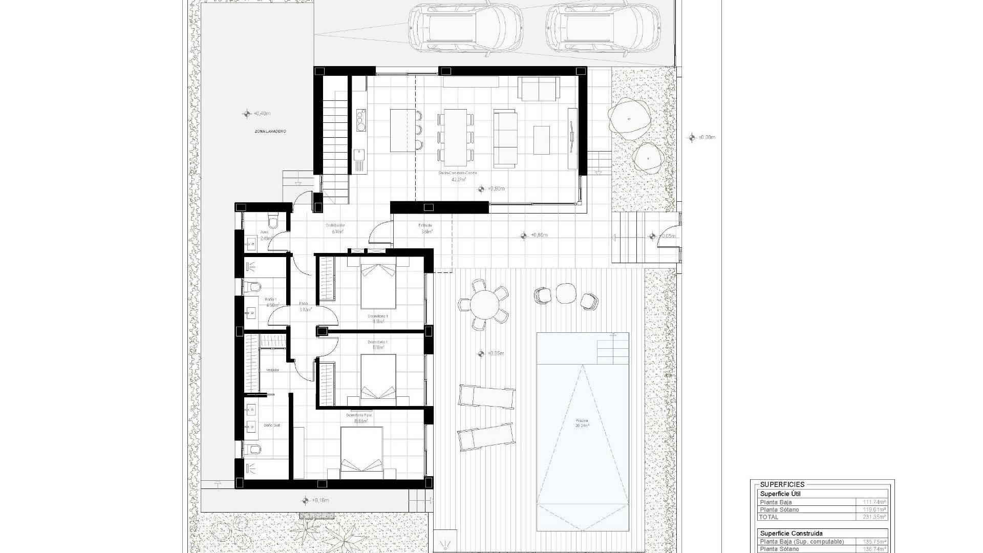
Nybyggda villor i Santa Rosalia Lake and Life Resort – exklusivt boende i Murcia Utmärkt läge nära Mar Menor Dessa nybyggda villor ligger i det prestigefyllda Santa Rosalia Lake and Life Resort, en privat gated community i regionen Murcia. Omgivet av förstklassiga golfbanor och bara 4 km från Mar Menors gyllene stränder erbjuder området en perfekt kombination av avskildhet, natur och lyxigt boende. Den livliga kuststaden Los Alcázares ligger bara 5 minuters bilresa bort, medan den historiska staden Cartagena ligger 15 minuter bort. Murcias internationella flygplats ligger cirka 22 km bort, vilket garanterar enkel tillgång från större europeiska städer. Moderna villor designade för komfort Varje villa har en modern, öppen planlösning med 3 sovrum, 2 badrum och en gästtoalett. Det ljusa och rymliga vardagsrummet har ett fullt utrustat kök med matplats och vardagsrum, som leder ut till en anlagd privat trädgård med pool. En privat parkeringsplats utanför vägen ingår också. På nedre plan finns en färdig källare på 136 m² med släta väggar, vatten- och elanslutningar, som erbjuder ett mångsidigt utrymme för ytterligare sovrum, kontor, gym, biorum eller lekrum för barnen. Högkvalitativa ytbehandlingar och hållbara funktioner Uppmärksamhet på detaljer är tydlig i alla aspekter av dessa hem. Höjdpunkter inkluderar en förstärkt säkerhetsdörr, motoriserade fönsterluckor i sovrummen, inbyggda garderober och ett kök utrustat med vitvaror. Hållbart boende säkerställs av sex installerade solcellspaneler. Trädgården är helt färdig med konstgräs, palmer, automatisk bevattning och dekorativa buskar. Ett effektivt luftkonditioneringssystem säkerställer komfort året runt. Santa Rosalia Lake and Life Resort – en oas i karibisk stil Anläggningen har 126 000 m² vackert anlagda grönområden med promenad- och cykelvägar, sportanläggningar, paddel- och tennisbanor, minigolf, hundparker, fritidsutrymmen och ett klubbhus. Mittpunkten är en spektakulär 17 000 m² kristallklar lagun med vita sandstränder och palmer, som skapar en äkta karibisk atmosfär. Två öar har fritidsområden med en bar och charmiga strandklubbar utspridda runt sjön. Perfekt för avkoppling, sport och investering Denna unika anläggning är perfekt för dig som söker en permanentbostad, ett fritidshus eller en investering med hög avkastning. Det strategiska läget ger enkel tillgång till kulturella, gastronomiska och rekreationsattraktioner, vilket gör det till ett utmärkt val för både familjer och golfentusiaster. Kontakta oss idag för att säkra din nya villa i Santa Rosalia Lake and Life Resort och börja njuta av den medelhavsinspirerade livsstilen.
Informationen som ges här är föremål för felskrivningar och utgör inte en del av något kontrakt. Erbjudandet kan ändras eller dras tillbaka utan förvarning. Priserna inkluderar inte övriga omkostnader.