
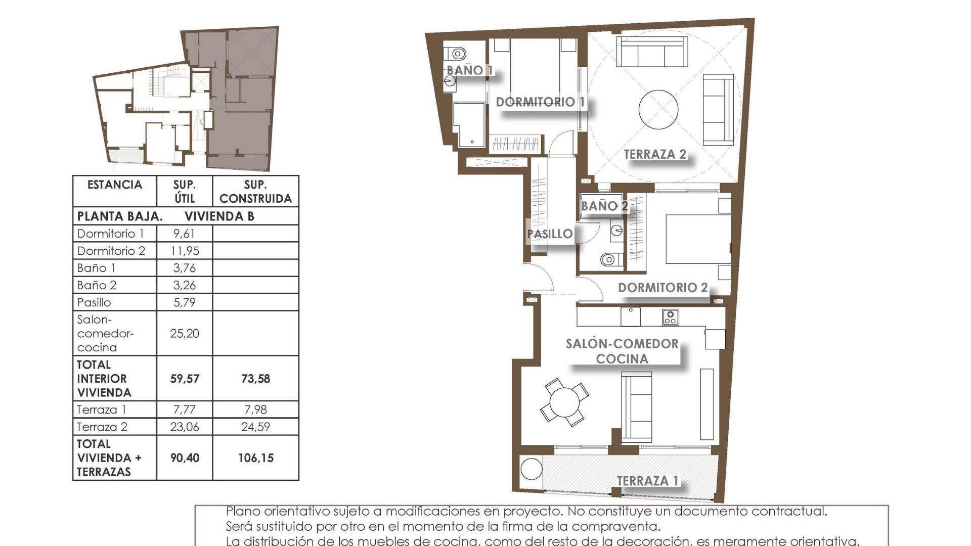
Moderna lägenheter till salu bara 250 meter från El Cura-stranden i Torrevieja, Costa Blanca Exklusiv nybyggnation nära havet Denna nya bostadsanläggning med 16 moderna bostäder är utformad för att fånga essensen av medelhavslivet. Belägen bara 250 meter från El Cura-stranden i Torrevieja (Alicante) erbjuder denna anläggning en perfekt blandning av komfort, design och läge. Med alla tjänster i närheten och utmärkta kollektivtrafikförbindelser, inklusive huvudbusstationen inom gångavstånd, erbjuder det en idealisk miljö för både åretruntboende och semester vid havet. Modern design och funktionella bostadsutrymmen Bostadsområdet omfattar ett urval av bostäder med 1 eller 2 sovrum och 1 eller 2 badrum, med olika planlösningar som passar alla livsstilar. Varje bostad kännetecknas av ljusa, öppna ytor, elegant finish och utmärkt byggkvalitet. Bland funktionerna finns inbyggda garderober, förinstallation av luftkonditionering, hiss och högkvalitativa material i hela lägenheten. Lägenheterna på bottenvåningen och standardlägenheterna har privata terrasser som är perfekta för avkoppling utomhus, medan takvåningarna har rymliga privata solterrasser – perfekta för solbad, middagar eller för att njuta av de vackra solnedgångarna över Medelhavet. Exklusiva gemensamma utrymmen för din njutning Bostadskomplexet är utformat för komfort och socialt umgänge. Boende kan njuta av ett spektakulärt gemensamt område på taket med pool, solstolar och anlagda områden – en fridfull oas för sommarens avkoppling. Utmärkt läge i Torrevieja Torrevieja är en av de mest populära destinationerna på Costa Blanca, känd för sina kristallklara stränder, behagliga klimat året runt och livliga atmosfär vid havet. Att bo här innebär att du kan njuta av dagliga promenader längs strandpromenaden, äta på restauranger vid stranden och uppleva den autentiska medelhavslivsstilen. Avstånd till viktiga sevärdheter El Cura-stranden: 250 m Torrevieja marina och hamn: 2 km Las Habaneras shoppingcenter: 3 km Närmaste golfbanor: 7–10 km Alicante-Elche flygplats: 45 km Det perfekta hemmet vid havet Oavsett om du letar efter en permanent bostad, ett semesterhus eller en smart investeringsmöjlighet, erbjuder dessa nybyggda lägenheter i Torrevieja den perfekta kombinationen av modernt boende, kustnära charm och bekvämlighet. Kontakta oss idag för mer information eller för att boka ett besök och säkra ditt drömhem bara några steg från El Cura-stranden i Torrevieja.
Informationen som ges här är föremål för felskrivningar och utgör inte en del av något kontrakt. Erbjudandet kan ändras eller dras tillbaka utan förvarning. Priserna inkluderar inte övriga omkostnader.