
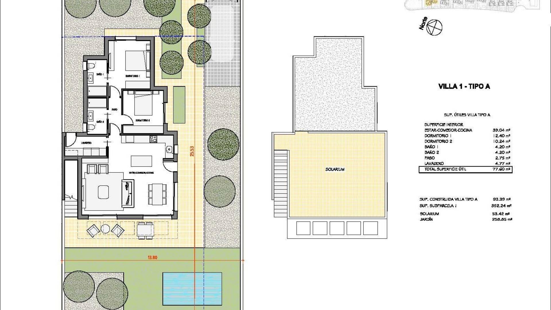
Nybyggda villor i Hacienda del Álamo Golf Resort, Murcia Moderna bostäder i en naturskön och exklusiv miljö Upptäck dessa fantastiska nybyggda villor i det prestigefyllda Hacienda del Álamo Golf Resort, en gated community i regionen Murcia som kombinerar lugn, säkerhet och ett komplett utbud av tjänster. Omgiven av natur och med ett privilegierat klimat är denna anläggning idealisk för dem som söker en avslappnad livsstil utan att ge avkall på komforten. Villor med 2 eller 3 sovrum på en våning med privat solarium Bostadsområdet består av 17 villor på tomter från 300 m2. Du kan välja mellan bostäder med 2 eller 3 sovrum och 2 kompletta badrum på en våning, samt en terrass med privat pool på 6x2,4 och ett privat solarium på taket. Högkvalitativa ytbehandlingar och garanterad komfort Bostäderna är designade med högkvalitativa material och utformade för att erbjuda energieffektivitet och välbefinnande: Utvändig snickerier med termisk brytning Varmvatten via aerotermiskt system Förinstallation av luftkonditionering med kanaler Privat pool Separat installation för bevattningsvatten med ackumulatorbehållare och individuell tryckgrupp. Motoriserad port för fordon. Motoriserade persienner i sovrummen Pansrad ytterdörr Ett resort med fullständiga tjänster och golfbana Hacienda del Álamo är ett av de mest kompletta komplexen på Costa Cálida. Det har: 18-håls golfbana Hotell med spa Supermarket Restauranger och barer Idrottsbanor och grönområden 24-timmars säkerhet Bostadsområdet återskapar atmosfären i en traditionell medelhavsby, med lugna gator och en genomtänkt design. Strategiskt läge nära allt Murcias internationella flygplats (Corvera): 20 km Ytterligare golfbanor: mindre än 10 km Cartagena: 35 km Stränderna vid Mar Menor: 30 km Köpcentret Espacio Mediterráneo: 28 km Hamnen i Mazarrón: 40 km Bo med stil på Costa Cálida Dessa villor är ett utmärkt tillfälle att bo eller investera i ett av Murcias mest lovande områden. Kontakta oss nu och upptäck ditt nästa hem på Hacienda del Álamo Golf Resort.
Informationen som ges här är föremål för felskrivningar och utgör inte en del av något kontrakt. Erbjudandet kan ändras eller dras tillbaka utan förvarning. Priserna inkluderar inte övriga omkostnader.