
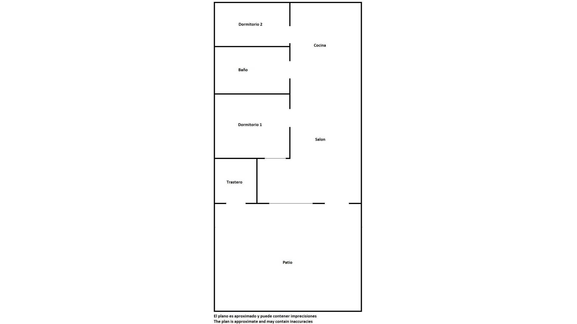
Till salu: fullt renoverat hus på 54 m² med en rymlig tomt på 30 m². Möjlighet till privat pool. Östlig riktning som ger sol största delen av dagen. Perfekt kombination av modernt komfort och säkerhet: - Modernt interiör: isolerade väggar med gipsskivor, högt tak, nya fönster och dörrar. - Säkerhet: stabil ytterdörr med tre låspunkter, Wi-Fi-ansluten övervakningskamera. - Moderna installationer: ny el med zonindelning, uppdaterat vatten- och avloppssystem. - Komfort året runt: ny luftkonditionering med värme- och kylfunktion, justerbar belysning med fläktar. - Fullt utrustat kök och vitvaror: ny diskmaskin, tvättmaskin, torktumlare, varmvattenberedare med mera. - Välskött tomt: nytt staket och entrégrind, rymligt område för avkoppling och socialt umgänge. - Läge: lugnt område utan högljudda barer i närheten, men nära kommunikationer och gångavstånd till stora köpcentrum, stormarknader, skolor, restauranger och barer. 800 meter till en saltsjö som skapar ett mikroklimat som är bra för andningen. Endast 10 minuter med bil till Torreviejas bästa stränder och omgivningar. Valfritt: grillområde och privat pool
Informationen som ges här är föremål för felskrivningar och utgör inte en del av något kontrakt. Erbjudandet kan ändras eller dras tillbaka utan förvarning. Priserna inkluderar inte övriga omkostnader.