
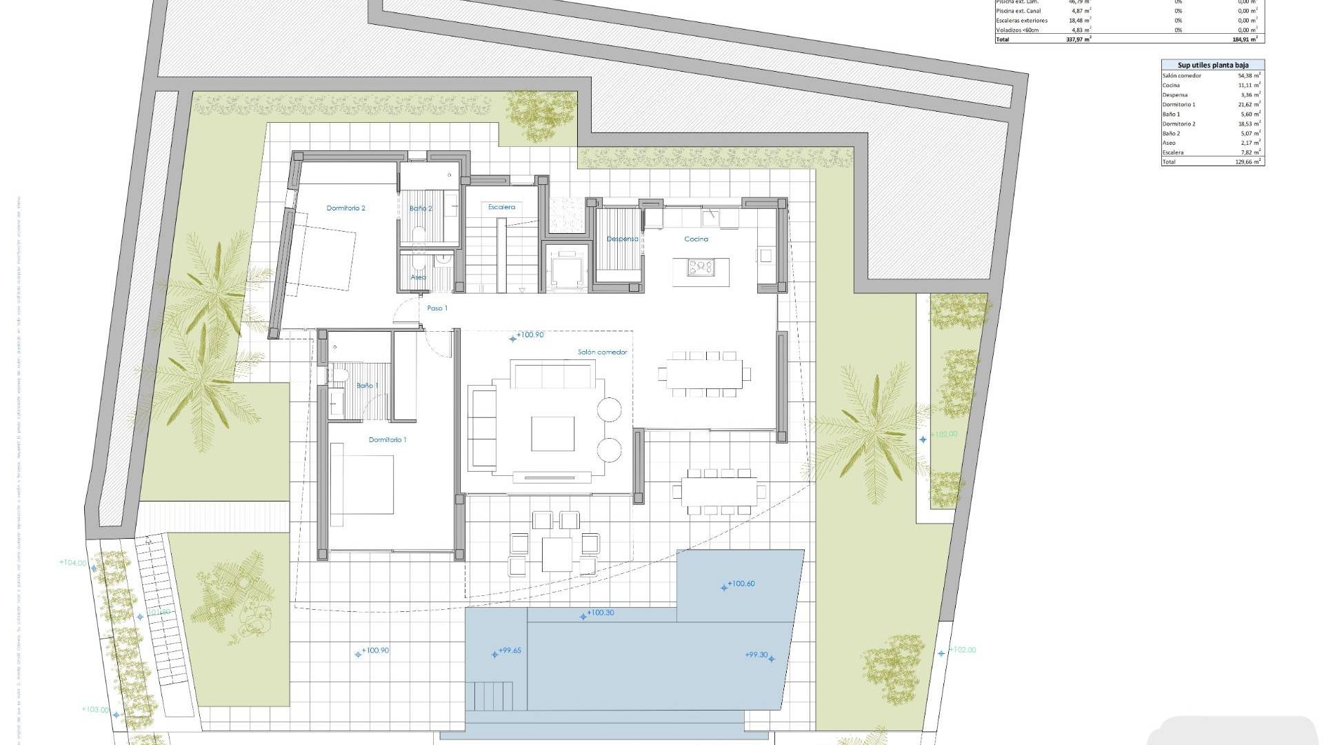
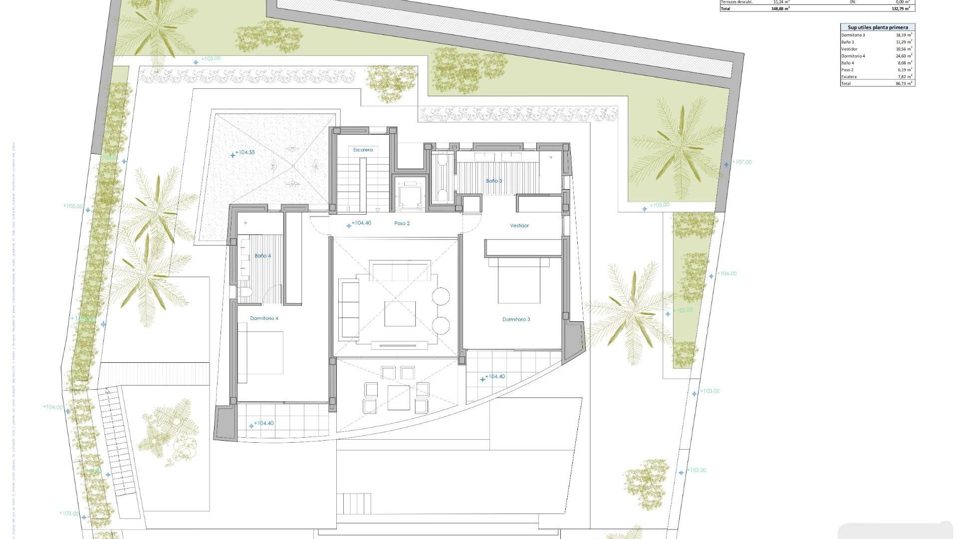
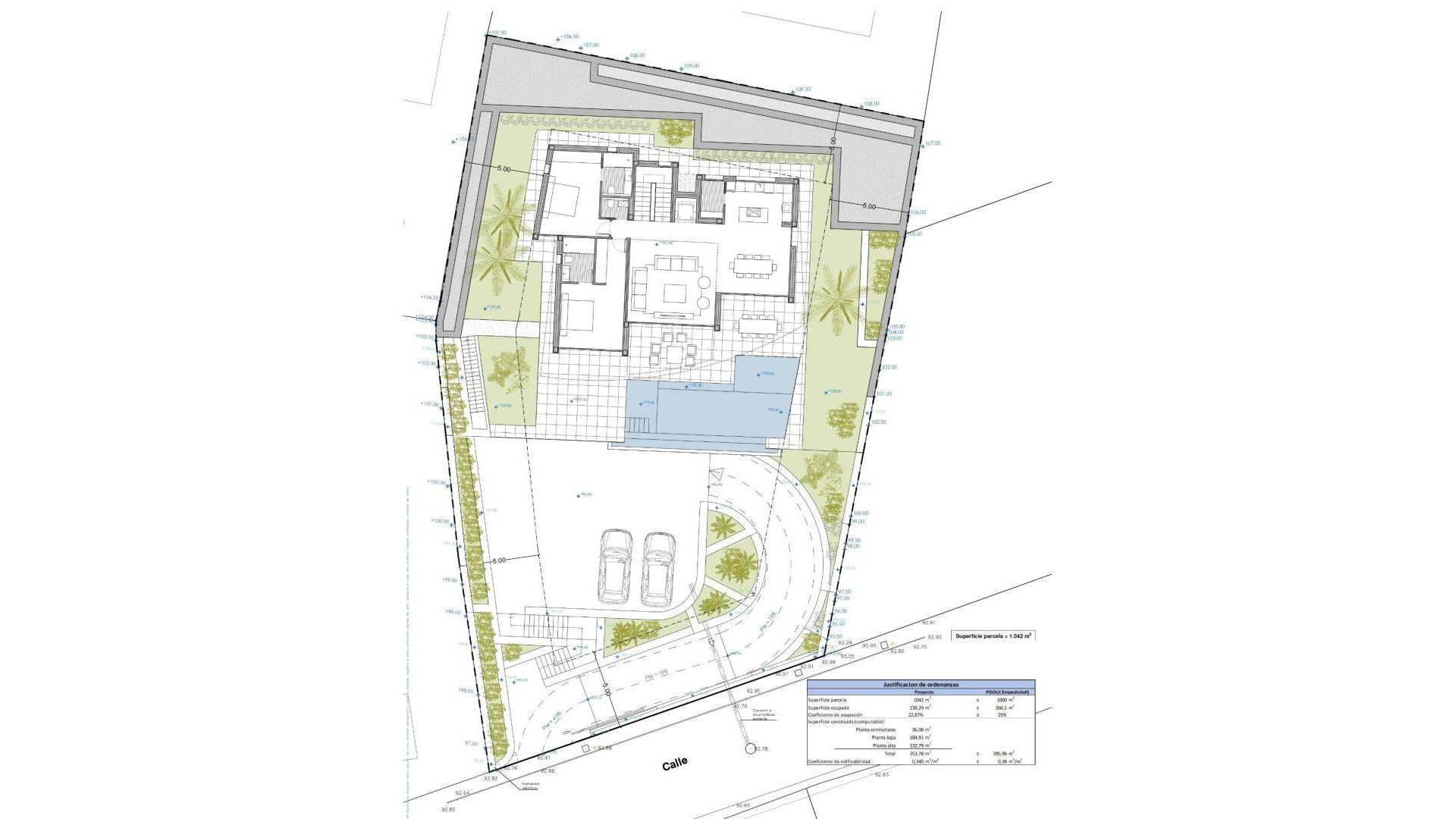
Luxuriöse Villa mit Meerblick in Calpe - Moderne Eleganz mit atemberaubender Aussicht Erstklassige Lage in Calpe, Alicante - ruhige und etablierte Gegend Diese luxuriöse Villa befindet sich in Calpe, Alicante, eingebettet in einer ruhigen und etablierten Gegend, die für ihren Charme und die Nähe zu einigen der besten Attraktionen der Gegend bekannt ist. Nur 5,4 km vom Zentrum von Calpe entfernt, bietet diese Villa bequemen Zugang zum Stadtzentrum und zu den atemberaubenden Stränden von Calpe, die sich durch kristallklares Wasser und weichen Sand auszeichnen. Calpe ist bekannt für seine landschaftliche Schönheit und ist umgeben von Naturparks und dem berühmten Peñón de Ifach, einem Wahrzeichen, das der Landschaft einen einzigartigen Charakter verleiht. Interessante Punkte in der Nähe: Calpe Zentrum und Strände: Nur 5,4 km entfernt, mit leichtem Zugang zu den örtlichen Geschäften, Restaurants und Stränden. Flughafen Alicante: 78 km, ideal für internationale und nationale Reisen. Golfplätze: Mehrere renommierte Golfplätze befinden sich in einem Umkreis von 15 km, ideal für Golfliebhaber. Einkaufszentren: Das beliebte La Marina Shopping Center in Benidorm ist ca. 25 km entfernt und bietet eine Vielzahl von Einkaufsmöglichkeiten und Restaurants. Hafen von Calpe: Ca. 6 km entfernt, ideal für Yachtliebhaber und Wassersportler. Atemberaubende Villa mit Meerblick und modernem Komfort auf 3 Etagen Diese Villa bietet 335 m² luxuriöse Wohnfläche auf einem großzügigen 1.042 m² großen Grundstück, mit spektakulärem Blick auf das Meer, den Peñón de Ifach und die Stadt Calpe. Mit drei durchdacht gestalteten Etagen, die durch eine Innentreppe und einen Aufzug miteinander verbunden sind, bietet diese Villa Stil und Komfort auf jeder Ebene. Halb-Untergeschoss: Parkplatz, Waschküche und Weinkeller Wenn man von der Straße durch ein automatisches Tor einfährt, gelangt man direkt zur Einfahrt in die Garage, die sich auf der Halbkellerebene befindet. Die geräumige 52 m² große Garage bietet Platz für mehrere Fahrzeuge und verfügt über einen eigenen Waschraum und einen Weinkeller, der einen Hauch von Luxus und Zweckmäßigkeit vermittelt. Hauptgeschoss: Offener Wohnbereich und Zugang zum Pool Im Hauptgeschoss, das Sie über eine Treppe oder einen Aufzug erreichen, finden Sie einen großzügigen Wohn- und Essbereich, der zu einer 25 m² großen Veranda und einer beeindruckenden 78 m² großen Poolterrasse führt. Die offene Küche, die komplett mit Siemens-Geräten ausgestattet ist, geht nahtlos in den Wohnbereich über. Auf dieser Etage befinden sich auch zwei Schlafzimmer mit eigenem Bad und ein Gäste-WC. Obere Etage: Private Schlafzimmer mit herrlichen Terrassen Im Obergeschoss befinden sich zwei weitere Doppelschlafzimmer, jeweils mit eigenem Bad und Zugang zu offenen Terrassen mit Panoramablick. Hochwertige Oberflächen und moderne Annehmlichkeiten Die Villa verfügt über eine erstklassige Ausstattung, darunter Technal-Tischlerei mit Sicherheitsglas, LED-Beleuchtung, Fußbodenheizung, Klimaanlage und ein aerothermisches System für Warmwasser und Heizung. Weitere Annehmlichkeiten sind elektrische Jalousien, Einbauschränke, Alarmanlagen für innen und außen, vorinstallierte Sicherheitskameras und ein 10 x 3,3 m großer Infinity-Pool mit Grillplatz. Die Villa ist nach Süden ausgerichtet, um eine optimale Sonneneinstrahlung zu gewährleisten, und verfügt über eine Energieeffizienzklasse A. Erleben Sie ein luxuriöses und ruhiges Leben in Calpe 489
Diese hier angegebenen Informationen unterliegen Fehlern und sind nicht Bestandteil eines Vertrages. Das Angebot kann ohne vorherige Ankündigung geändert oder zurückgezogen werden. Die Preise beinhalten keine Einkaufskosten.