
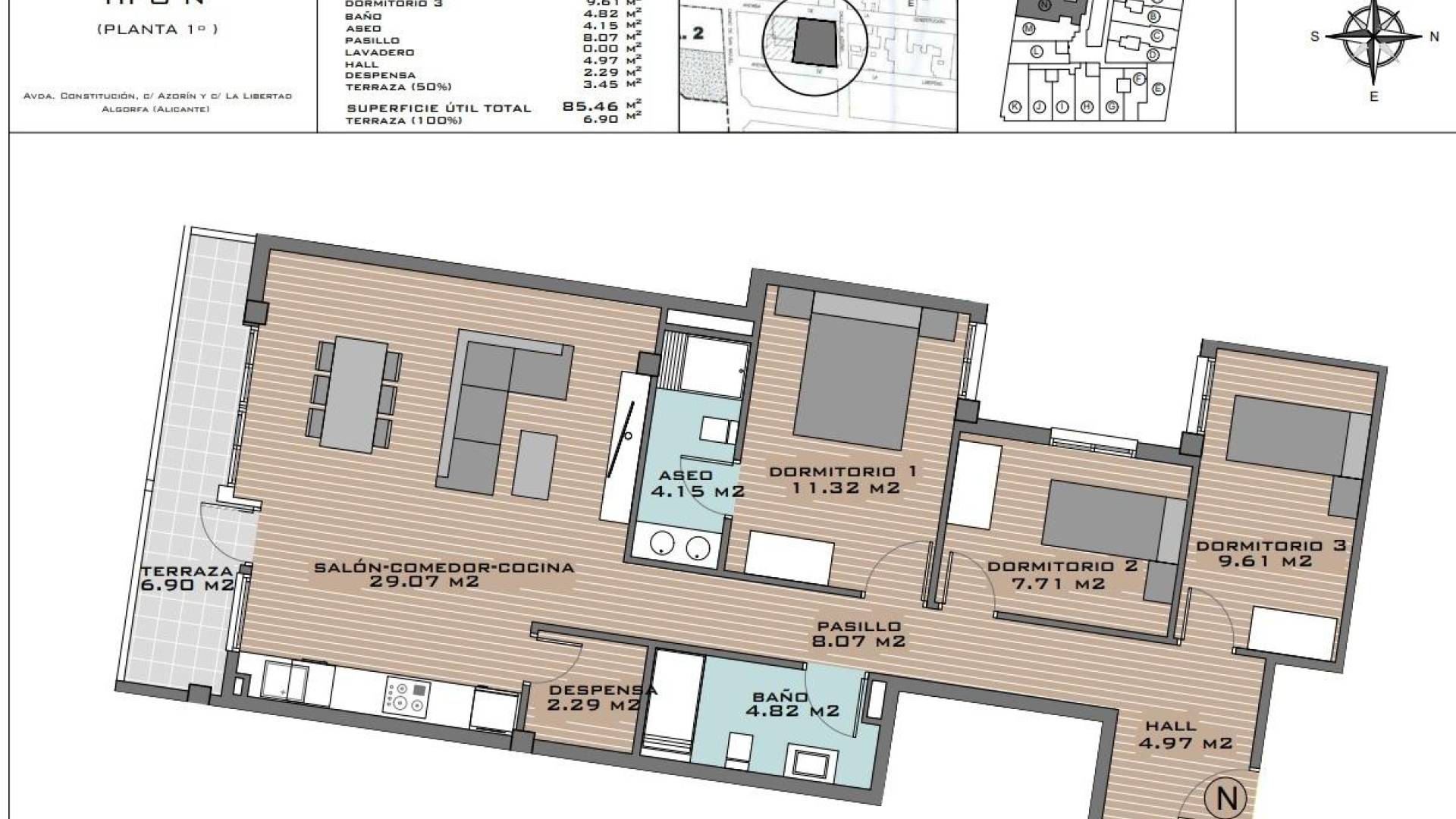
RESIDENCIAL DE OBRA NUEVA EN ALGORFA Residencial de obra nueva de 41 elegantes apartamentos y áticos en Algorfa. Residencial consta de apartamentos de 1, 2 y 3 dormitorios, con 1 o 2 baños, cocina americana con el salón, armarios empotrados. Los modernos áticos disponen de solarium privado. Preinstalación de aire acondicionado frío/calor, impulsión por conductos y retorno por rejillas en falso techo. Cocina y frente en compacto de PVC, equipada con armarios bajos y altos, frentes de cajones y puertas en combinación de laminado blanco y laminado de madera. Etiqueta energética A. Posibilidad de plaza de garaje subterránea y trastero con coste adicional. Acceso a una piscina comunitaria para la relajación y el ocio. Gimnasio in situ para los entusiastas de la salud y la forma física. Enclavado en el corazón de un pueblo tradicional, Algorfa ofrece la mezcla perfecta de encanto español y comodidades modernas, por lo que es un destino ideal tanto para turistas como para locales. Residencial situado a poca distancia del centro del pueblo, colegios y el campo de golf La finca. A sólo 15 minutos de hermosas playas y hospitales. A 35 minutos en coche del aeropuerto.
Esta información que se proporciona aquí está sujeta a errores y no forma parte de ningún contrato. La oferta se puede cambiar o retirar sin previo aviso. Los precios no incluyen los costes de compra