Alicante (Costa Blanca) - Aspe Poligono 19
Ref.: N8933
Chalet Obra nueva

Detalles

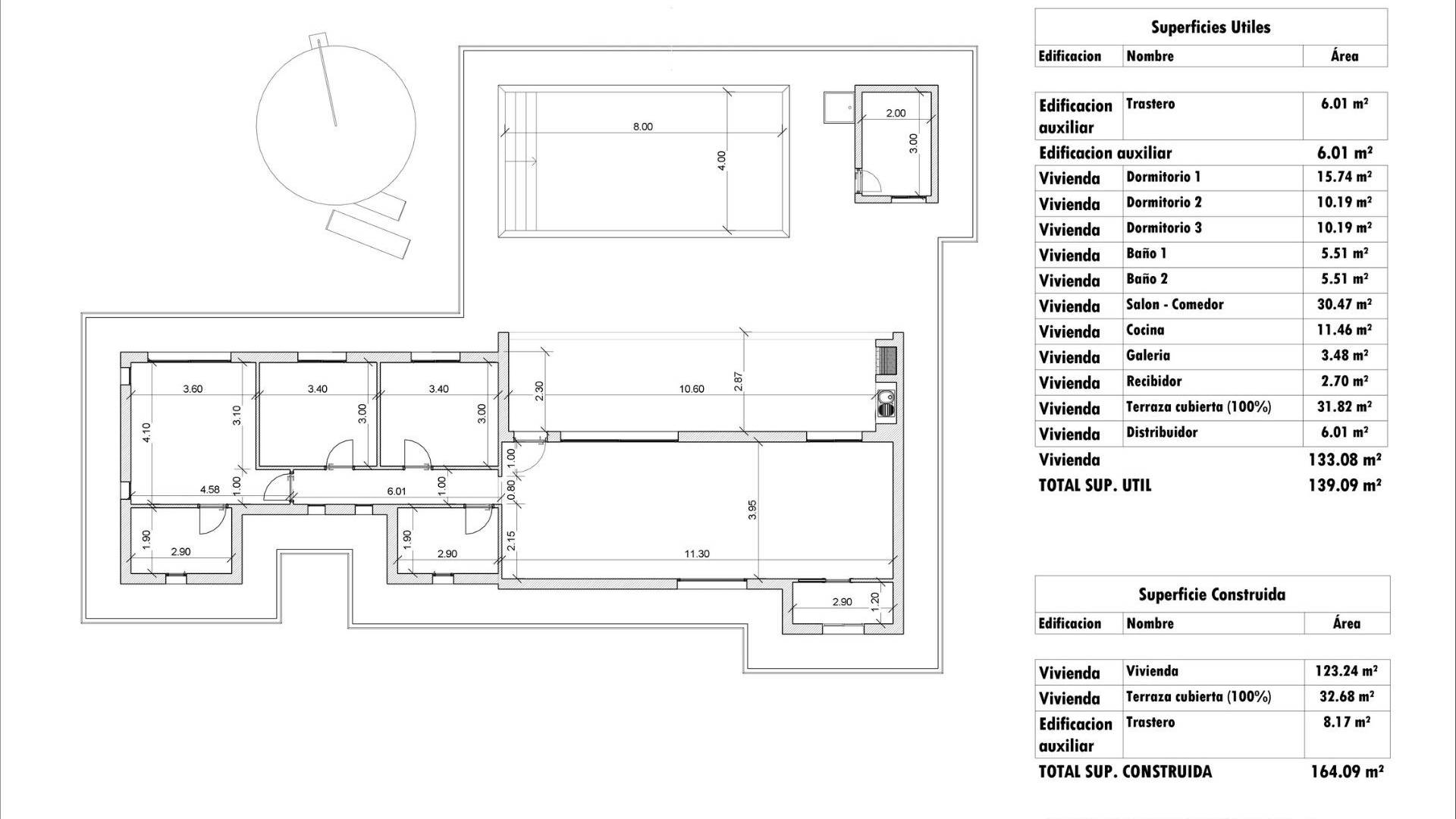
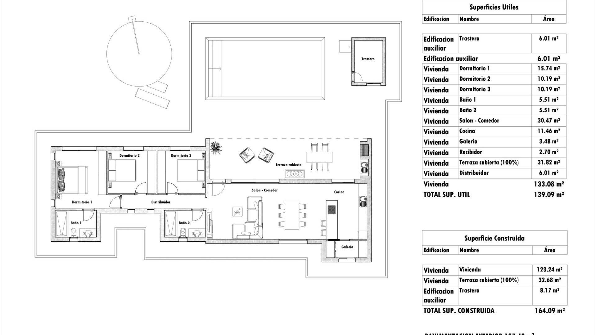
  • 164m2
  • 13.172m2
  • 3
  • 2
  •  

Características

icon Habitaciones: 3
icon Baños: 2
icon Construidos: 164m2
icon Parcela: 13.172m2
icon Piscina:
icon Private Pool
icon Gated
icon Near Schools
icon Number of Parking Spaces: 1
icon Air Conditioning: Pre-Installed
icon Garden
icon Terrace: 32 Msq.
icon Double Bedrooms: 3
icon Parking - Space
icon Beach: 25000 Meters
icon Location: Mountain
icon Useable Build Space: 139 Msq.
icon Storage / Trastero
Calificación energética
Calificación energética:
B

Descripción

Villas de obra nueva situadas en término de Aspe. Villas de obra nueva con varios modelos a elegir entre 2, 3 o 4 dormitorios, de una o 2 plantas y construidas con losa o con estructura: dependiendo del modelo y la parcela elegida, se calculará el precio exacto. Todas las villas se construyen en parcelas rústicas de más de 10.000 m2 de los cuales se vallarán unos 2.500 m2. Las villas disponen de cocina americana con el salón, armarios empotrados, piscina privada, porche, trastero y plaza de parking exterior. Hay varias parcelas a elegir, para el cálculo del precio se ha considerado una parcela con un precio de 75 000 eur (si se elige otra parcela, se pagará o abonará la diferencia según el precio de la misma). Realizada en régimen de auto promoción, entrega en unos 12 meses desde la concesión de la licencia. Si busca un entorno tranquilo, cerca de pueblos típicos españoles alejados de la masificación turística, rodeado de montañas, con una amplísima parcela y a unos 30 minutos del mar, esta es su casa. Aspe es un típico pueblo español con todos los servicios para el día a día, rodeado de montañas y con varios parajes naturales en las cercanías donde se pueden hacer rutas de senderismo o mountain bike. Situado a 25 km de la playa, a 9 km de Elche y a unos 20 km del aeropuerto de Alicante.

Localización

Economía

Esta información que se proporciona aquí está sujeta a errores y no forma parte de ningún contrato. La oferta se puede cambiar o retirar sin previo aviso. Los precios no incluyen los costes de compra

Calcular hipoteca

Cambio de divisas

  • Libras: 356.517 GBP
  • Rublo Ruso: 356.517 RUB
  • Franco Suizo: 377.548 CHF
  • Yuan Chino: 3.291.755 CNY
  • Dolar: 482.497 USD
  • Corona Sueca: 4.418.427 SEK
  • Corona Noruega: 4.505.953 NOK

Solicitar información

Responsable del tratamiento: Costa Weflen Group SL, Finalidad del tratamiento: Gestión y control de los servicios ofrecidos a través de la página Web de Servicios inmobiliarios, Envío de información a traves de newsletter y otros, Legitimación: Por consentimiento, Destinatarios: No se cederan los datos, salvo para elaborar contabilidad, Derechos de las personas interesadas: Acceder, rectificar y suprimir los datos, solicitar la portabilidad de los mismos, oponerse altratamiento y solicitar la limitación de éste, Procedencia de los datos: El Propio interesado, Información Adicional: Puede consultarse la información adicional y detallada sobre protección de datos Aquí.

Contactar

Hilde Jeanette Weflen
Propietaria y Gerente General Teléfono +34 639 689 651 Email hilde@cweflengroup.com

© 2026 Costa Weflen Group · Nota legal · Privacidad · Cookies · Mapa Web

Diseño: Mediaelx

Contactar WhatsApp
WhatsApp