
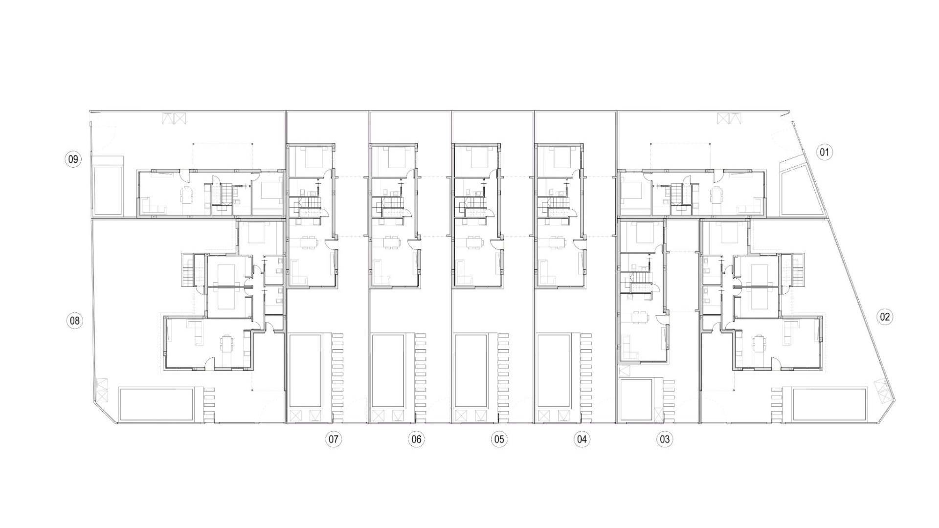
Villas de Obra Nueva con Piscina Privada en Los Alcázares, Costa Cálida Exclusivas Villas Modernas a Solo 700 Metros del Mar Descubre este exclusivo residencial de 9 villas de obra nueva en Los Alcázares, una de las localidades más valoradas de la Costa Cálida por su cercanía al mar, su ambiente relajado y su excelente oferta de servicios. Cada villa cuenta con piscina privada, garaje cubierto independiente, y ha sido diseñada para ofrecer confort, funcionalidad y estilo contemporáneo. Las viviendas se distribuyen en una o dos plantas y cuentan con 3 dormitorios y 2 baños, cocina de estilo abierto completamente equipada, amplio salón comedor, terraza y jardín en planta baja y solárium privado en planta cubierta con cocina de verano. Gracias a sus diferentes orientaciones, permiten aprovechar el sol durante todo el día, todo el año. Equipamiento de Alta Calidad Estas villas están diseñadas con materiales de primera calidad y ofrecen: Piscina privada con ducha exterior Cocina equipada con electrodomésticos: frigorífico, horno elevado, microondas empotrado, vitrocerámica, campana extractora y lavavajillas integrado Armarios empotrados forrados con cajoneras Baños completos con mueble, espejo con luz y mamparas de ducha Preinstalación de aire acondicionado Instalación de 2 paneles solares Cocina de verano en el solárium Plaza de garaje cubierta en parcela Ubicación Inmejorable en la Costa Cálida Situadas a solo 700 metros de las playas del Mar Menor, estas viviendas permiten disfrutar de un entorno natural único con aguas tranquilas y cálidas. Los Alcázares combina un estilo de vida relajado con todos los servicios a mano: supermercados, restaurantes, instalaciones deportivas y centros de salud. Ideal tanto para residencia habitual como para vacaciones. Distancias a Puntos de Interés Playa del Mar Menor: 0.7 km Campos de golf (Roda, La Serena, Mar Menor Golf): entre 3 y 10 km Aeropuerto Internacional de Murcia: 30 km Cartagena: 22 km Centro comercial Dos Mares: 13 km Puerto deportivo de Los Alcázares: 2 km Tu Refugio de Sol y Tranquilidad en el Mediterráneo Estas villas ofrecen la combinación perfecta entre diseño moderno, privacidad, confort y una ubicación privilegiada. Contacta con nosotros hoy y agenda tu visita para descubrir tu próxima vivienda junto al mar.
Esta información que se proporciona aquí está sujeta a errores y no forma parte de ningún contrato. La oferta se puede cambiar o retirar sin previo aviso. Los precios no incluyen los costes de compra
© 2026 Costa Weflen Group · Nota legal · Privacidad · Cookies · Mapa Web
Diseño: Mediaelx
En primer lugar, gracias por contactarnos.
Hemos recibido su solicitud con respecto a la referencia de propiedad:N9005. Uno de nuestros agentes se pondrá en contacto con usted lo antes posible.
En primer lugar, gracias por contactarnos.
Hemos recibido una solicitud de informe si baja el precio de la propiedad con la referencia: N9005
Mientras tanto, eche un vistazo a esta selección de propiedades similares que podrían ser de su interés: