
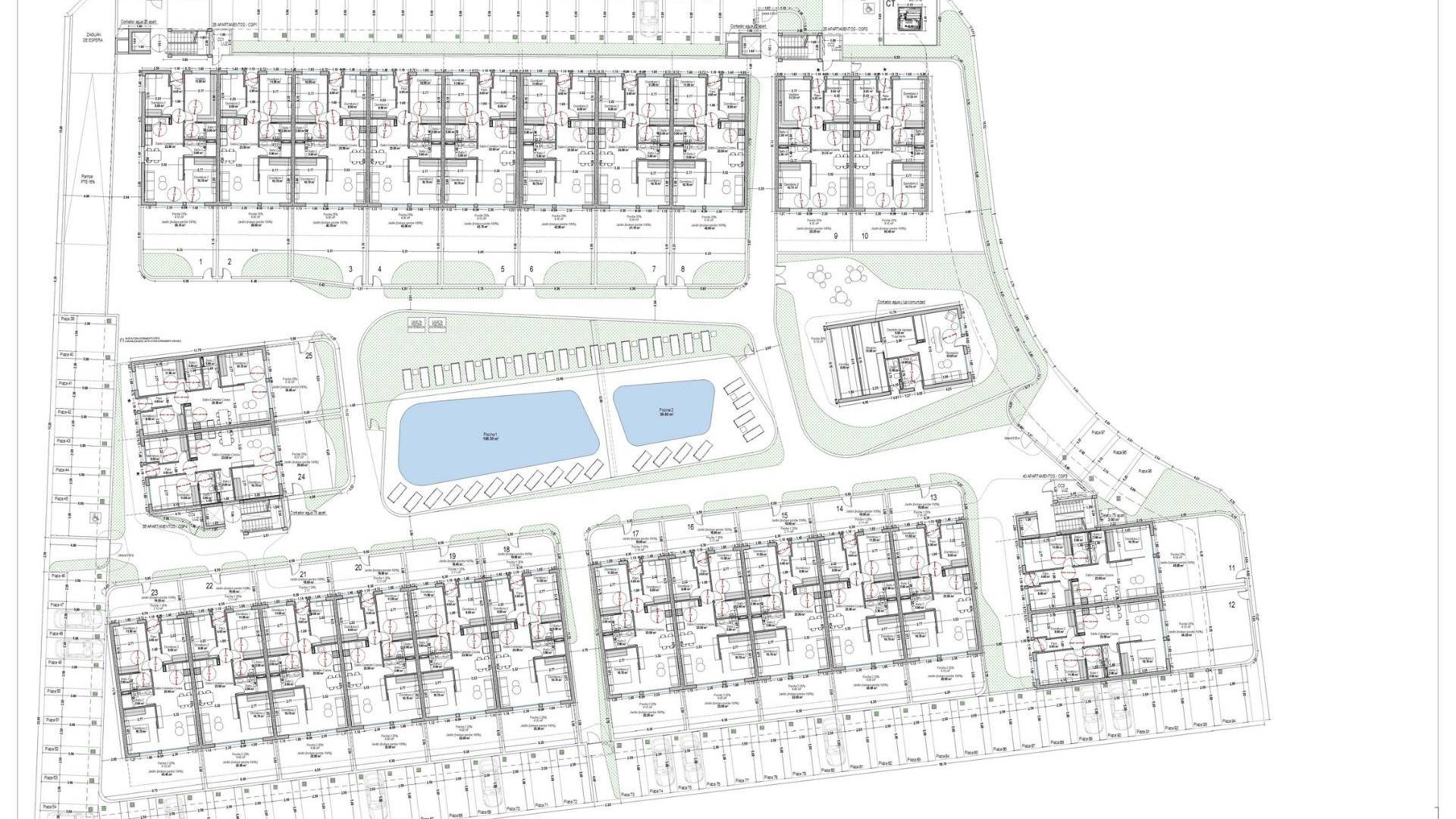
Apartamentos turísticos de nueva construcción en Santiago de la Ribera, San Javier, a solo 750 m de la playa Exclusiva promoción en la Costa Cálida Este exclusivo complejo residencial de 125 apartamentos turísticos se encuentra en Santiago de la Ribera (San Javier), una encantadora localidad costera de la Costa Cálida, famosa por sus hermosas playas de arena, su relajado estilo de vida mediterráneo y su excelente clima durante todo el año. Con el Mar Menor a solo 750 metros, estas viviendas ofrecen la combinación perfecta de comodidad, estilo y proximidad al mar. Apartamentos modernos con múltiples opciones La promoción ofrece amplios apartamentos de 3 dormitorios y 2 baños, incluyendo un dormitorio principal con baño en suite. Los compradores pueden elegir entre: Viviendas en planta baja con jardín privado Apartamentos en plantas intermedias con amplias terrazas Áticos con solárium privado Cada vivienda está diseñada para maximizar la luz natural y la vida al aire libre. Las características incluyen cocinas totalmente equipadas y amuebladas con electrodomésticos, iluminación interior y exterior, baños con muebles y mamparas de ducha. Todas las propiedades cuentan con una plaza de aparcamiento en superficie, mientras que el aparcamiento subterráneo y los trasteros están disponibles con un coste adicional. Servicios y comodidades de primera calidad Los propietarios disfrutarán de un edificio moderno equipado con ascensores, dos piscinas comunitarias y hermosos jardines. Las viviendas incluyen la preinstalación de aire acondicionado por conductos para disfrutar de comodidad durante todo el año. Una oportunidad de inversión inteligente Estos apartamentos cuentan con licencia turística ya concedida, lo que los convierte en una excelente inversión para alquileres vacacionales. Los propietarios pueden generar ingresos mediante alquileres a corto plazo, al tiempo que disfrutan de la propiedad para sus propias vacaciones familiares. Tenga en cuenta que estas residencias están destinadas a uso vacacional y no pueden utilizarse como viviendas permanentes. Ubicación privilegiada en San Javier La promoción está estratégicamente situada cerca de todos los servicios esenciales y actividades de ocio. Distancias a los principales puntos de interés: Playa del Mar Menor: 750 m Centro comercial La Ribera: 2 km Centro comercial Dos Mares: 3 km Roda Golf: 5 km Puerto deportivo de Lo Pagán: 4 km Aeropuerto de Murcia (Corvera): 40 km Cartagena: 30 km Ciudad de Murcia: 40 km Haga realidad su sueño costero Este nuevo proyecto de construcción en Santiago de la Ribera representa una oportunidad única para disfrutar del estilo de vida mediterráneo y, al mismo tiempo, realizar una inteligente inversión en alquiler. Póngase en contacto con nosotros hoy mismo para obtener más detalles o concertar una visita a estos modernos apartamentos turísticos a pocos pasos del Mar Menor.
Esta información que se proporciona aquí está sujeta a errores y no forma parte de ningún contrato. La oferta se puede cambiar o retirar sin previo aviso. Los precios no incluyen los costes de compra