
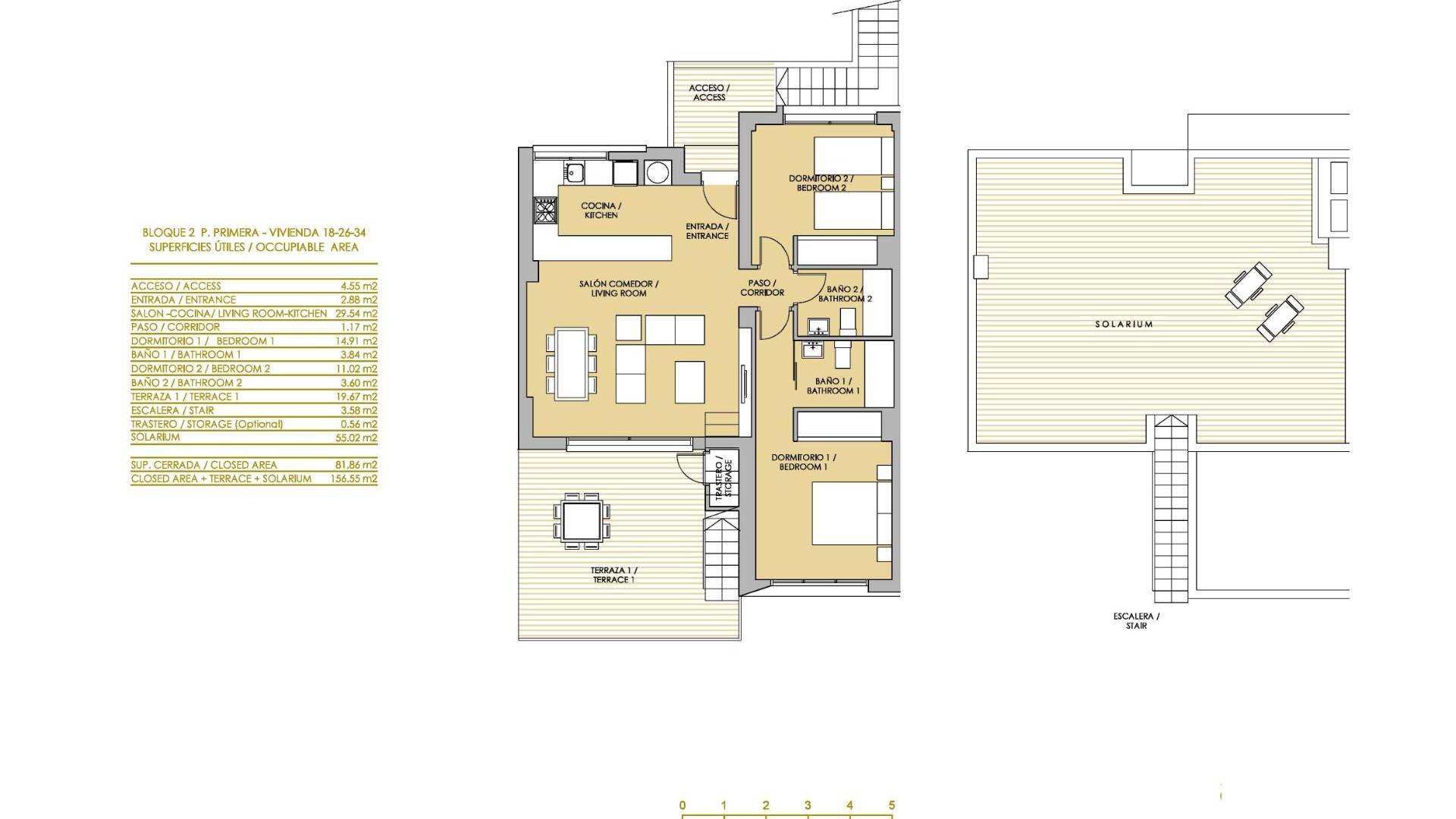
RESIDENCIAL DE OBRA NUEVA DE BUNGALOWS EN VISTABELLA Residencial de nueva construcción de apartamentos bungalow en Vistabella cerca del campo de golf. Complejo con instalaciones comunitarias y piscina consta de bungalows de 2 y 3 dormitorios, en planta baja con jardín privado y planta alta con solarium privado, cocina abierta con la zona del salón, armarios empotrados, terraza. Cado apartamento tiene aparcamiento privado. Un almacén de opciones con un costo adicional. En Vistabella Golf hay espacio para todos. El campo está diseñado para que cada jugador pueda disfrutarlo de principio a fin. Sus calles onduladas, sus bunkers estratégicos o sus lagos son algunas de las características que lo convierten en uno de los diseños más atractivos de la zona, donde cada golpe es un reto y un placer para los sentidos. Los 18 Hoyos de Vistabella Golf, de par 72 y más de 6.000 metros de longitud han sido diseñados siguiendo las pautas de los campos modernos con 4 tees de gran amplitud en cada hoyo, amplias calles y bunkers elevados. La casa club de Vistabella Golf y su restaurante, así como los bares y tiendas locales, se encuentran a 5 minutos a pie. El concurrido pueblo de San Miguel de Salinas y Los Montesinos están a 5 minutos en coche y las encantadoras playas de bandera azul de Guardamar están a sólo 15 minutos en coche. El aeropuerto de Alicante está a 35 minutos y el nuevo aeropuerto de Corvera Murcia está a 45 minutos.
Esta información que se proporciona aquí está sujeta a errores y no forma parte de ningún contrato. La oferta se puede cambiar o retirar sin previo aviso. Los precios no incluyen los costes de compra
© 2026 Costa Weflen Group · Nota legal · Privacidad · Cookies · Mapa Web
Diseño: Mediaelx
En primer lugar, gracias por contactarnos.
Hemos recibido su solicitud con respecto a la referencia de propiedad:SP1177. Uno de nuestros agentes se pondrá en contacto con usted lo antes posible.
En primer lugar, gracias por contactarnos.
Hemos recibido una solicitud de informe si baja el precio de la propiedad con la referencia: SP1177
Mientras tanto, eche un vistazo a esta selección de propiedades similares que podrían ser de su interés: