
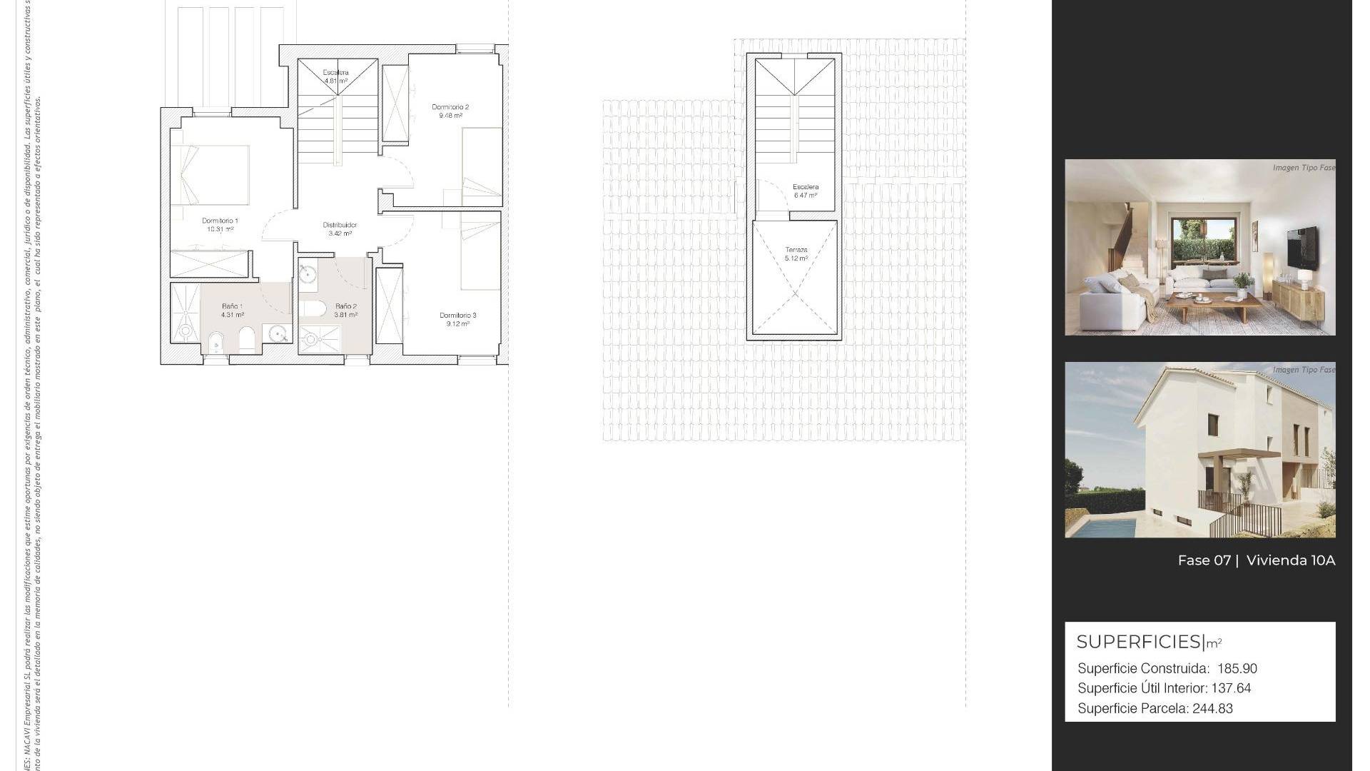
Exclusivas villas adosadas de nueva construcción con piscina privada y garaje en La Nucía Descubra esta urbanización premium de 14 villas adosadas de estilo mediterráneo de nueva construcción, que combinan una arquitectura atemporal con interiores modernos. Situadas cerca del principal centro comercial de La Nucía, estas viviendas ofrecen la combinación perfecta de tranquilidad, sofisticación y comodidad. Ubicación privilegiada en La Nucía La Nucía es una localidad muy cotizada en la comarca de la Marina Baixa, en Alicante, conocida por su entorno tranquilo, sus excelentes infraestructuras y su proximidad a la animada ciudad de Benidorm. Los residentes disfrutan de un relajado estilo de vida mediterráneo con colegios internacionales, instalaciones deportivas de primer nivel, hospitales de prestigio, restaurantes gourmet, campos de golf y hermosas playas en las inmediaciones. La localidad se encuentra a solo 8 km de Benidorm, a 6 km de las playas de Altea y a 51 km al norte de Alicante. Comodidad moderna y prestaciones de primera calidad Cada villa se encuentra en una parcela privada e incluye un sótano con garaje, lavadero y trastero. La planta baja ofrece varias terrazas, una piscina privada, un salón-comedor diáfano conectado a la cocina y un aseo para invitados. En la primera planta se encuentran 3 dormitorios y 2 baños, incluyendo una suite principal con baño en suite. El solárium de la azotea ofrece vistas panorámicas. Las especificaciones de alta calidad incluyen: Ventanas de aluminio con rotura de puente térmico Puerta de entrada de seguridad Puerta de garaje motorizada Calefacción y refrigeración aerotérmica con sistema Airzone para control individual de cada habitación Agua caliente sanitaria mediante sistema aerotérmico Un estilo de vida tranquilo y elegante En La Nucía, el lujo se define por el equilibrio: tiempo, comodidad y bienestar. Desde el desayuno en la terraza hasta las tardes en la playa o en el campo de golf, y las noches en restaurantes de alta cocina, esta ubicación ofrece un estilo de vida privilegiado en el corazón de la Costa Blanca. Distancias a los principales puntos de interés: Centro comercial: 1 km Playa: 6 km Benidorm: 8 km Playa del Albir: 15 km Terra Mítica: 5 minutos Elians International School: 5 minutos Aeropuerto de Alicante: 40 km La casa de sus sueños en el Mediterráneo Estas villas en La Nucía son ideales para quienes buscan una residencia permanente, una segunda vivienda o una oportunidad de inversión de primer nivel. Con su ubicación estratégica, sus acabados de primera calidad y su diseño moderno, representan una oportunidad excepcional en la Costa Blanca. Póngase en contacto con nosotros hoy mismo para concertar una visita y asegurarse su lugar en esta exclusiva urbanización.
Esta información que se proporciona aquí está sujeta a errores y no forma parte de ningún contrato. La oferta se puede cambiar o retirar sin previo aviso. Los precios no incluyen los costes de compra