Alicante (Costa Blanca) - Villajoyosa La Tellerola
Ref.: SP1164
Penthouse Obra nueva

Detalles

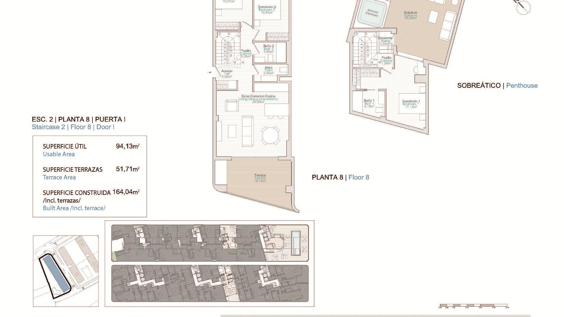
  • 112m2
  • 3
  • 2
  •  

Características

icon Habitaciones: 3
icon Baños: 2
icon Construidos: 112m2
icon Piscina:
icon Gym
icon Elevator/Lift
icon Communal Pool
icon Gated
icon Near Schools
icon Near Commercial Center
icon Location: Coastal, Urbanisation
icon Jacuzzi
icon Number of Parking Spaces: 1
icon Views: Sea
icon Solarium: Yes
icon First Line to the Sea
icon Double Bedrooms: 3
icon Parking - Space
icon Terrace: 51 Msq.
icon Useable Build Space: 94 Msq.
icon Beach: 60 Meters
icon Storage / Trastero
Calificación energética
Calificación energética:
B

Descripción

Apartamentos y áticos exclusivos frente al mar en Villajoyosa con vistas panorámicas al Mediterráneo Descubra esta excepcional nueva promoción residencial situada en lo alto de una colina en la codiciada zona de Tellerola, en Villajoyosa. Con impresionantes vistas al mar, acceso directo a la playa a través de un sendero natural y rodeada de paisajes mediterráneos vírgenes, es la combinación perfecta de tranquilidad, comodidad y vida moderna. Ubicación privilegiada en Villajoyosa Situada entre la Playa del Torres y la Playa El Tío Roig, esta comunidad cerrada disfruta de una ubicación inmejorable frente al mar, pero cerca de los servicios esenciales y las actividades de ocio. El pintoresco casco antiguo de Villajoyosa está a solo 1,5 km, Benidorm, con su animada vida nocturna y sus tiendas, a 10 km, y el aeropuerto de Alicante, a solo 40 km. Esta ubicación ideal permite un fácil acceso a campos de golf, puertos deportivos y atracciones culturales a lo largo de la Costa Blanca. Elegantes viviendas con terrazas orientadas al mar El complejo ofrece apartamentos y áticos de 1, 2 y 3 dormitorios, todos ellos diseñados para maximizar la luz natural y las espectaculares vistas al mar. Las amplias terrazas permiten disfrutar del clima mediterráneo durante todo el año, mientras que los acabados de primera calidad garantizan tanto el estilo como el confort. Las características principales incluyen: Ventanas de aluminio con rotura de puente térmico y doble acristalamiento. Puerta de entrada blindada. Baños con espejos, mamparas de ducha y calefacción eléctrica por suelo radiante. Cocinas totalmente equipadas con electrodomésticos. Aire acondicionado por conductos en toda la vivienda. Agua caliente sanitaria mediante sistema aerotérmico. Plaza de aparcamiento y trastero incluidos. Servicios comunitarios de primera calidad Los residentes disfrutarán de amplios jardines, una gran piscina comunitaria, un gimnasio totalmente equipado y un relajante spa. Lo más destacado es el exclusivo club social en la azotea con piscina infinita, que ofrece unas vistas panorámicas inigualables del Mediterráneo. El complejo combina privacidad, seguridad y un diseño moderno para crear un entorno sereno y sofisticado. Villajoyosa: la joya escondida de la Costa Blanca Recientemente galardonada como «Mejor destino escondido de Europa 2024» por European Best Destinations, Villajoyosa es famosa por sus coloridas casas frente al mar, su encantador casco antiguo y sus playas vírgenes. Aquí podrá sumergirse en la auténtica vida mediterránea sin renunciar a las comodidades de una ciudad cosmopolita. Distancias a los principales puntos de interés: Centro de Villajoyosa: 1,5 km Benidorm: 10 km Aeropuerto de Alicante: 40 km Playa del Torres: 0,2 km Playa El Tío Roig: 0,4 km Villaitana Golf: 12 km Puerto de Alicante: 35 km La casa de sus sueños junto al mar le espera en Villajoyosa. Póngase en contacto con nosotros hoy mismo para concertar una visita y asegurarse su lugar en esta exclusiva comunidad frente al mar. 489

Localización

Economía

Esta información que se proporciona aquí está sujeta a errores y no forma parte de ningún contrato. La oferta se puede cambiar o retirar sin previo aviso. Los precios no incluyen los costes de compra

Calcular hipoteca

Cambio de divisas

  • Libras: 597.972 GBP
  • Rublo Ruso: 597.972 RUB
  • Franco Suizo: 633.247 CHF
  • Yuan Chino: 5.521.134 CNY
  • Dolar: 809.274 USD
  • Corona Sueca: 7.410.858 SEK
  • Corona Noruega: 7.557.662 NOK

Solicitar información

Responsable del tratamiento: Costa Weflen Group SL, Finalidad del tratamiento: Gestión y control de los servicios ofrecidos a través de la página Web de Servicios inmobiliarios, Envío de información a traves de newsletter y otros, Legitimación: Por consentimiento, Destinatarios: No se cederan los datos, salvo para elaborar contabilidad, Derechos de las personas interesadas: Acceder, rectificar y suprimir los datos, solicitar la portabilidad de los mismos, oponerse altratamiento y solicitar la limitación de éste, Procedencia de los datos: El Propio interesado, Información Adicional: Puede consultarse la información adicional y detallada sobre protección de datos Aquí.

Contactar

Hilde Jeanette Weflen
Propietaria y Gerente General Teléfono +34 639 689 651 Email hilde@cweflengroup.com

© 2026 Costa Weflen Group · Nota legal · Privacidad · Cookies · Mapa Web

Diseño: Mediaelx

Contactar WhatsApp
WhatsApp