Alicante (Costa Blanca) - Orihuela Vistabella Golf
Ref.: SP1151
Chalet Obra nueva

Detalles

  • 114m2
  • 298m2
  • 3
  • 2
  •  

Características

icon Habitaciones: 3
icon Baños: 2
icon Construidos: 114m2
icon Parcela: 298m2
icon Piscina:
icon Private Pool
icon Gated
icon Near Schools
icon Near Commercial Center
icon Number of Parking Spaces: 1
icon Near Golf / Golf Resort Property
icon Solarium: Yes
icon Double Bedrooms: 3
icon Parking - Space
icon Location: Urbanisation
icon Useable Build Space: 100 Msq.
icon Beach: 14000 Meters
icon Terrace: 121 Msq.
Calificación energética
Calificación energética:
B

Descripción

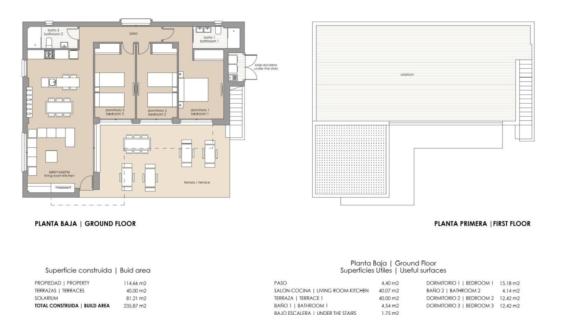
Villas de nueva construcción en Vistabella Golf Resort – Orihuela Disfrute de la vida moderna mediterránea en el corazón de la Costa Blanca con estas impresionantes villas de nueva construcción en Vistabella Golf Resort. Situada entre San Miguel de Salinas y Los Montesinos, en el municipio de Orihuela, esta exclusiva urbanización ofrece lujo, comodidad y una ubicación inmejorable tanto para los amantes del golf como para quienes buscan un estilo de vida tranquilo. Dos modelos de villas distintos Los compradores pueden elegir entre dos elegantes diseños: Villas de una sola planta con 3 dormitorios, 2 baños y solárium en la azotea. Villas de dos plantas con 4 dormitorios, 3 baños y terraza solárium en la primera planta. Ambos modelos se encuentran en parcelas de aproximadamente 300 m² e incluyen piscina privada y aparcamiento en el recinto. Calidad superior y confort moderno Todas las villas cuentan con acabados de lujo, incluyendo aire acondicionado por conductos totalmente instalado, cocinas equipadas con electrodomésticos, iluminación exterior, persianas eléctricas y elegantes mamparas de ducha en los baños. La combinación de estilo y funcionalidad garantiza un hogar que es a la vez bonito y práctico. Exclusivo estilo de vida en un complejo de golf Vistabella Golf Resort es una comunidad cerrada con un campo de golf de 18 hoyos, pistas de pádel, una bolera, un supermercado y una amplia variedad de bares y restaurantes. Las futuras mejoras elevarán el complejo a un auténtico destino de 5 estrellas, con nuevas incorporaciones previstas, como un bar de champán, un bar de sushi, un hotel con spa, una playa artificial, una pista de tenis, un campo de fútbol y un bar gourmet. Ubicación privilegiada en la Costa Blanca El complejo ofrece un excelente acceso a las mejores playas, campos de golf y servicios de la región. Las distancias a los principales puntos de interés son las siguientes: Playa de La Mata: 18 km Playa de Guardamar del Segura: 20 km Torrevieja: 15 km Aeropuerto de Alicante: 55 km Aeropuerto de Murcia: 68 km Villamartín Golf: 12 km Las Colinas Golf & Country Club: 14 km La casa de sus sueños le espera Ya sea como residencia permanente, casa de vacaciones o inversión para alquilar, estas villas de nueva construcción en Vistabella Golf Resort ofrecen un valor excepcional en una de las zonas costeras más codiciadas de España. Póngase en contacto con nosotros hoy mismo para concertar una visita y asegurarse su lugar en esta lujosa comunidad de golf. 489

Localización

Economía

Esta información que se proporciona aquí está sujeta a errores y no forma parte de ningún contrato. La oferta se puede cambiar o retirar sin previo aviso. Los precios no incluyen los costes de compra

Calcular hipoteca

Cambio de divisas

  • Libras: 409.602 GBP
  • Rublo Ruso: 409.602 RUB
  • Franco Suizo: 433.765 CHF
  • Yuan Chino: 3.781.896 CNY
  • Dolar: 554.341 USD
  • Corona Sueca: 5.076.330 SEK
  • Corona Noruega: 5.176.888 NOK

Solicitar información

Responsable del tratamiento: Costa Weflen Group SL, Finalidad del tratamiento: Gestión y control de los servicios ofrecidos a través de la página Web de Servicios inmobiliarios, Envío de información a traves de newsletter y otros, Legitimación: Por consentimiento, Destinatarios: No se cederan los datos, salvo para elaborar contabilidad, Derechos de las personas interesadas: Acceder, rectificar y suprimir los datos, solicitar la portabilidad de los mismos, oponerse altratamiento y solicitar la limitación de éste, Procedencia de los datos: El Propio interesado, Información Adicional: Puede consultarse la información adicional y detallada sobre protección de datos Aquí.

Contactar

Hilde Jeanette Weflen
Propietaria y Gerente General Teléfono +34 639 689 651 Email hilde@cweflengroup.com

© 2026 Costa Weflen Group · Nota legal · Privacidad · Cookies · Mapa Web

Diseño: Mediaelx

Contactar WhatsApp
WhatsApp