
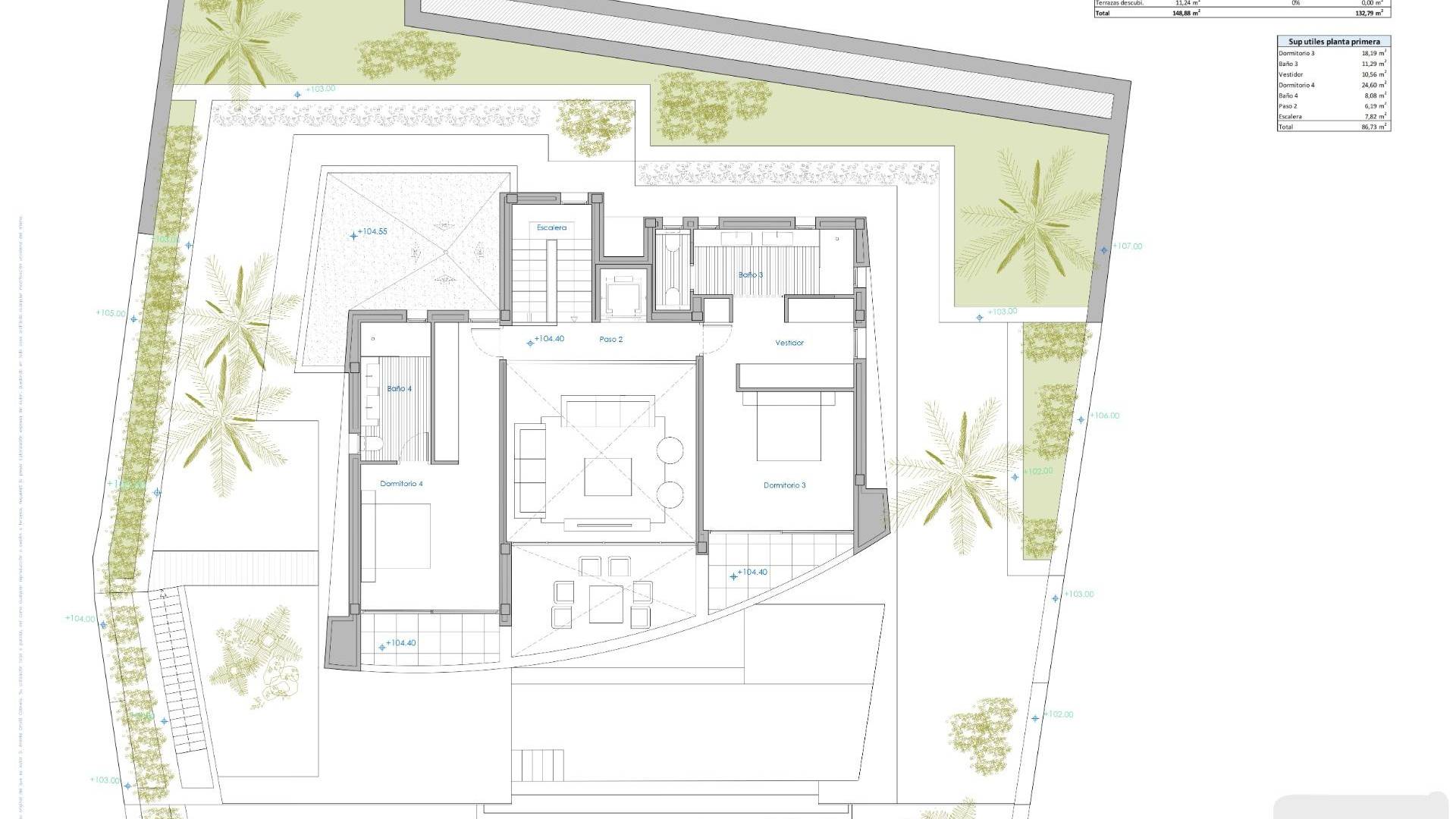
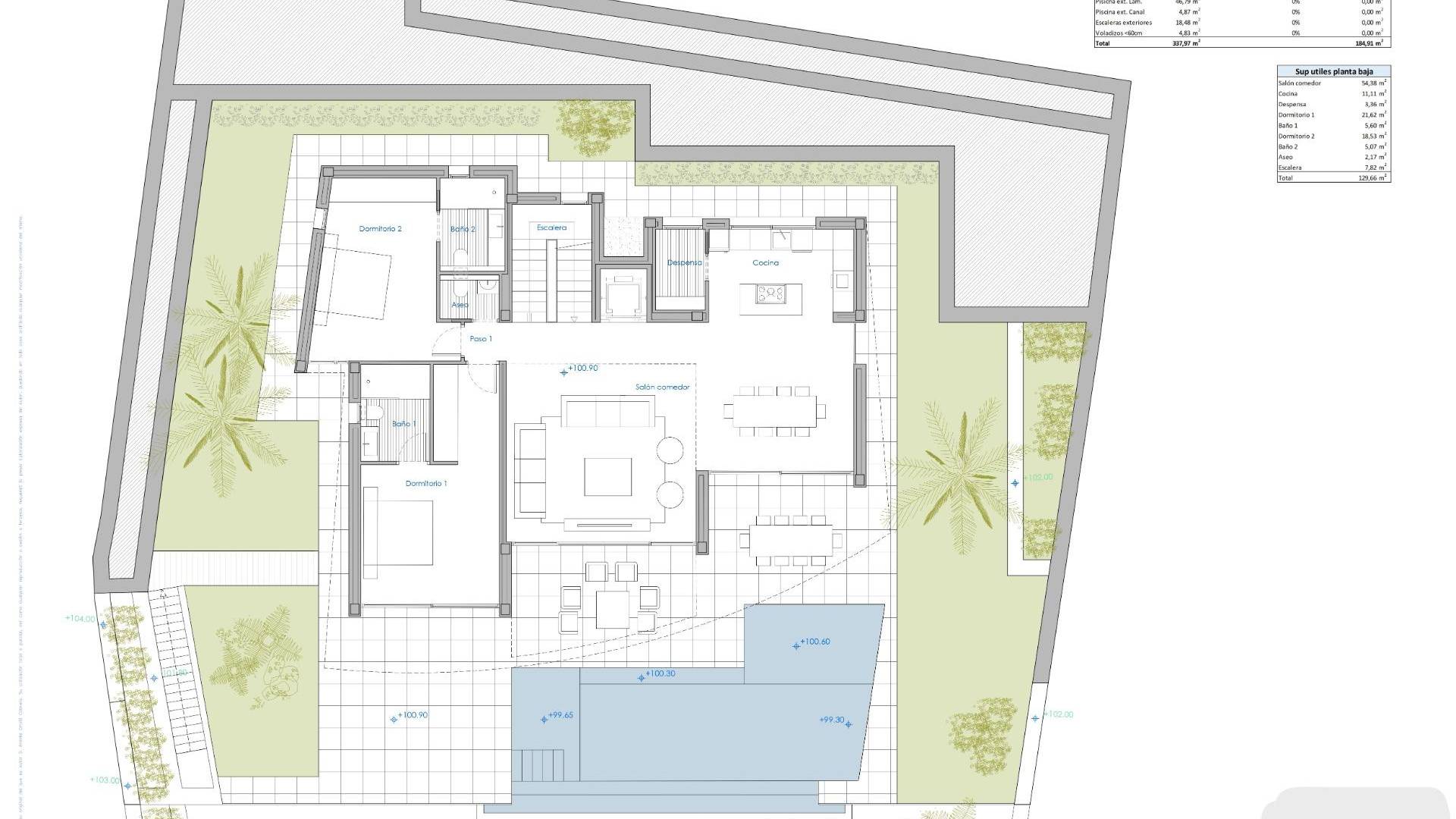
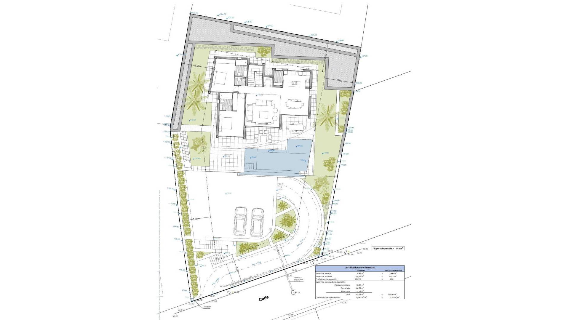
Lujosa Villa con Vistas al Mar en Calpe - Elegancia Moderna con Impresionantes Vistas Ubicación privilegiada en Calpe, Alicante - Zona tranquila y establecida Esta lujosa villa está situada en Calpe, Alicante, en una zona tranquila y consolidada conocida por su encanto y su proximidad a algunas de las mejores atracciones de la zona. A sólo 5,4 km del centro de Calpe, esta villa ofrece un cómodo acceso al centro de la ciudad y a las impresionantes playas de Calpe, que cuentan con aguas cristalinas y arenas suaves. Conocida por su belleza paisajística, Calpe está rodeada de parques naturales y del emblemático Peñón de Ifach, un hito que añade un carácter único al paisaje. Puntos de interés cercanos: Centro de Calpe y Playas: A sólo 5,4 km, lo que permite un fácil acceso a las tiendas locales, restaurantes y playas. Aeropuerto de Alicante: 78 km, por lo que es conveniente para los viajes internacionales y nacionales. Campos de Golf: Varios campos de golf de renombre se encuentran en un radio de 15 km, perfecto para los entusiastas del golf. Centros Comerciales: El popular Centro Comercial La Marina de Benidorm está a unos 25 km, ofreciendo una variedad de opciones de compras y restaurantes. Puerto de Calpe: Aproximadamente a 6 km, ideal para los amantes de los yates y los deportes acuáticos. Impresionante villa con vistas al mar y 3 plantas de moderno confort Esta villa ofrece 335 m² de lujoso espacio habitable en una generosa parcela de 1.042 m², con espectaculares vistas al mar, al Peñón de Ifach y al pueblo de Calpe. Con tres plantas cuidadosamente diseñadas y conectadas por una escalera interior y un ascensor, esta villa ofrece estilo y comodidad en todos los niveles. Planta semisótano: Aparcamiento, lavandería y bodega Entrando desde la calle a través de puertas automáticas, se llega directamente a la entrada del garaje, situado en la planta semisótano. El espacioso garaje de 52 m² tiene capacidad para varios vehículos e incluye una zona de lavandería y una bodega, lo que añade un toque de lujo y funcionalidad. Planta principal: Sala de estar abierta y acceso a la piscina En la planta principal, a la que se accede por escalera o ascensor, encontrará una amplia zona de estar y comedor que conduce a un porche de 25 m² y a una impresionante terraza junto a la piscina de 78 m². La cocina abierta, totalmente equipada con electrodomésticos Siemens, se integra perfectamente en el salón. Esta planta también incluye dos dormitorios con baños en suite y un aseo de invitados. Planta superior: Dormitorios privados con impresionantes terrazas La planta superior cuenta con dos dormitorios dobles adicionales, cada uno con baño en-suite y acceso a terrazas abiertas que ofrecen vistas panorámicas. Acabados de alta calidad e instalaciones modernas Esta villa cuenta con características de primera categoría, incluyendo carpintería Technal con vidrio de seguridad, iluminación LED, calefacción por suelo radiante, aire acondicionado por conductos, y un sistema aerotérmico para agua caliente y calefacción. Otras comodidades incluyen persianas eléctricas, armarios empotrados, sistemas de alarma interior y exterior, preinstalación de cámaras de seguridad y una piscina infinita de 10x3,3 m con zona de barbacoa. Orientada al sur para una exposición óptima al sol, esta villa es energéticamente eficiente con una calificación A. Experimente una vida de lujo y tranquilidad en Calpe 489
Esta información que se proporciona aquí está sujeta a errores y no forma parte de ningún contrato. La oferta se puede cambiar o retirar sin previo aviso. Los precios no incluyen los costes de compra