
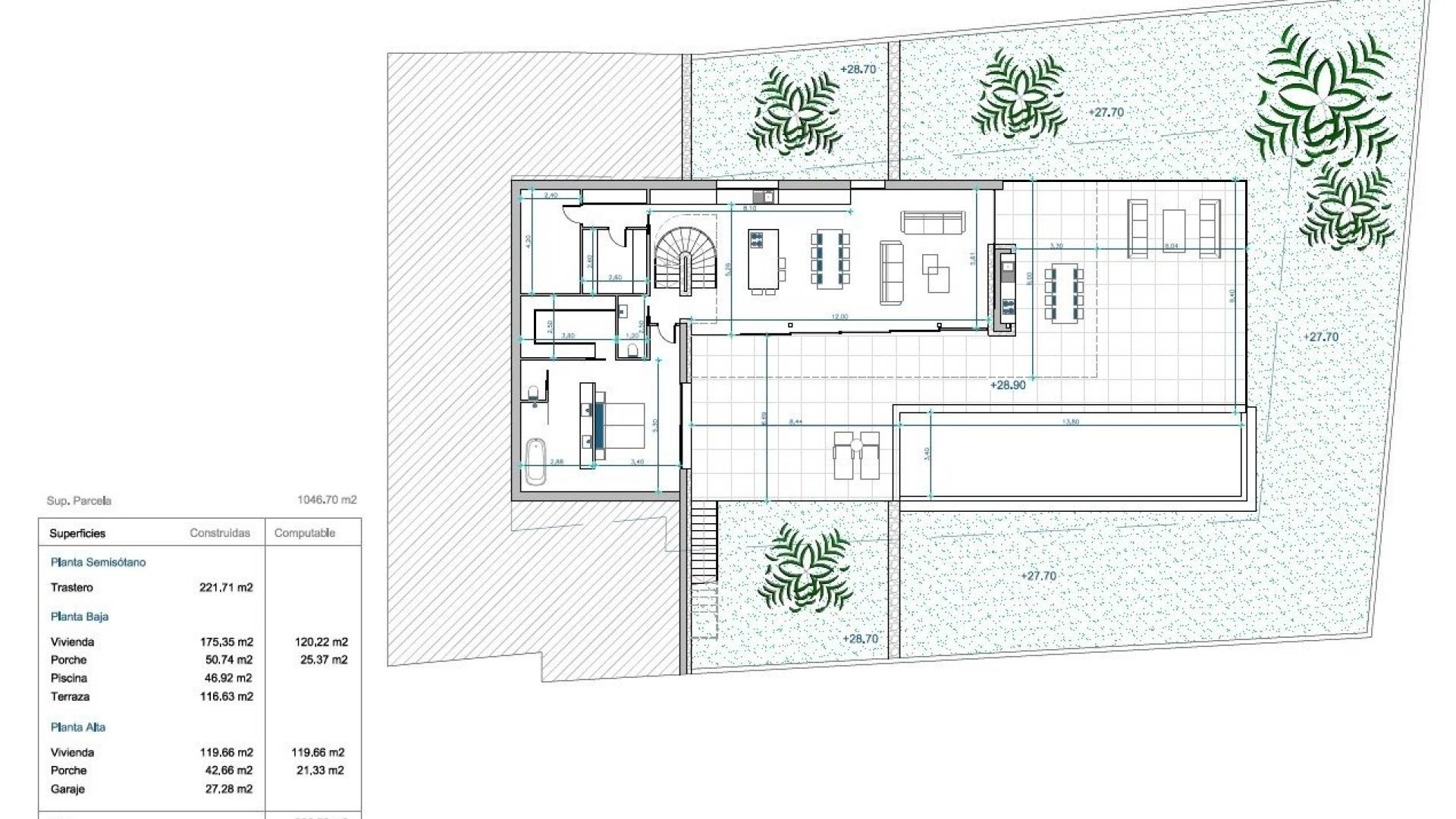
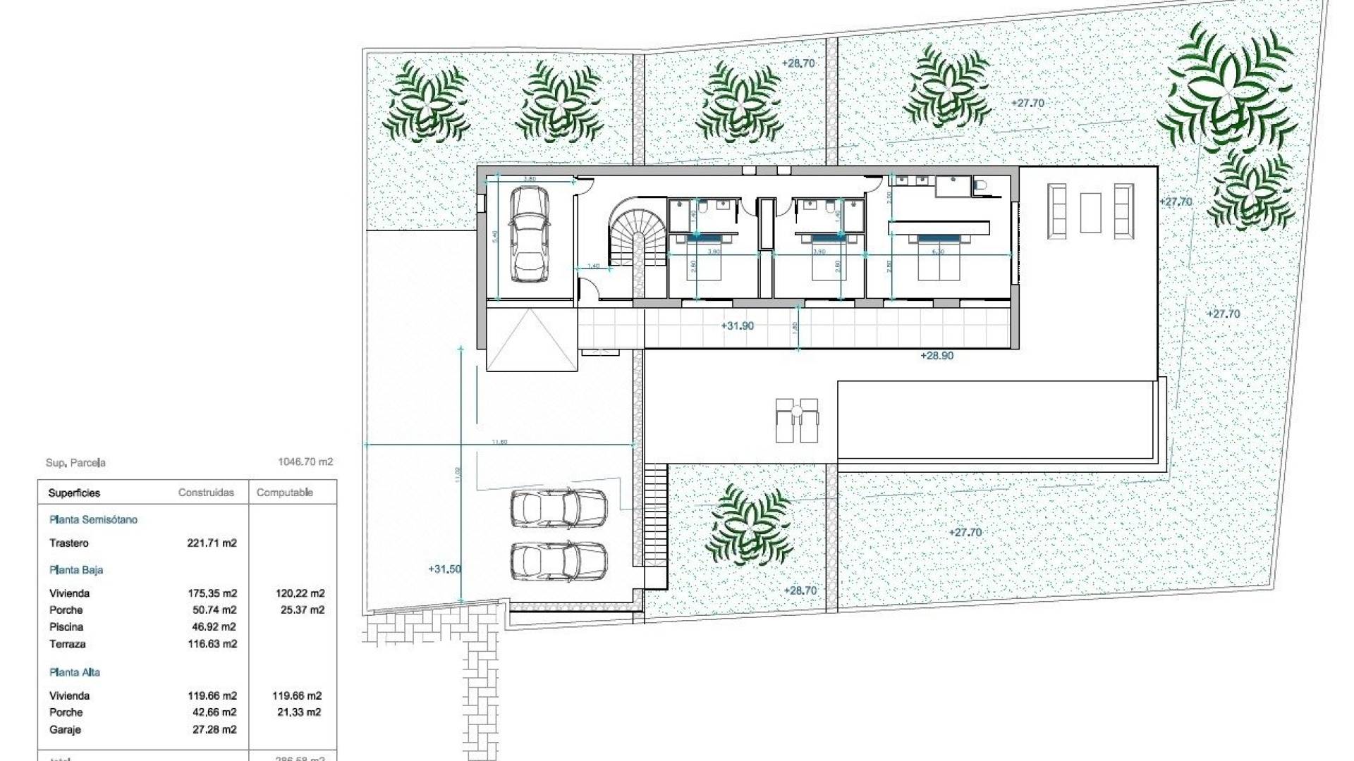
VILLA DE LUJO DE OBRA NUEVA EN MORAIRA Villa de lujo de nueva construcción con las mejores calidades, y con vistas al mar, en una parcela de 1046 m2 con dos accesos peatonales y de vehículos, uno a través de la zona comunitaria de la urbanización. La villa se encuentra a poca distancia de las hermosas playas y del centro de Moraira. Villa de lujo distribuida en 3 plantas: planta baja con un amplio y luminoso salón junto a la cocina abierta con isla de cocina, un aseo de invitados, y un dormitorio con baño en suite. En el exterior de esta planta se encuentra la piscina infinita, con una gran terraza y zona de barbacoa. En la planta superior nos encontramos con 3 amplios dormitorios con su baño en suite, y su propio balcón donde se puede disfrutar de las hermosas vistas que ofrece esta villa. En el exterior de esta planta se encuentra el garaje. Por último, en el sótano, encontramos un trastero de 221 m2. EXTRAS: Carpintería técnica con cristales de seguridad, cocina completa con electrodomésticos Siemens, baños y grifería completa de la marca roca, iluminación LED, sistema de aerotermia para agua caliente y suelo radiante, aire acondicionado por conductos (frío y calor) en toda la casa, placas solares, armarios empotrados, persianas eléctricas, alarma interior, preinstalación de alarma exterior y cámaras de seguridad. Piscina rectangular con sistema de desbordamiento zona de barbacoa, lavadero, jardín terminado. Puertas de acceso automáticas. Clasificación energética A. Orientación sur Moraira es una pequeña ciudad con buenos restaurantes, bares y muchos supermercados alrededor. Hay una playa muy agradable justo al lado del pueblo que es ideal para las familias. El paseo marítimo ofrece tremendas vistas del Peñón de Ifach al otro lado de la bahía de Calpe. El camino de la costa de llegar allí es bien vale la pena hacer con algunas vistas espectaculares. Moraira situado a 1 hora 15 minutos al norte de la A7 desde el aeropuerto de Alicante es bastante fácil de llegar. Es aproximadamente la misma distancia o un poco menos al sur del aeropuerto de Valencia. 489
Esta información que se proporciona aquí está sujeta a errores y no forma parte de ningún contrato. La oferta se puede cambiar o retirar sin previo aviso. Los precios no incluyen los costes de compra