Alicante (Costa Blanca) - Pinoso Rodriguillo
Ref.: N9263
Chalet Obra nueva

Detalles

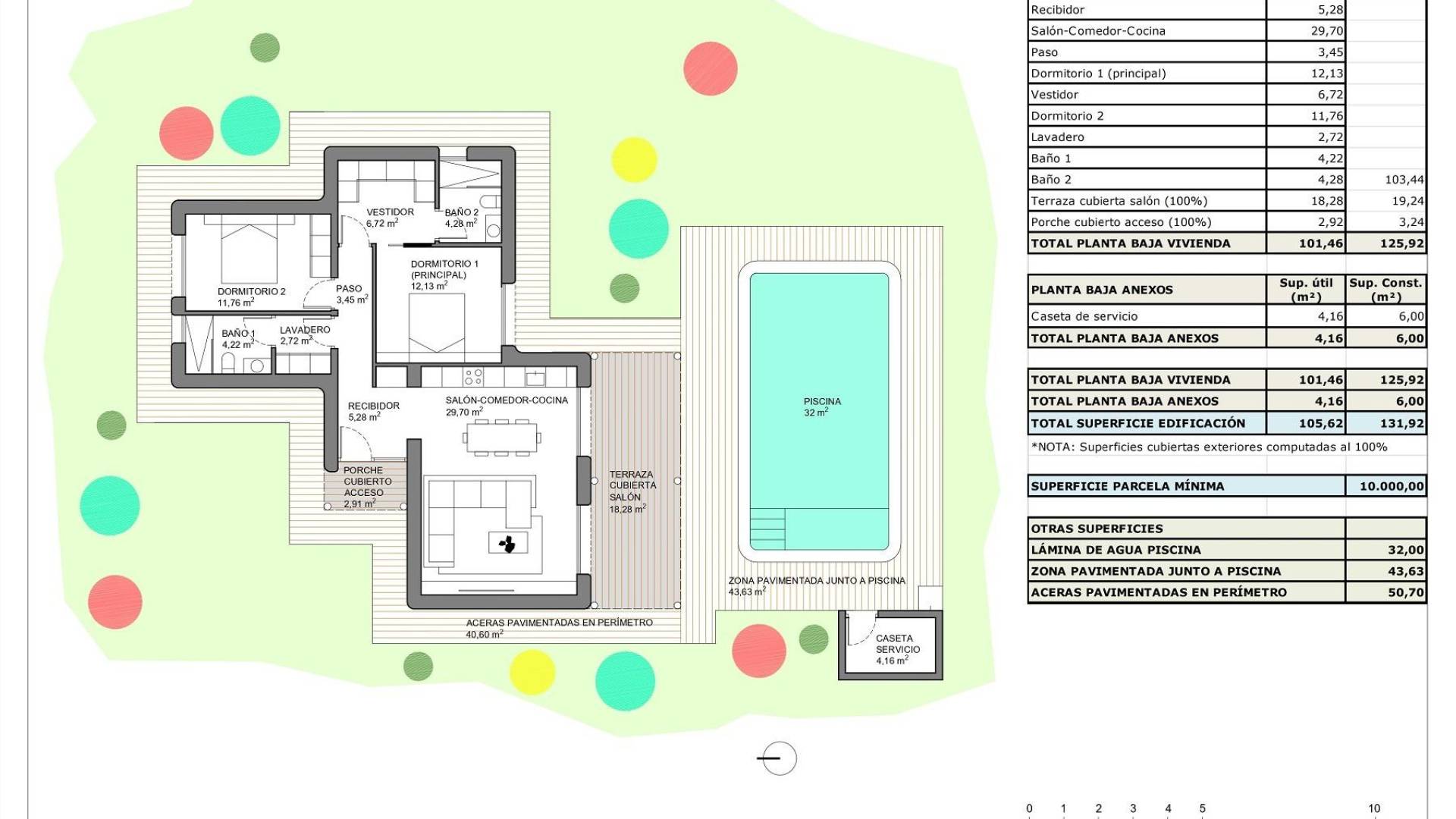
  • 131m2
  • 10.000m2
  • 2
  • 2
  •  

Características

icon Habitaciones: 2
icon Baños: 2
icon Construidos: 131m2
icon Parcela: 10.000m2
icon Piscina:
icon Private Pool
icon Gated
icon Near Schools
icon Double Bedrooms: 2
icon Terrace: 20 Msq.
icon Air Conditioning: Pre-Installed
icon Garden
icon Number of Parking Spaces: 2
icon Parking - Space
icon Useable Build Space: 105 Msq.
icon Location: Rural, Mountain
icon Beach: 40000 Meters
icon Storage / Trastero
Calificación energética
Calificación energética:
B

Descripción

Villas de nueva construcción en amplias parcelas rústicas en Pinoso, Alicante Tranquila vida mediterránea en el corazón de la naturaleza Descubra este exclusivo proyecto de villas de nueva construcción en Pinoso, una encantadora localidad del interior de la provincia de Alicante conocida por su carácter tradicional español, sus hermosos paisajes montañosos y su entorno tranquilo. Perfectas para quienes buscan privacidad y espacio, estas villas están construidas en parcelas rústicas de más de 10 000 m2 y ofrecen la combinación perfecta entre el confort moderno y la vida en el campo, a solo 45 km de la costa. Villas personalizables con múltiples opciones de distribución Elija entre varios modelos de villas con 2, 3 o 4 dormitorios y 2 baños (uno de ellos en suite), todas ellas diseñadas en una sola planta para ofrecer la máxima comodidad. El precio final se calcula en función del diseño elegido, el sistema de construcción (losa o estructura) y la parcela seleccionada. Para este anuncio se ha considerado una parcela con un precio de 73.000 eur, si se elige otra parcela, se abonará o pagará la diferencia en función del precio de la misma. Cada villa cuenta con una amplia cocina y sala de estar de planta abierta, armarios empotrados y acabados de alta calidad en todas las estancias. Los grandes ventanales llenan las viviendas de luz natural y proporcionan una integración perfecta entre los espacios interiores y exteriores. Espacios exteriores excepcionales con piscina privada Cada propiedad se encuentra en una zona vallada de aproximadamente 2500 m² dentro de una parcela rústica de 10 000 m², lo que garantiza una gran privacidad y espacio. Las villas incluyen una piscina privada de 8 x 4 m, un porche, un trastero y un aparcamiento exterior privado. Disfrute de las tranquilas vistas del campo y las montañas circundantes mientras se relaja en su piscina o recibe a sus invitados en su amplio jardín. Construcción de alta calidad y características modernas Construidas bajo un plan de autopromoción con entrega aproximadamente 12 meses después de la aprobación de la licencia, cada villa está equipada con especificaciones de primera calidad, que incluyen: Puerta de entrada blindada y puerta motorizada para vehículos Persianas motorizadas en los dormitorios Cocina totalmente amueblada Baños con muebles, espejos y mamparas de ducha Preinstalación para aire acondicionado por conductos Sistema de agua caliente aerotérmica Ubicación privilegiada cerca de destinos clave Pinoso ofrece todos los servicios esenciales, como tiendas, restaurantes, colegios y servicios sanitarios, al tiempo que mantiene un ambiente relajado y auténticamente español. Está rodeado de parques naturales, viñedos y rutas de senderismo, ideales para los amantes del aire libre. Distancias clave: Elche: 33 km Playas de la Costa Blanca: 45 km Aeropuerto de Alicante: 45 km Su refugio rural perfecto en Alicante Estas villas de nueva construcción en Pinoso combinan la tranquilidad de la vida rural con la comodidad del diseño moderno, lo que las hace ideales para vivir de forma permanente, pasar las vacaciones o como inversión. Póngase en contacto con nosotros hoy mismo para obtener más información o para empezar a diseñar la casa de sus sueños en Pinoso.

Localización

Economía

Esta información que se proporciona aquí está sujeta a errores y no forma parte de ningún contrato. La oferta se puede cambiar o retirar sin previo aviso. Los precios no incluyen los costes de compra

Calcular hipoteca

Cambio de divisas

  • Libras: 321.650 GBP
  • Rublo Ruso: 321.650 RUB
  • Franco Suizo: 340.624 CHF
  • Yuan Chino: 2.969.823 CNY
  • Dolar: 435.309 USD
  • Corona Sueca: 3.986.307 SEK
  • Corona Noruega: 4.065.273 NOK

Solicitar información

Responsable del tratamiento: Costa Weflen Group SL, Finalidad del tratamiento: Gestión y control de los servicios ofrecidos a través de la página Web de Servicios inmobiliarios, Envío de información a traves de newsletter y otros, Legitimación: Por consentimiento, Destinatarios: No se cederan los datos, salvo para elaborar contabilidad, Derechos de las personas interesadas: Acceder, rectificar y suprimir los datos, solicitar la portabilidad de los mismos, oponerse altratamiento y solicitar la limitación de éste, Procedencia de los datos: El Propio interesado, Información Adicional: Puede consultarse la información adicional y detallada sobre protección de datos Aquí.

Contactar

Hilde Jeanette Weflen
Propietaria y Gerente General Teléfono +34 639 689 651 Email hilde@cweflengroup.com

© 2026 Costa Weflen Group · Nota legal · Privacidad · Cookies · Mapa Web

Diseño: Mediaelx

Contactar WhatsApp
WhatsApp