
Navale Residencial en Guardamar del Segura – Apartamentos cerca del mar en la Costa Blanca
Guardamar del Segura es un pintoresco municipio de la Costa Blanca Sur con unos 16.000 habitantes. Este destino combina a la perfección naturaleza, playa y calidad de vida mediterránea. Gracias a sus excelentes comunicaciones, vivir en Guardamar te mantiene siempre bien conectado:
Aeropuerto Internacional de Alicante-Elche a solo 30 km, con vuelos directos a las principales capitales europeas.
Ciudad de Alicante y su estación de Tren de Alta Velocidad (AVE) a apenas 45 minutos.
Guardamar cuenta con un litoral de 11 km de playas de arena fina y aguas templadas, reconocidas con tres Banderas Azules por su alto valor ecológico y limpieza. Tras sus playas se encuentra La Pinada de Guardamar, un bosque dunar de más de 800 hectáreas repleto de pinos, eucaliptos y palmeras, que ofrece un entorno natural único para pasear o practicar deporte al aire libre.
Otro de sus grandes atractivos es la desembocadura del río Segura en el Mar Mediterráneo, donde se sitúa el Puerto Deportivo Marina de las Dunas, ideal para los amantes de la pesca y los deportes náuticos.
El entorno de Navale Residencial destaca por su encanto mediterráneo. Además de sus idílicas playas, encontrarás comercios tradicionales, una variada oferta gastronómica, rutas de senderismo tanto hacia el interior como a lo largo de La Pinada, y una gran variedad de actividades deportivas.
Navale Residencial te ofrece todas las comodidades a tu alcance:
Supermercado a pocos metros.
Transporte público cercano.
Centro de Guardamar a solo 5 minutos, con tiendas, farmacias y todos los servicios esenciales.
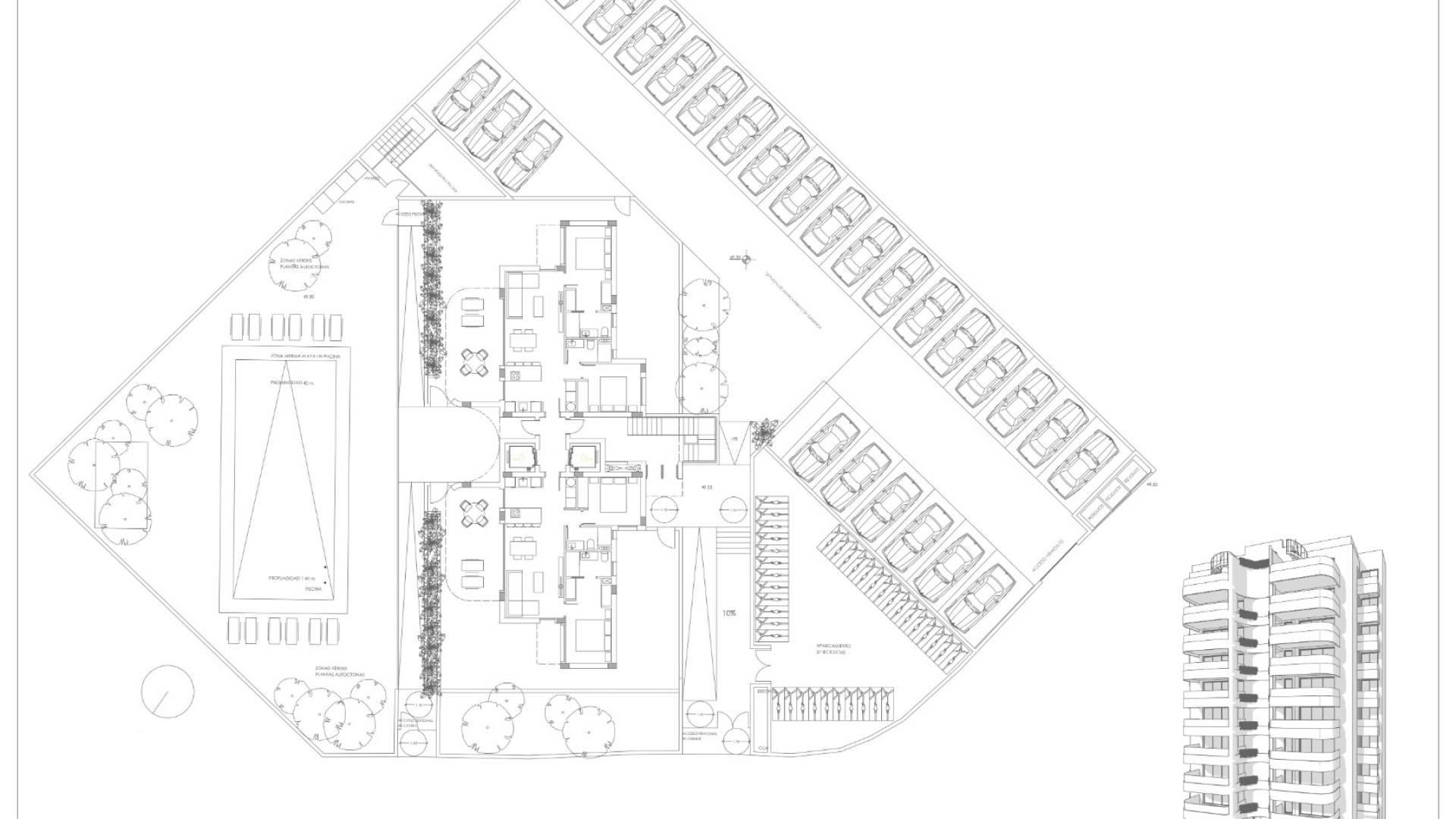
Los apartamentos de Navale Residencial son amplios y luminosos, diseñados para disfrutar del estilo de vida mediterráneo:
2 dormitorios y 2 baños completos.
Salón-comedor con cocina americana equipada.
2 terrazas: un balcón junto al dormitorio principal y una terraza principal de aproximadamente 20 m².
Plaza de aparcamiento y trastero incluidos.
Espacio adicional para aparcar bicicletas.
Navale Residencial es la opción perfecta tanto para quienes buscan una segunda residencia junto al mar, como para quienes desean invertir en la Costa Blanca. Disfruta del sol, la tranquilidad y el encanto de Guardamar durante todo el año.
Precios sujetos a disponibilidad.
Esta información que se proporciona aquí está sujeta a errores y no forma parte de ningún contrato. La oferta se puede cambiar o retirar sin previo aviso. Los precios no incluyen los costes de compra