Alicante (Costa Blanca) - Dolores Sector 3
Ref.: N9269
Chalet Obra nueva

Detalles

  • 183m2
  • 256m2
  • 3
  • 2
  •  

Características

icon Habitaciones: 3
icon Baños: 2
icon Construidos: 183m2
icon Parcela: 256m2
icon Piscina:
icon Private Pool
icon Laundry room
icon Gated
icon Near Schools
icon Near Commercial Center
icon Number of Parking Spaces: 1
icon Solarium: Yes
icon Garden
icon Double Bedrooms: 3
icon Useable Build Space: 120 Msq.
icon Parking - Space
icon Location: Rural
icon Beach: 12000 Meters
icon Terrace: 85 Msq.
icon Toilet: 1
Calificación energética
Calificación energética:
B

Descripción

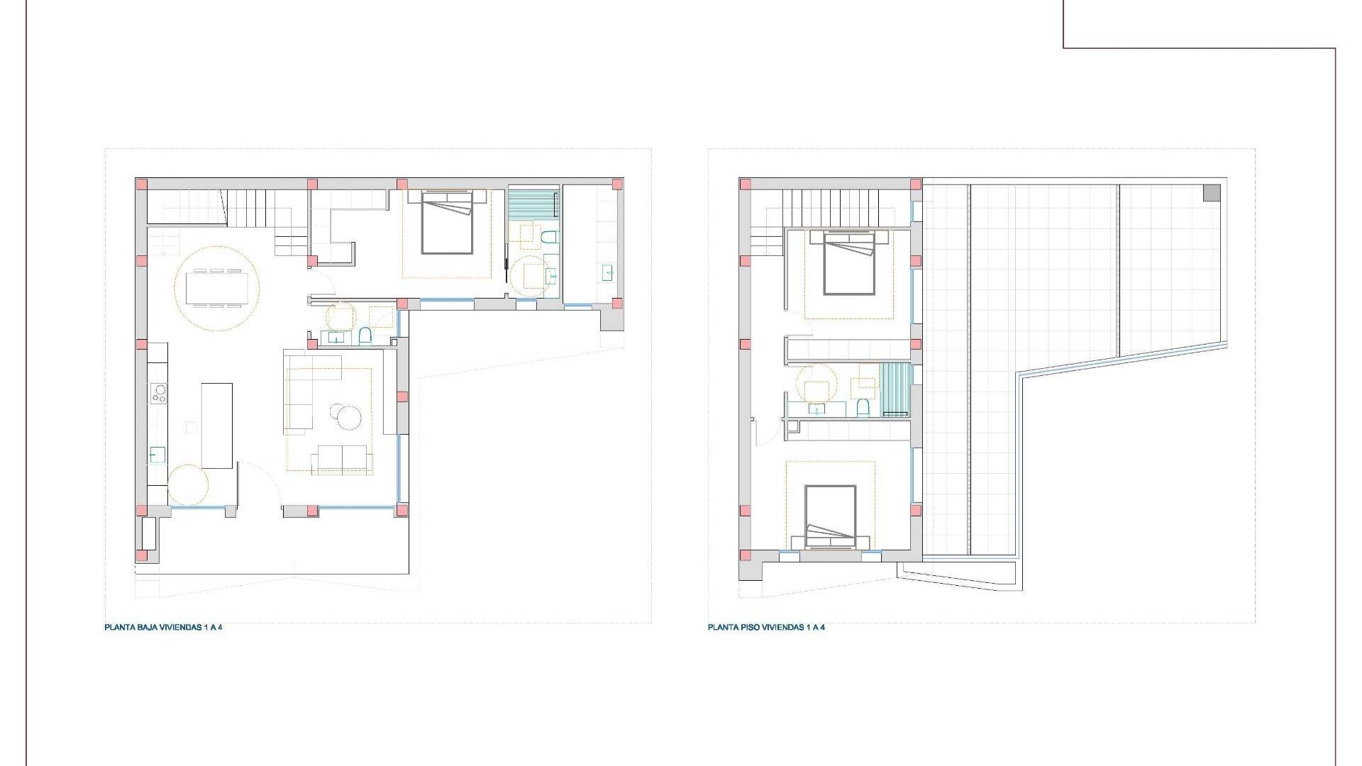
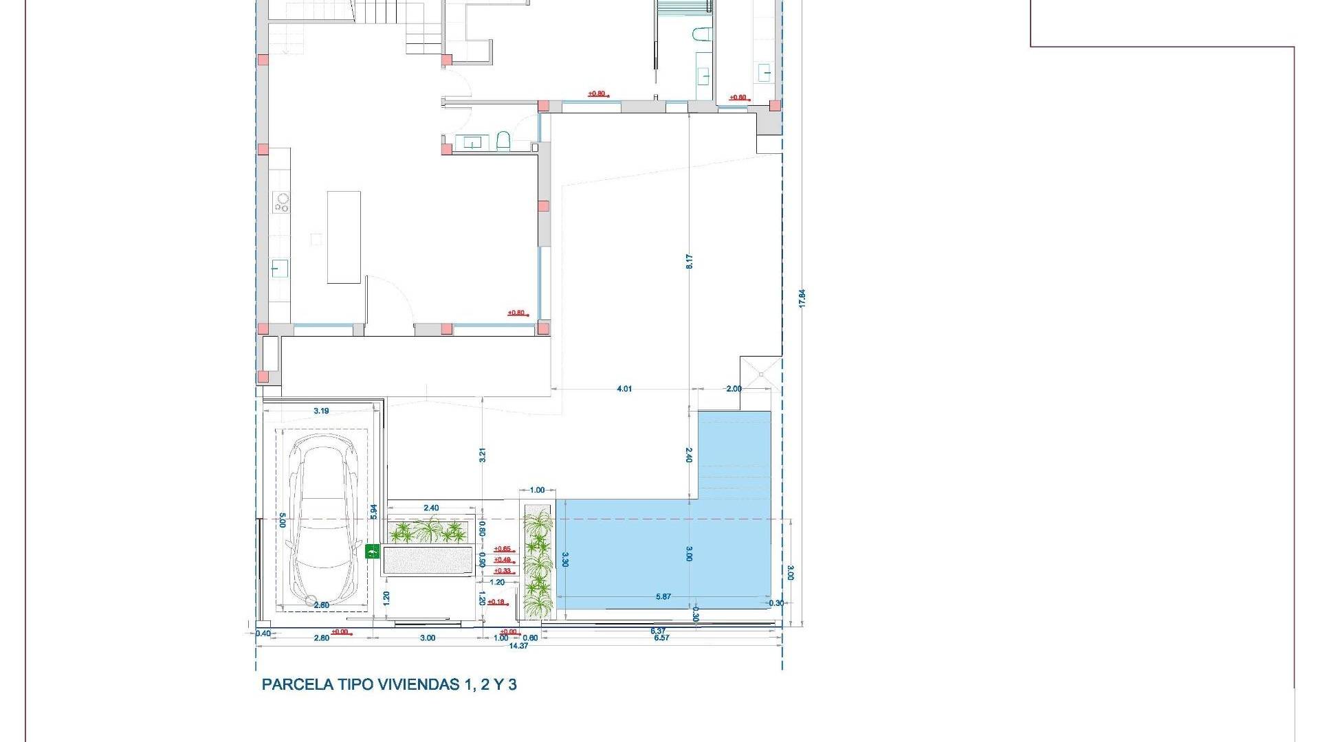
Modernas villas de nueva construcción en Dolores, Alicante Vida contemporánea en el corazón de la Vega Baja Descubra esta exclusiva promoción de villas de nueva construcción en Dolores, una encantadora localidad de la Vega Baja del Segura, al sur de Alicante. Conocida por su carácter tradicional español y rodeada de exuberantes paisajes, Dolores ofrece un estilo de vida tranquilo y, al mismo tiempo, cuenta con todos los servicios necesarios a poca distancia: tiendas, restaurantes, colegios y servicios locales. Situada a solo 12 km de las playas de La Marina y Guardamar del Segura, y con fácil acceso a la autopista AP-7, esta zona residencial está perfectamente conectada con las principales localidades costeras de la Costa Blanca. Elegantes villas modernas con piscina privada Estas modernas villas de dos plantas han sido diseñadas para ofrecer comodidad, funcionalidad y estilo. En la planta baja, encontrará una luminosa cocina abierta conectada al salón-comedor, con grandes puertas correderas que dan directamente a la terraza y al jardín privado con piscina. La planta baja también cuenta con un dormitorio con baño en suite, un aseo de invitados y una práctica zona de lavandería al aire libre. En la primera planta hay dos dormitorios adicionales, un cuarto de baño y acceso a una gran terraza abierta de 60 m2, perfecta para tomar el sol o relajarse mientras se disfruta del clima mediterráneo. Cada vivienda incluye aparcamiento privado dentro de la parcela. Acabados de calidad y comodidad moderna Construidas con materiales de alta calidad y un diseño contemporáneo, estas villas están totalmente equipadas para vivir todo el año. Las principales características incluyen: Carpintería exterior con rotura de puente térmico Persianas motorizadas Sistema de agua caliente alimentado por energía aerotérmica Aire acondicionado por conductos totalmente instalado Piscina privada Aparcamiento privado y jardín ajardinado Los interiores combinan elegancia y funcionalidad, maximizando la luz natural y ofreciendo un entorno de vida excepcional con una fuerte conexión entre los espacios interiores y exteriores. Ubicación privilegiada cerca de todo Dolores goza de una ubicación estratégica, que ofrece un equilibrio entre tranquilidad y accesibilidad. Distancias clave: Playas de La Marina y Guardamar del Segura: 12 km Aeropuerto de Alicante (Elche-El Altet): 30 km (25 minutos en coche) Aeropuerto de Murcia-Corvera: 70 km (1 hora en coche) Campos de golf: 15 km Ciudad de Alicante: 40 km Viva el estilo de vida mediterráneo en Dolores Estas villas de nueva construcción en Dolores ofrecen la combinación perfecta de diseño moderno, comodidad y proximidad a la costa. Ideales tanto para residencia permanente como para vacaciones, proporcionan un estilo de vida mediterráneo sereno, rodeado de naturaleza y comodidades. Póngase en contacto con nosotros hoy mismo para concertar una visita y hacer realidad la casa de sus sueños en Dolores.

Localización

Economía

Esta información que se proporciona aquí está sujeta a errores y no forma parte de ningún contrato. La oferta se puede cambiar o retirar sin previo aviso. Los precios no incluyen los costes de compra

Calcular hipoteca

Cambio de divisas

  • Libras: 405.331 GBP
  • Rublo Ruso: 405.331 RUB
  • Franco Suizo: 429.242 CHF
  • Yuan Chino: 3.742.460 CNY
  • Dolar: 548.561 USD
  • Corona Sueca: 5.023.395 SEK
  • Corona Noruega: 5.122.905 NOK

Solicitar información

Responsable del tratamiento: Costa Weflen Group SL, Finalidad del tratamiento: Gestión y control de los servicios ofrecidos a través de la página Web de Servicios inmobiliarios, Envío de información a traves de newsletter y otros, Legitimación: Por consentimiento, Destinatarios: No se cederan los datos, salvo para elaborar contabilidad, Derechos de las personas interesadas: Acceder, rectificar y suprimir los datos, solicitar la portabilidad de los mismos, oponerse altratamiento y solicitar la limitación de éste, Procedencia de los datos: El Propio interesado, Información Adicional: Puede consultarse la información adicional y detallada sobre protección de datos Aquí.

Contactar

Hilde Jeanette Weflen
Propietaria y Gerente General Teléfono +34 639 689 651 Email hilde@cweflengroup.com

© 2026 Costa Weflen Group · Nota legal · Privacidad · Cookies · Mapa Web

Diseño: Mediaelx

Contactar WhatsApp
WhatsApp