Alicante (Costa Blanca) - Cox San Fernando
Ref.: N9360
Bungalow Obra nueva

Detalles

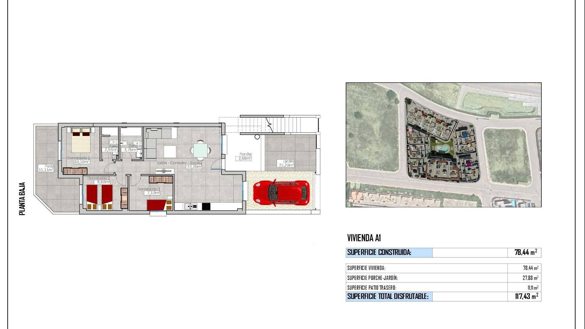
  • 78m2
  • 25m2
  • 3
  • 2
  •  

Características

icon Habitaciones: 3
icon Baños: 2
icon Construidos: 78m2
icon Parcela: 25m2
icon Piscina:
icon Communal Pool
icon Gated
icon Near Schools
icon Near Commercial Center
icon Near Bus Route
icon Number of Parking Spaces: 1
icon Air Conditioning: Pre-Installed
icon Garden
icon Double Bedrooms: 3
icon Terrace: 13 Msq.
icon Useable Build Space: 70 Msq.
icon Parking - Space
icon Location: Rural, Urbanisation
icon Beach: 25000 Meters
Calificación energética
Calificación energética:
B

Descripción

Nuevos bungalows y adosados en Cox, Alicante Exclusiva promoción residencial de 26 viviendas Descubra esta nueva comunidad residencial en Cox, una encantadora localidad de la Vega Baja alicantina. El proyecto ofrece 26 viviendas modernas, entre bungalows y adosados de 2 o 3 dormitorios, diseñadas para ofrecer comodidad, privacidad y lo mejor del estilo de vida mediterráneo. Cox es conocida por su entorno tranquilo, su gastronomía tradicional y su hermoso entorno natural, lo que la convierte en un lugar ideal para familias, turistas e inversores. Opciones inmobiliarias adaptadas a su estilo de vida Elija entre una variedad de tipos de viviendas adaptadas a diferentes necesidades: Bungalows en planta baja con jardín privado Bungalows en planta alta con terraza y solárium privado Adosados con jardín, varias terrazas y solárium privado Todos los bungalows en planta baja y los adosados incluyen aparcamiento privado dentro de la parcela, lo que garantiza comodidad y seguridad. Cada vivienda está diseñada con distribuciones funcionales, abundante luz natural y una estética tradicional con interiores modernos. Características de calidad y comodidades modernas Las viviendas están equipadas con características esenciales de alta calidad que mejoran la vida diaria. Entre ellas se incluyen iluminación LED interior y exterior, persianas eléctricas, armarios empotrados, puerta de entrada de seguridad y preinstalación para paneles solares. Las cocinas están completamente equipadas con electrodomésticos, mientras que los baños incluyen muebles, espejos y mamparas de ducha. Los soláriums también cuentan con cocinas de verano al aire libre, ideales para entretenerse y disfrutar del clima mediterráneo. Servicios comunitarios para todos los residentes El complejo residencial ofrece atractivas zonas comunes, como una piscina rodeada de zonas para tomar el sol y zonas ajardinadas, perfectas para relajarse y socializar. Ubicación privilegiada con excelentes conexiones Situada en una zona bien comunicada, esta promoción ofrece un rápido acceso a las principales ciudades y servicios esenciales: Aeropuerto Internacional de Alicante: 40 km Orihuela: 8 km Elche: 20 km Murcia: 25 km Ciudad de Alicante: 48 km La Finca Golf: 12 km Vistabella Golf: 14 km Cox ofrece un fácil acceso a las autopistas AP 7 y A 7, lo que permite desplazarse con facilidad por toda la Costa Blanca. Entre las atracciones cercanas se incluyen zonas comerciales, instalaciones deportivas, centros de salud y hermosas playas de arena como Guardamar del Segura y Torrevieja. Su nuevo hogar en el corazón de la Costa Blanca Tanto si busca una residencia permanente, una casa de vacaciones o una propiedad de inversión, estas viviendas en Cox ofrecen un valor y un estilo de vida excepcionales. Póngase en contacto con nosotros hoy mismo para concertar una visita y asegurarse su vivienda ideal en esta excepcional promoción.

Localización

Economía

Esta información que se proporciona aquí está sujeta a errores y no forma parte de ningún contrato. La oferta se puede cambiar o retirar sin previo aviso. Los precios no incluyen los costes de compra

Calcular hipoteca

Cambio de divisas

  • Libras: 204.845 GBP
  • Rublo Ruso: 204.845 RUB
  • Franco Suizo: 216.929 CHF
  • Yuan Chino: 1.891.351 CNY
  • Dolar: 277.230 USD
  • Corona Sueca: 2.538.705 SEK
  • Corona Noruega: 2.588.995 NOK

Solicitar información

Responsable del tratamiento: Costa Weflen Group SL, Finalidad del tratamiento: Gestión y control de los servicios ofrecidos a través de la página Web de Servicios inmobiliarios, Envío de información a traves de newsletter y otros, Legitimación: Por consentimiento, Destinatarios: No se cederan los datos, salvo para elaborar contabilidad, Derechos de las personas interesadas: Acceder, rectificar y suprimir los datos, solicitar la portabilidad de los mismos, oponerse altratamiento y solicitar la limitación de éste, Procedencia de los datos: El Propio interesado, Información Adicional: Puede consultarse la información adicional y detallada sobre protección de datos Aquí.

Contactar

Hilde Jeanette Weflen
Propietaria y Gerente General Teléfono +34 639 689 651 Email hilde@cweflengroup.com

© 2026 Costa Weflen Group · Nota legal · Privacidad · Cookies · Mapa Web

Diseño: Mediaelx

Contactar WhatsApp
WhatsApp