
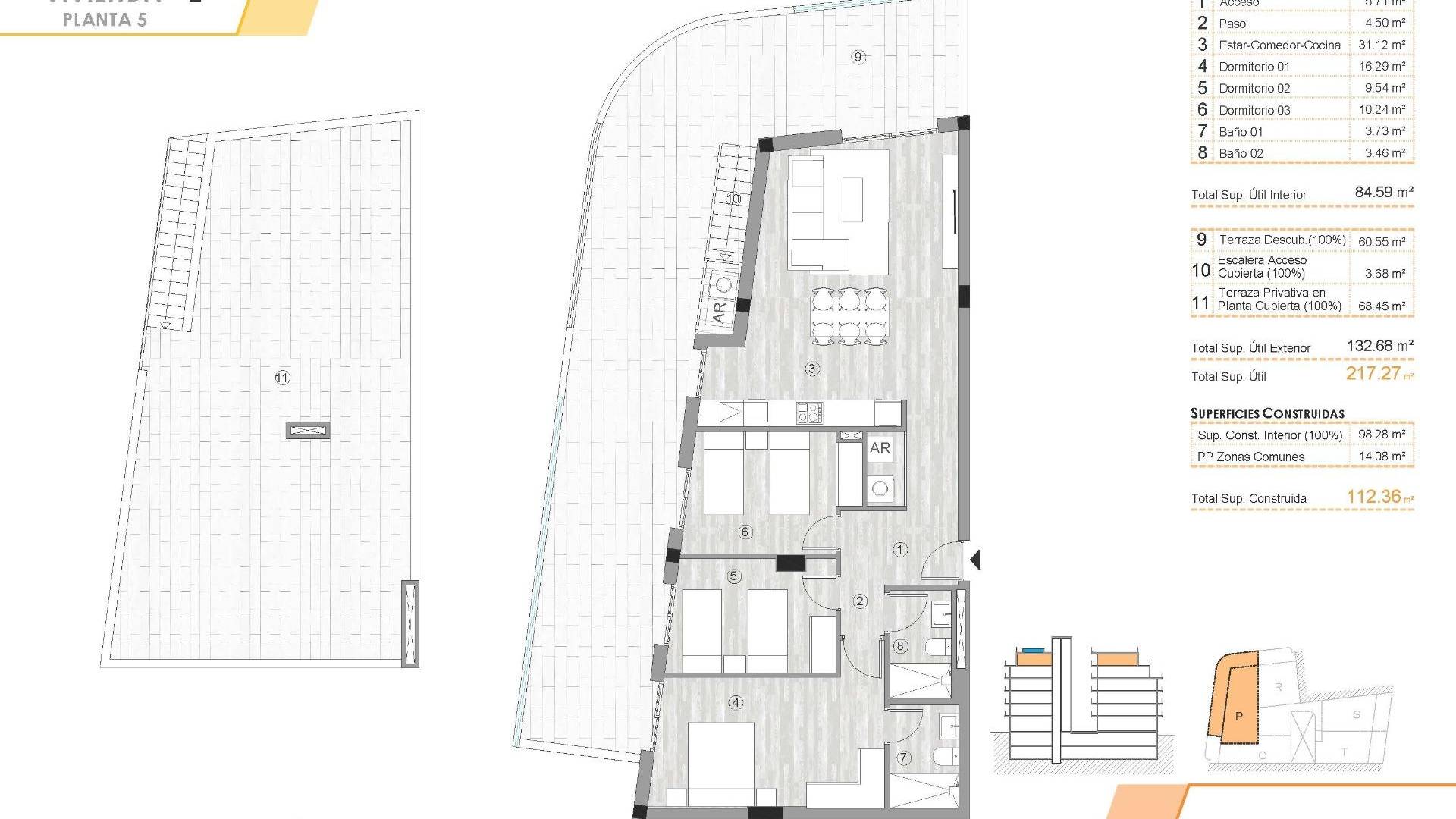
Apartamentos de nueva construcción en el corazón de Torrevieja A solo 400 m de la Playa del Cura Ubicación privilegiada en el centro de Torrevieja Este nuevo edificio residencial goza de una ubicación inmejorable en el centro de Torrevieja, a solo 400 m de la Playa del Cura. Rodeado de tiendas, supermercados, restaurantes y servicios cotidianos, ofrece todo lo necesario a poca distancia. La zona también cuenta con parques, zonas de ocio y áreas verdes, creando un equilibrio perfecto entre las comodidades urbanas y los momentos de relax. Viviendas modernas de 2 y 3 dormitorios La promoción ofrece una selección de apartamentos de 2 y 3 dormitorios, incluyendo áticos, algunos de ellos con soláriums privados. Cada vivienda está diseñada con un estilo contemporáneo, con distribuciones diáfanas, amplias terrazas y cocinas integradas de estilo americano. Los baños están totalmente equipados con muebles, mamparas de ducha y calefacción por suelo radiante. Las cocinas incluyen electrodomésticos y cada apartamento cuenta con preinstalación para aire acondicionado por conductos. Hay disponibles plazas de aparcamiento subterráneo y trasteros opcionales. Instalaciones de estilo resort para el bienestar Los residentes pueden disfrutar de una amplia gama de servicios exclusivos. La planta baja cuenta con un gimnasio totalmente equipado, ideal para el entrenamiento diario. El solárium de la azotea ofrece un auténtico oasis de relajación con tumbonas, sauna finlandesa y minipiscina. Tanto el ascensor como las escaleras conectan directamente con la azotea para ofrecer la máxima comodidad y accesibilidad. Vivir en un entorno natural y costero único Torrevieja es conocida por su cálido clima mediterráneo, con una temperatura media anual de 20 ºC, lo que la convierte en un lugar perfecto para vivir durante todo el año. La ciudad es famosa por sus lagunas salinas naturales y el Parque Natural protegido de La Mata y Torrevieja, situado a solo 4 km de la urbanización. Sus lagos rosados y verdes, sus pintorescas rutas de senderismo y su rica biodiversidad ofrecen un estilo de vida saludable e inspirador. Distancias a puntos de interés clave Playa del Cura 0,4 km Puerto deportivo de Torrevieja 1 km Parque Natural de La Mata 4 km Villamartin Golf 8 km Aeropuerto de Alicante 45 km Aeropuerto de Murcia 60 km Experimente el estilo de vida mediterráneo No pierda la oportunidad de adquirir una vivienda moderna en una de las ciudades costeras más deseadas de la Costa Blanca. Póngase en contacto con nosotros hoy mismo para concertar una visita y asegurarse su lugar en esta excepcional nueva promoción.
Esta información que se proporciona aquí está sujeta a errores y no forma parte de ningún contrato. La oferta se puede cambiar o retirar sin previo aviso. Los precios no incluyen los costes de compra