
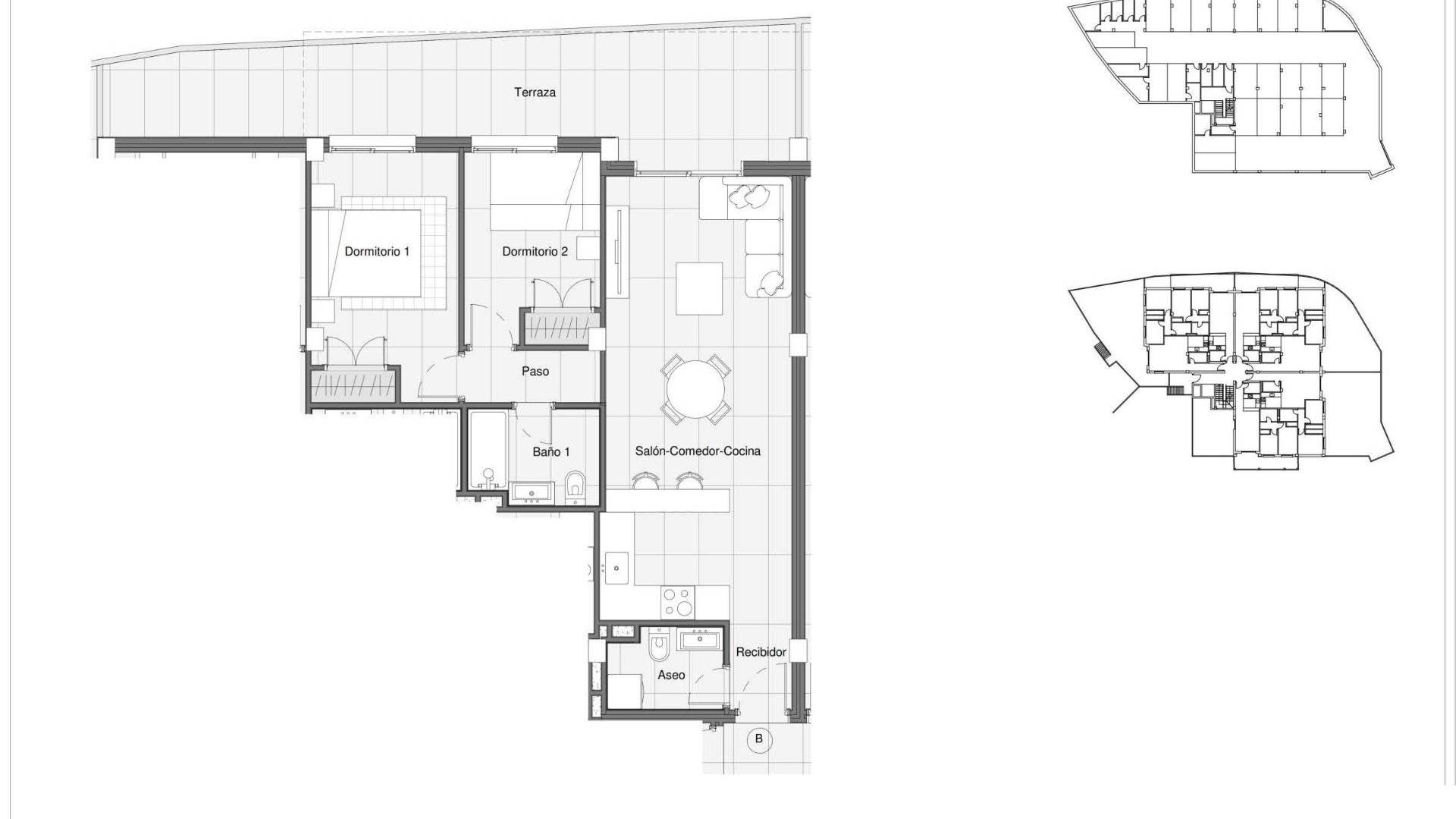
Apartamentos de nueva construcción en Bigastro, Costa Blanca Vida residencial moderna en la Vega Baja del Segura Esta nueva promoción residencial se encuentra en el corazón de la región de la Vega Baja del Segura, en la encantadora localidad de Bigastro, Alicante. Conocida por su ambiente tranquilo y su entorno tradicional, Bigastro ofrece un excelente equilibrio entre naturaleza, comodidad y proximidad a los principales destinos costeros de la Costa Blanca. A pocos minutos de Orihuela y con fácil acceso a Torrevieja y Guardamar del Segura, esta ubicación es ideal para aquellos que buscan tranquilidad sin renunciar a la conectividad y los servicios. Apartamentos contemporáneos con espacios al aire libre El edificio consta de una planta baja y tres niveles y ofrece modernos apartamentos de 2 dormitorios, 1 baño y 1 aseo de invitados, con espacio suficiente para añadir una ducha adicional. Cada vivienda ha sido diseñada para maximizar el espacio y la luz natural. Los apartamentos de la planta baja cuentan con amplias terrazas o jardines privados, los de las plantas intermedias ofrecen amplias terrazas y los áticos disfrutan de soláriums privados, perfectos para vivir al aire libre durante todo el año. Acabados de calidad y características incluidas Todos los apartamentos se entregan con especificaciones de alta calidad diseñadas para ofrecer comodidad y eficiencia. Las características incluyen instalación completa de aire acondicionado por conductos, cocinas amuebladas y equipadas con electrodomésticos, persianas eléctricas y baños equipados con muebles, espejos y mamparas de ducha. Todas las viviendas incluyen una plaza de aparcamiento subterráneo y algunas unidades también disponen de un trastero privado. Zonas comunes y estilo de vida mediterráneo El complejo residencial ofrece una piscina comunitaria bien diseñada y zonas ajardinadas, lo que crea un ambiente relajante para los residentes. Rodeada de tierras de cultivo tradicionales, suaves colinas y senderos, la zona invita a realizar actividades al aire libre, como caminar y montar en bicicleta, lo que favorece un estilo de vida mediterráneo saludable en un entorno seguro y acogedor. Ubicación de Bigastro y servicios locales Bigastro es un acogedor municipio del sur de Alicante que cuenta con todos los servicios esenciales en las inmediaciones, incluyendo supermercados, colegios, centros médicos, instalaciones deportivas y una variada oferta gastronómica. A pesar de su entorno tranquilo, la localidad disfruta de excelentes conexiones por carretera a través de la autopista AP 7, lo que hace que los desplazamientos por la Costa Blanca sean rápidos y fáciles. Distancias a puntos de interés clave Centro de Orihuela: 5 km Playas de Guardamar del Segura: 25 km Torrevieja: 30 km Centro comercial Zenia Boulevard: 30 km Aeropuerto Internacional de Alicante-Elche: 55 km Campos de golf más cercanos: 20 km Una vivienda ideal o una oportunidad de inversión Tanto si busca una residencia permanente, una vivienda vacacional o una inversión inteligente en la Costa Blanca, estos apartamentos de nueva construcción en Bigastro ofrecen un diseño moderno, una excelente relación calidad-precio y una ubicación privilegiada. Póngase en contacto con nosotros hoy mismo para recibir más información o concertar una visita y asegurarse su nueva vivienda en la comarca de la Vega Baja.
Esta información que se proporciona aquí está sujeta a errores y no forma parte de ningún contrato. La oferta se puede cambiar o retirar sin previo aviso. Los precios no incluyen los costes de compra