
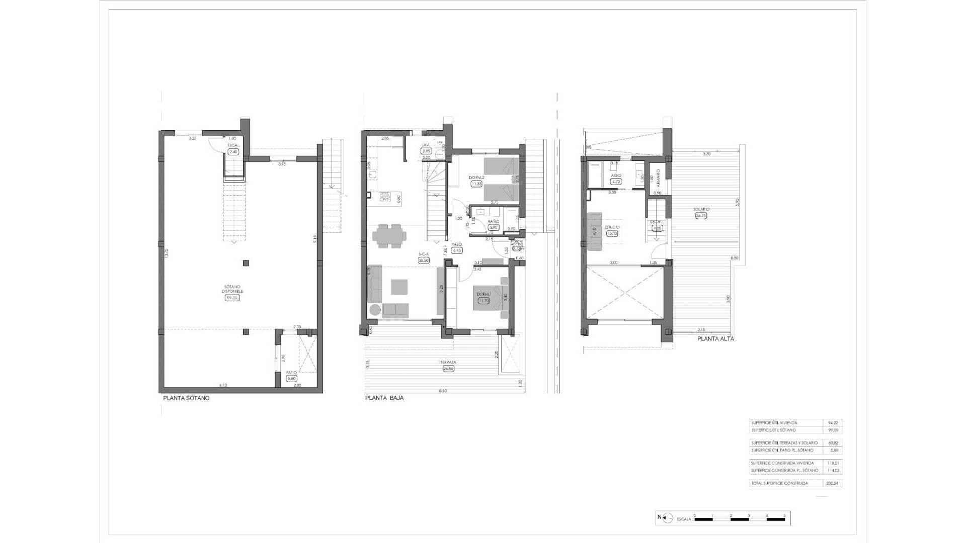
Villas adosadas de nueva construcción con piscina privada en La Finca Golf Resort, Algorfa Vida mediterránea exclusiva en La Finca Golf Descubra esta excepcional nueva promoción residencial situada en el prestigioso complejo La Finca Golf Resort, en Algorfa, Costa Blanca Sur. Puede elegir entre apartamentos de 2/3 dormitorios con piscina comunitaria o villas adosadas o independientes con piscina privada. Rodeada de exuberantes calles de golf y paisajes naturales, esta comunidad ofrece un estilo de vida idílico en un entorno tranquilo y seguro. La encantadora localidad de Algorfa es conocida por su carácter tradicional español, su excelente gastronomía y su ambiente relajado, lo que la convierte en un destino ideal tanto para casas de vacaciones como para vivir de forma permanente. Modernas villas adosadas con piscina privada Estas villas adosadas de bonito diseño cuentan con 3 dormitorios y 2 baños, y combinan funcionalidad, comodidad y estilo moderno. Detalles de la distribución Planta baja Luminoso salón-comedor diáfano conectado a una cocina amueblada Grandes puertas correderas que dan acceso directo al jardín y a la piscina privada Dos amplios dormitorios con armarios empotrados Un cuarto de baño completo Aparcamiento privado dentro de la parcela Planta superior Estudio con cuarto de baño, ideal para oficina, salón o zona de invitados Acceso a una terraza privada abierta de 30 m2, perfecta para tomar el sol y relajarse Características y acabados de alta calidad Construidas con los mejores estándares, estas villas ofrecen comodidades contemporáneas para vivir todo el año, incluyendo Armarios empotrados en todos los dormitorios Persianas eléctricas en el salón y los dormitorios Baños totalmente equipados con espejos y mamparas de ducha Aire acondicionado por conductos totalmente instalado Jardín y piscina privados Ubicación privilegiada cerca de playas, golf y servicios La Finca Golf Resort es uno de los destinos de golf más famosos de la Costa Blanca y ofrece una amplia gama de servicios, como un hotel de lujo, restaurantes, spa e instalaciones deportivas. La urbanización goza de un rápido acceso a las ciudades, playas y aeropuertos cercanos, lo que proporciona comodidad y conectividad. Distancias a puntos clave Club de golf La Finca: a poca distancia Playas de Guardamar del Segura: 15 km Torrevieja y Orihuela Costa: 15 km Almoradí, Benijófar y Ciudad Quesada: a poca distancia en coche Aeropuerto de Alicante: 35 km Disfrute de lo mejor de la vida en la Costa Blanca Con un diseño moderno, espacios exteriores privados y una ubicación privilegiada, estas villas son una excelente opción para familias, inversores y amantes del golf que buscan un estilo de vida de calidad en el sur de España. Póngase en contacto con nosotros hoy mismo para concertar una visita o recibir más información sobre esta exclusiva promoción de nueva construcción en La Finca Golf Resort, Algorfa.
Esta información que se proporciona aquí está sujeta a errores y no forma parte de ningún contrato. La oferta se puede cambiar o retirar sin previo aviso. Los precios no incluyen los costes de compra
© 2026 Costa Weflen Group · Nota legal · Privacidad · Cookies · Mapa Web
Diseño: Mediaelx
En primer lugar, gracias por contactarnos.
Hemos recibido su solicitud con respecto a la referencia de propiedad:N9538. Uno de nuestros agentes se pondrá en contacto con usted lo antes posible.
En primer lugar, gracias por contactarnos.
Hemos recibido una solicitud de informe si baja el precio de la propiedad con la referencia: N9538
Mientras tanto, eche un vistazo a esta selección de propiedades similares que podrían ser de su interés: