
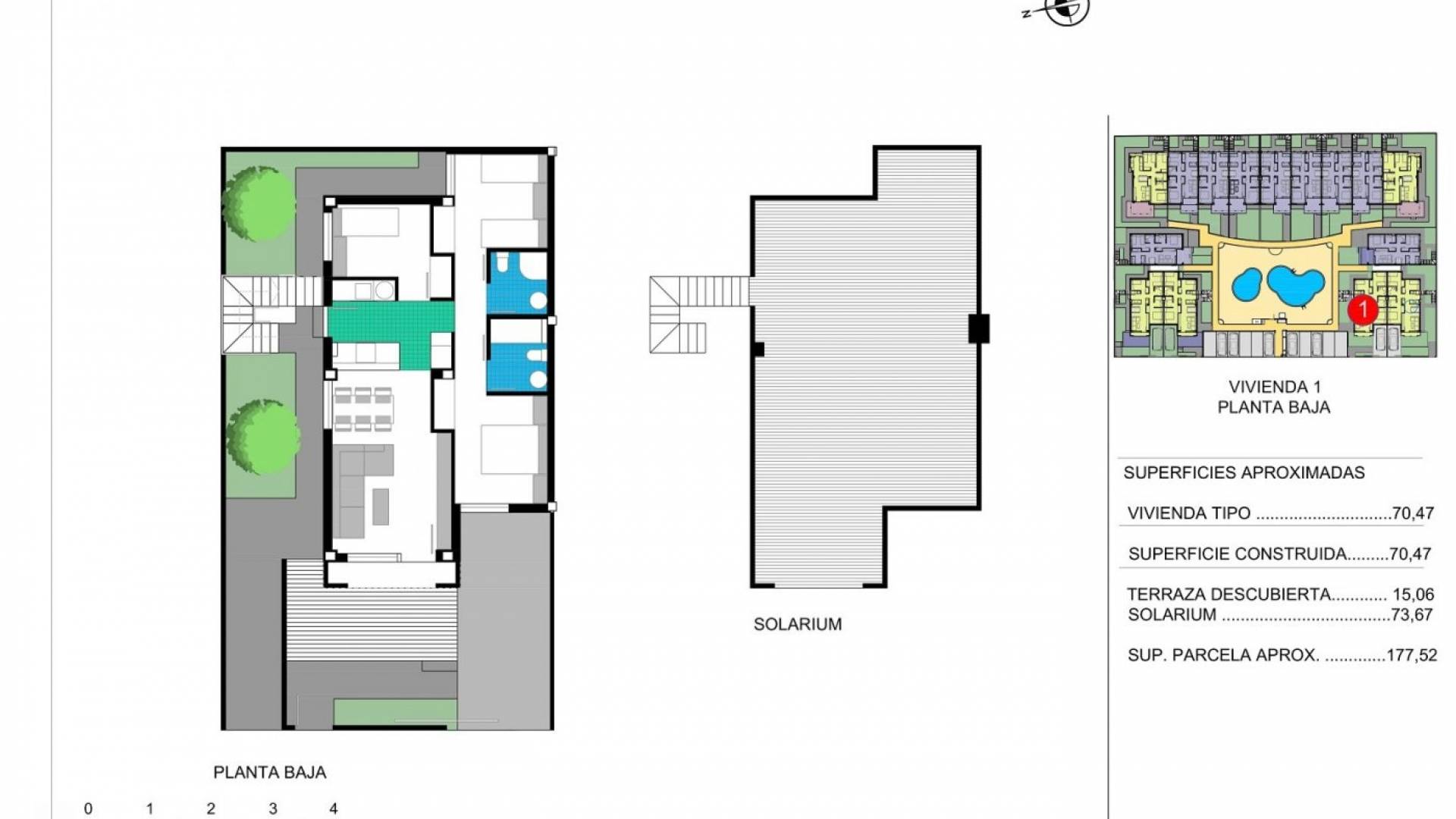
NOUVELLE CONSTRUCTION RÉSIDENTIELLE À EL VERGEL Nouveau complexe résidentiel de maisons de ville, de villas jumelées et indépendantes avec piscine commune à El Vergel. Belle villa jumelée de plain-pied avec 3 chambres, 2 salles de bain, cuisine ouverte sur le salon, terrasse, jardin et solarium privés ainsi qu'une zone commune et une piscine. Les cuisines sont équipées de meubles hauts et bas, de plaques vitrocéramiques, d'un four électrique et d'une hotte aspirante. Les salles de bains sont équipées d'une douche extra plate, d'un lavabo principal avec meuble sous vasque et de sols en grès. Ce quartier résidentiel de première classe se trouve à quelques minutes en voiture de la plage et à 10 minutes de Denia. Vous pourrez profiter des plages d'El Verger-Denia à 900 mètres, du terrain de golf de La Sella et de la ville de Denia à 8 km, entourés de commerces et de services à pied. Les principales attractions sont la rue principale, deux tours médiévales et une église néoclassique. Une grande partie des terres environnantes est consacrée à l'agriculture, plus précisément aux légumes et aux agrumes. La ville se trouve à 91 km d'Alicante et de Valence.
Cette information donnée ici est sujette à des erreurs et ne fait partie d'aucun contrat. L'offre peut être modifiée ou retirée sans préavis. Les prix n'incluent pas les coûts d'achat