Alicante (Costa Blanca) - Aspe Poligono 19
Réf.: N8934
Villa Nouvelle construction

Des détails

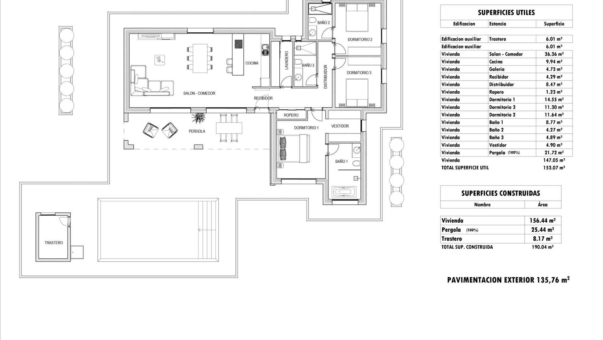
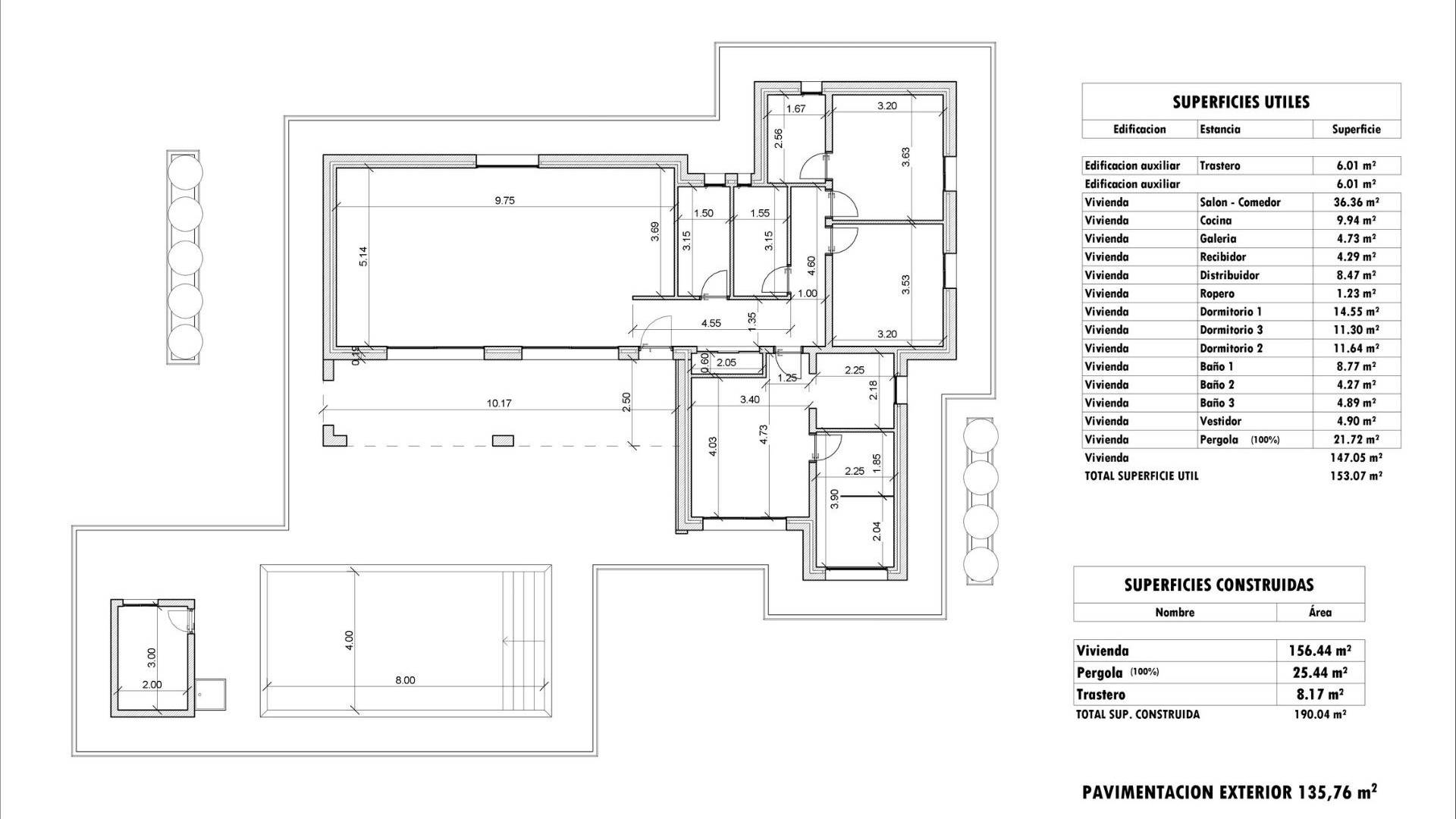
  • 190m2
  • 13.172m2
  • 3
  • 3
  •  

Les caractéristiques

icon Chambres: 3
icon Salles de bain: 3
icon Construit: 190m2
icon Intrigue: 13.172m2
icon Piscine: Oui
icon Private Pool
icon Gated
icon Near Schools
icon Number of Parking Spaces: 1
icon Air Conditioning: Pre-Installed
icon Garden
icon Double Bedrooms: 3
icon Terrace: 25 Msq.
icon Parking - Space
icon Location: Rural, Mountain
icon Beach: 25000 Meters
icon Useable Build Space: 153 Msq.
icon Storage / Trastero
Énergie
Énergie:
B

La description

Villas neuves situées dans la commune d'Aspe. Villas neuves avec plusieurs modèles au choix, comprenant 2, 3 ou 4 chambres, sur un ou deux étages et construites avec dalle ou structure : le prix exact sera calculé en fonction du modèle et du terrain choisi. Toutes les villas sont construites sur des terrains rustiques de plus de 10 000 m2, dont environ 2 500 m2 seront clôturés. Les villas disposent d'une cuisine américaine avec salon, de placards intégrés, d'une piscine privée, d'un porche, d'un débarras et d'une place de parking extérieure. Plusieurs terrains sont disponibles, le prix a été calculé sur la base d'un terrain de 75 000 euros (si vous choisissez un autre terrain, la différence sera payée ou remboursée en fonction du prix de celui-ci). Réalisé en autopromotion, livraison dans un délai de 12 mois à compter de l'octroi du permis. Si vous recherchez un environnement calme, à proximité de villages typiques espagnols loin de la foule touristique, entouré de montagnes, avec un très grand terrain et à environ 30 minutes de la mer, cette maison est faite pour vous. Aspe est un village espagnol typique avec tous les services nécessaires à la vie quotidienne, entouré de montagnes et avec plusieurs sites naturels à proximité où vous pourrez faire des randonnées ou du VTT. Situé à 25 km de la plage, à 9 km d'Elche et à environ 20 km de l'aéroport d'Alicante.

Emplacement

Économie

Cette information donnée ici est sujette à des erreurs et ne fait partie d'aucun contrat. L'offre peut être modifiée ou retirée sans préavis. Les prix n'incluent pas les coûts d'achat

Calculer les hypothèques

Échange de devises

  • Livres sterling: 434.015 GBP
  • Rouble russe: 434.015 RUB
  • Franc suisse: 459.950 CHF
  • Yuan chinois: 4.003.350 CNY
  • Dollar: 585.600 USD
  • Couronne suédoise: 5.410.000 SEK
  • La couronne norvégienne: 5.476.250 NOK

Demander des informations

Responsable del tratamiento: Costa Weflen Group SL, Finalidad del tratamiento: Gestión y control de los servicios ofrecidos a través de la página Web de Servicios inmobiliarios, Envío de información a traves de newsletter y otros, Legitimación: Por consentimiento, Destinatarios: No se cederan los datos, salvo para elaborar contabilidad, Derechos de las personas interesadas: Acceder, rectificar y suprimir los datos, solicitar la portabilidad de los mismos, oponerse altratamiento y solicitar la limitación de éste, Procedencia de los datos: El Propio interesado, Información Adicional: Puede consultarse la información adicional y detallada sobre protección de datos Aquí.

Contact

Hilde Jeanette Weflen
Propriétaire et PDG Téléphone +34 639 689 651 Email hilde@cweflengroup.com

© 2026 Costa Weflen Group · Mentions légales · Intimité · Cookies · Plan du site

Conception: Mediaelx

Contact WhatsApp
WhatsApp