
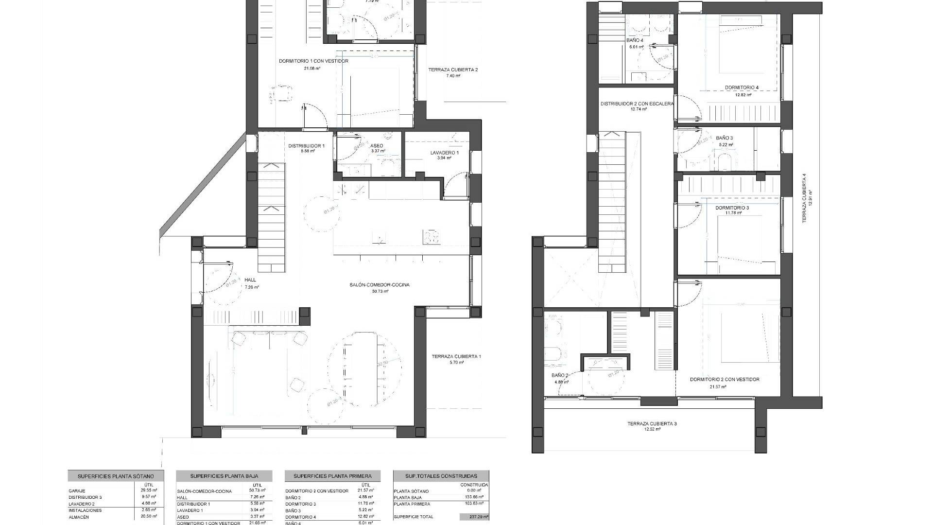
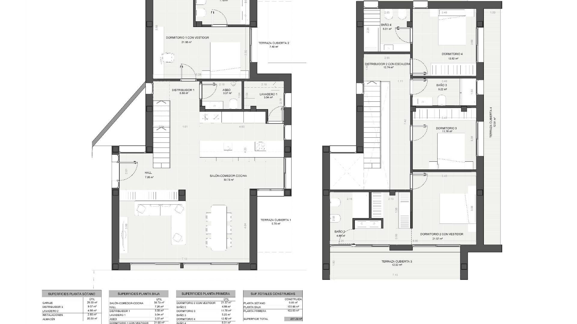
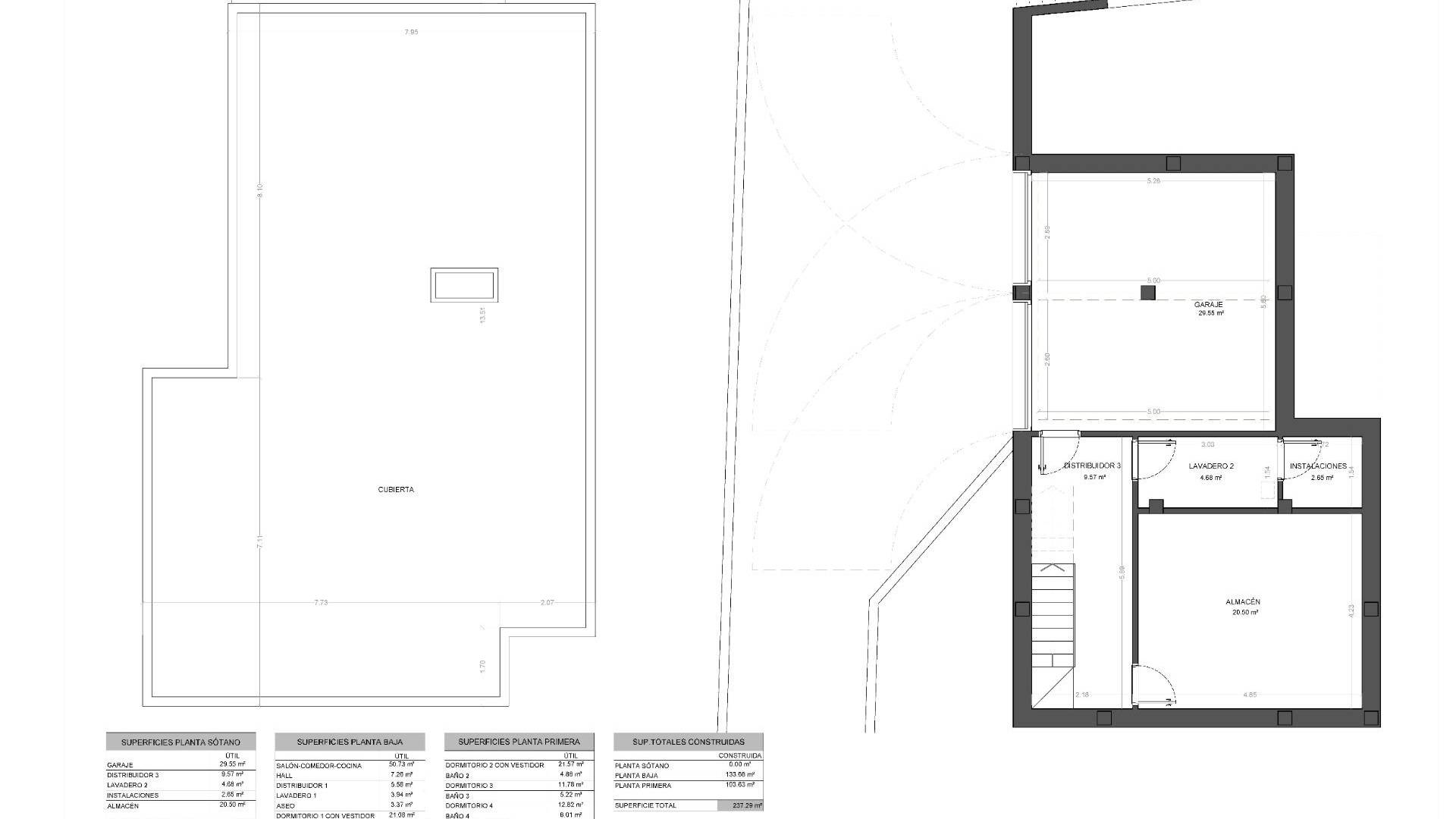
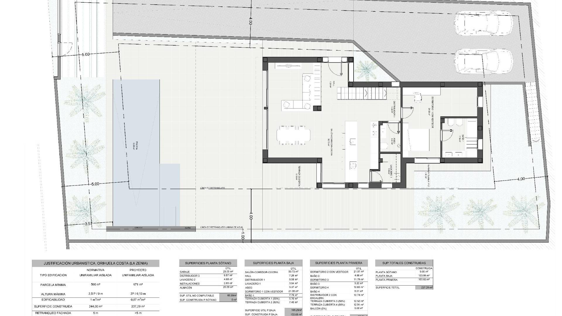
Villa de luxe neuve à vendre à La Zenia, Orihuela Costa Une vie exclusive près de la plage sur la Costa Blanca Située à seulement 600 m des plages de sable de La Zenia, cette impressionnante villa de luxe à Orihuela Costa offre l'équilibre parfait entre confort, design et style de vie méditerranéen. Avec 4 chambres spacieuses, chacune avec sa propre salle de bains, ainsi qu'un WC pour les invités, cette maison est idéale pour les familles ou pour ceux qui recherchent un refuge de vacances spacieux près de la mer. Design haut de gamme et caractéristiques extérieures Située sur un grand terrain privé de 670 m², la villa est conçue avec des finitions de haute qualité et une attention particulière aux détails. Elle comprend : Une orientation sud-sud-est pour une lumière naturelle optimale Une grande piscine privée Un garage souterrain privé pouvant accueillir 2 véhicules et un parking en surface pour plusieurs véhicules supplémentaires. Un magnifique jardin paysager idéal pour la vie en plein air Cette propriété vous permet de profiter du climat ensoleillé de la Costa Blanca tout au long de l'année. Emplacement privilégié à La Zenia La Zenia est un quartier résidentiel très prisé à Orihuela Costa, connu pour sa communauté animée, ses services tout au long de l'année et sa proximité avec la plage. Les résidents bénéficient d'un accès à : Centre commercial La Zenia Boulevard : 2,5 km Golf Villamartín : 4,5 km Centre de Torrevieja : 9 km Aéroport d'Alicante : 40 km Aéroport de Murcie-Corvera : 60 km Entourée de restaurants, de bars, d'écoles internationales et de supermarchés, La Zenia est l'une des zones les plus dynamiques du sud de la Costa Blanca. Assurez-vous la villa de vos rêves à La Zenia Que vous recherchiez une résidence familiale de luxe ou un investissement de premier ordre sur la côte méditerranéenne, cette villa est une opportunité exceptionnelle. Contactez-nous dès aujourd'hui pour obtenir plus d'informations, organiser une visite et réaliser la maison de vos rêves avant qu'il ne soit trop tard.
Cette information donnée ici est sujette à des erreurs et ne fait partie d'aucun contrat. L'offre peut être modifiée ou retirée sans préavis. Les prix n'incluent pas les coûts d'achat