
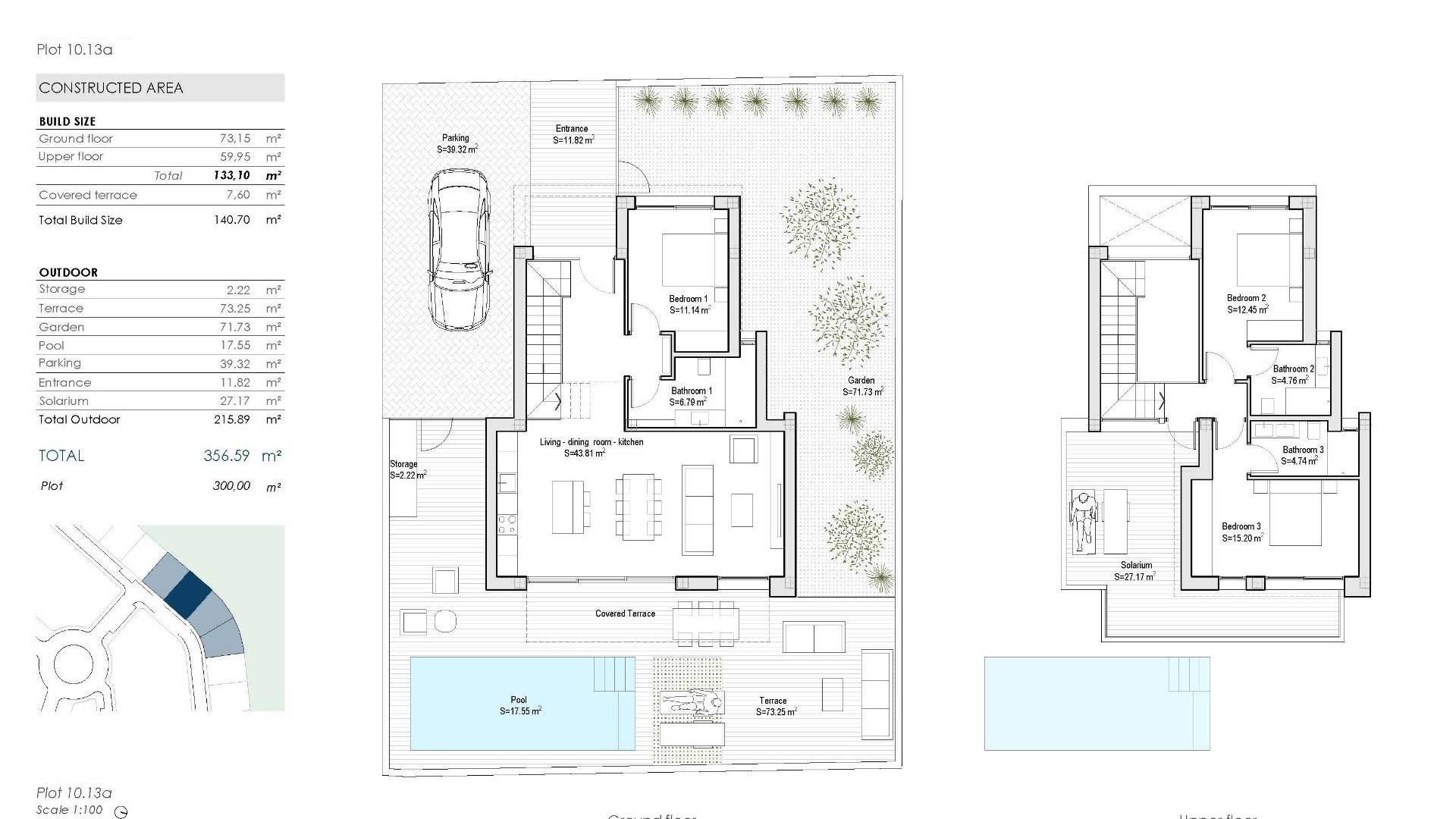
Villas neuves en première ligne de Roda Golf avec piscine privée Une vie exclusive au bord du golf sur la Costa Cálida Ces villas modernes en première ligne à Roda Golf (Murcie) offrent le mélange parfait entre luxe, confort et style de vie méditerranéen. Situé à seulement 3 km des plages dorées de la Mar Menor, ce projet résidentiel est idéal pour les amateurs de golf, les passionnés de sports nautiques et ceux qui recherchent une maison paisible mais bien desservie sur la Costa Cálida. Le complexe est entouré de services, de restaurants, de commerces et d'installations sportives, garantissant ainsi un confort optimal au quotidien. Villas spacieuses avec piscines privées Chaque villa est soigneusement conçue sur deux niveaux, avec une surface totale de 140 m². L'agencement comprend : 3 chambres (dont 2 avec salle de bains attenante) 3 salles de bains entièrement équipées Salon lumineux avec cuisine ouverte Chambre au rez-de-chaussée pour plus de commodité Deux chambres au premier étage avec accès direct à la terrasse non couverte Profitez de la vie en plein air avec une piscine privée, une terrasse spacieuse au rez-de-chaussée et une terrasse ensoleillée au premier étage offrant une vue imprenable sur le golf et un ensoleillement toute la journée. Chaque propriété comprend également une place de parking privée sur le terrain et un grand débarras extérieur. Caractéristiques de haute qualité Ces maisons sont construites selon les normes les plus élevées et comprennent : Chauffage au sol dans les salles de bains Volets motorisés en aluminium dans toutes les chambres Salles de bains entièrement équipées avec meubles, miroirs, éclairage et parois de douche en verre Cuisines modernes avec appareils électroménagers inclus Pré-installation de la climatisation par conduits dans le salon et les chambres Panneaux solaires avec onduleur pour une meilleure efficacité énergétique Emplacement privilégié à Roda Golf Situées dans le prestigieux Roda Golf & Beach Resort, ces villas sont entourées de fairways luxuriants et de paysages méditerranéens. Distances vers les principaux points d'intérêt : Plages de Mar Menor : 3 km Centre commercial Dos Mares : 5 km Marina de Lo Pagán : 6 km Clubhouse de Roda Golf : accessible à pied Aéroport international de Murcie (Corvera) : 35 km Aéroport d'Alicante : 85 km Ville de Carthagène : 30 km Vivez le style de vie méditerranéen Que ce soit comme résidence permanente, comme lieu de villégiature ou comme investissement locatif, ces villas offrent la combinaison parfaite entre élégance, fonctionnalité et emplacement. Contactez-nous dès aujourd'hui pour planifier une visite et réserver votre villa en première ligne à Roda Golf. La maison de vos rêves sur la Costa Cálida vous attend !
Cette information donnée ici est sujette à des erreurs et ne fait partie d'aucun contrat. L'offre peut être modifiée ou retirée sans préavis. Les prix n'incluent pas les coûts d'achat