Alicante (Costa Blanca) - Orihuela Vistabella Golf
Réf.: SP1151
Villa Nouvelle construction

Des détails

  • 114m2
  • 298m2
  • 3
  • 2
  •  

Les caractéristiques

icon Chambres: 3
icon Salles de bain: 2
icon Construit: 114m2
icon Intrigue: 298m2
icon Piscine: Oui
icon Private Pool
icon Gated
icon Near Schools
icon Near Commercial Center
icon Number of Parking Spaces: 1
icon Near Golf / Golf Resort Property
icon Solarium: Yes
icon Double Bedrooms: 3
icon Parking - Space
icon Location: Urbanisation
icon Useable Build Space: 100 Msq.
icon Beach: 14000 Meters
icon Terrace: 121 Msq.
Énergie
Énergie:
B

La description

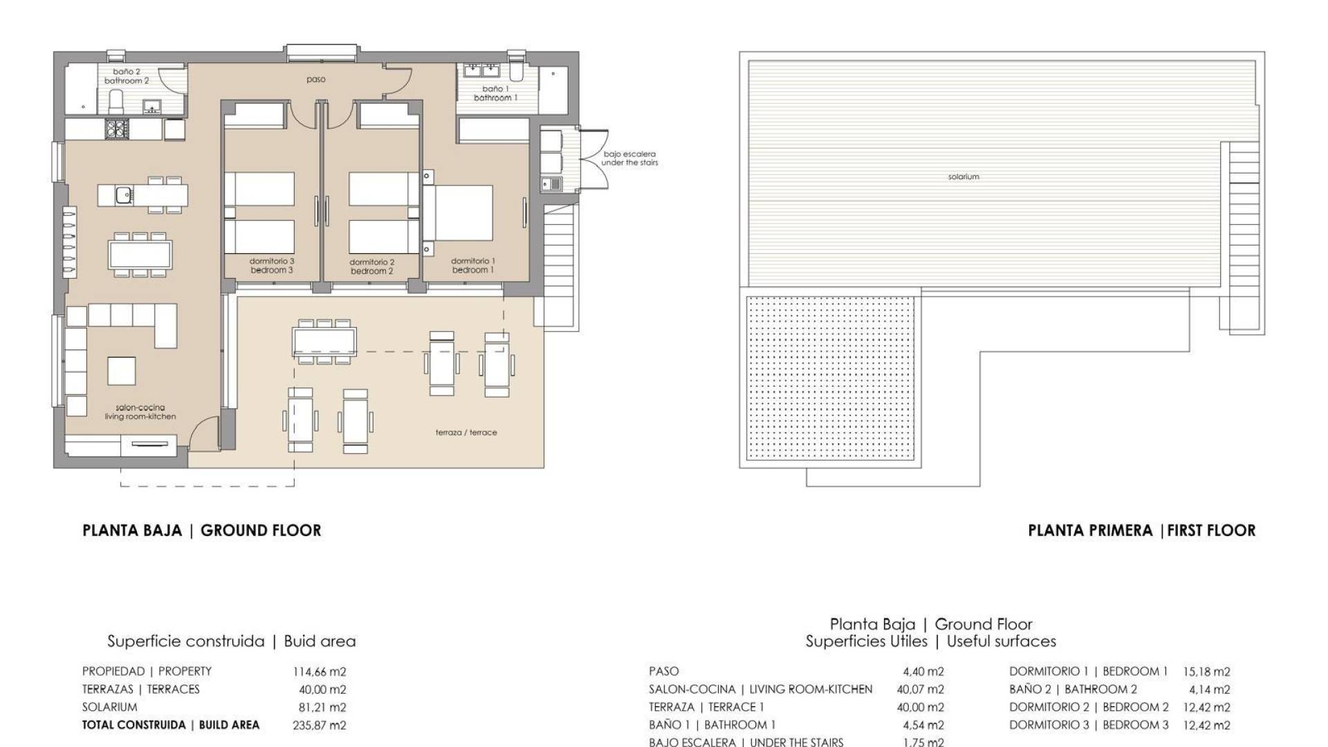
Villas neuves au Vistabella Golf Resort – Orihuela Découvrez la vie moderne à la méditerranée au cœur de la Costa Blanca avec ces superbes villas neuves au Vistabella Golf Resort. Situé entre San Miguel de Salinas et Los Montesinos, dans la municipalité d'Orihuela, ce complexe exclusif offre luxe, confort et un emplacement imbattable pour les amateurs de golf et ceux qui recherchent un certain art de vivre. Deux modèles de villas distincts Les acheteurs peuvent choisir entre deux designs élégants : Villas de plain-pied avec 3 chambres, 2 salles de bains et un solarium sur le toit. Villas à deux étages avec 4 chambres, 3 salles de bains et une terrasse solarium au premier étage. Les deux modèles sont construits sur des terrains d'environ 300 m² et comprennent une piscine privée et un parking sur place. Qualité supérieure et confort moderne Chaque villa est dotée de finitions luxueuses, notamment la climatisation réversible, une cuisine équipée avec appareils électroménagers, l'éclairage extérieur, des volets électriques et d'élégantes parois de douche dans les salles de bains. L'alliance du style et de la fonctionnalité garantit une maison à la fois belle et pratique. Un style de vie exclusif dans un complexe de golf Vistabella Golf Resort est une communauté fermée avec un parcours de golf 18 trous, des courts de paddle-tennis, un terrain de boules, un supermarché et un large choix de bars et de restaurants. De futurs aménagements feront de ce complexe une véritable destination 5 étoiles, avec notamment un bar à champagne, un bar à sushis, un hôtel spa, une plage artificielle, un court de tennis, un terrain de football et un bar gastronomique. Emplacement privilégié sur la Costa Blanca Le complexe offre un excellent accès aux meilleures plages, terrains de golf et services de la région. Les distances vers les principaux points d'intérêt sont les suivantes : Plage de La Mata : 18 km Plage de Guardamar del Segura : 20 km Torrevieja : 15 km Aéroport d'Alicante : 55 km Aéroport de Murcie : 68 km Villamartín Golf : 12 km Las Colinas Golf & Country Club : 14 km La maison de vos rêves vous attend Que ce soit comme résidence permanente, maison de vacances ou investissement locatif, ces villas neuves du Vistabella Golf Resort offrent un rapport qualité-prix exceptionnel dans l'une des zones côtières les plus prisées d'Espagne. Contactez-nous dès aujourd'hui pour organiser une visite et réserver votre place dans ce luxueux complexe de golf. 489

Emplacement

Économie

Cette information donnée ici est sujette à des erreurs et ne fait partie d'aucun contrat. L'offre peut être modifiée ou retirée sans préavis. Les prix n'incluent pas les coûts d'achat

Calculer les hypothèques

Échange de devises

  • Livres sterling: 407.511 GBP
  • Rouble russe: 407.511 RUB
  • Franc suisse: 428.126 CHF
  • Yuan chinois: 3.702.483 CNY
  • Dollar: 547.152 USD
  • Couronne suédoise: 5.061.763 SEK
  • La couronne norvégienne: 5.062.468 NOK

Demander des informations

Responsable del tratamiento: Costa Weflen Group SL, Finalidad del tratamiento: Gestión y control de los servicios ofrecidos a través de la página Web de Servicios inmobiliarios, Envío de información a traves de newsletter y otros, Legitimación: Por consentimiento, Destinatarios: No se cederan los datos, salvo para elaborar contabilidad, Derechos de las personas interesadas: Acceder, rectificar y suprimir los datos, solicitar la portabilidad de los mismos, oponerse altratamiento y solicitar la limitación de éste, Procedencia de los datos: El Propio interesado, Información Adicional: Puede consultarse la información adicional y detallada sobre protección de datos Aquí.

Contact

Hilde Jeanette Weflen
Propriétaire et PDG Téléphone +34 639 689 651 Email hilde@cweflengroup.com

© 2026 Costa Weflen Group · Mentions légales · Intimité · Cookies · Plan du site

Conception: Mediaelx

Contact WhatsApp
WhatsApp