Alicante (Costa Blanca) - Moraira_Teulada La Sabatera
Réf.: SP0230
Villa Nouvelle construction

Des détails

  • 544m2
  • 1.046m2
  • 4
  • 4
  •  

Les caractéristiques

icon Chambres: 4
icon Salles de bain: 4
icon Construit: 544m2
icon Intrigue: 1.046m2
icon Piscine: Oui
icon Private Pool
icon Gated
icon Near Trees
icon Near Schools
icon Views: Sea
icon Solarium: Yes
icon Air Conditioning: Pre-Installed
icon Garden
icon Location: Coastal, Mountain
icon Double Bedrooms: 4
icon Number of Parking Spaces: 2
icon BBQ
icon Beach: 1200 Meters
icon Under-Build / Basement
icon Parking - Space
icon Terrace: 142 Msq.
icon Useable Build Space: 240 Msq.
icon Storage / Trastero
icon Toilet: 1
Énergie
Énergie:
A

La description

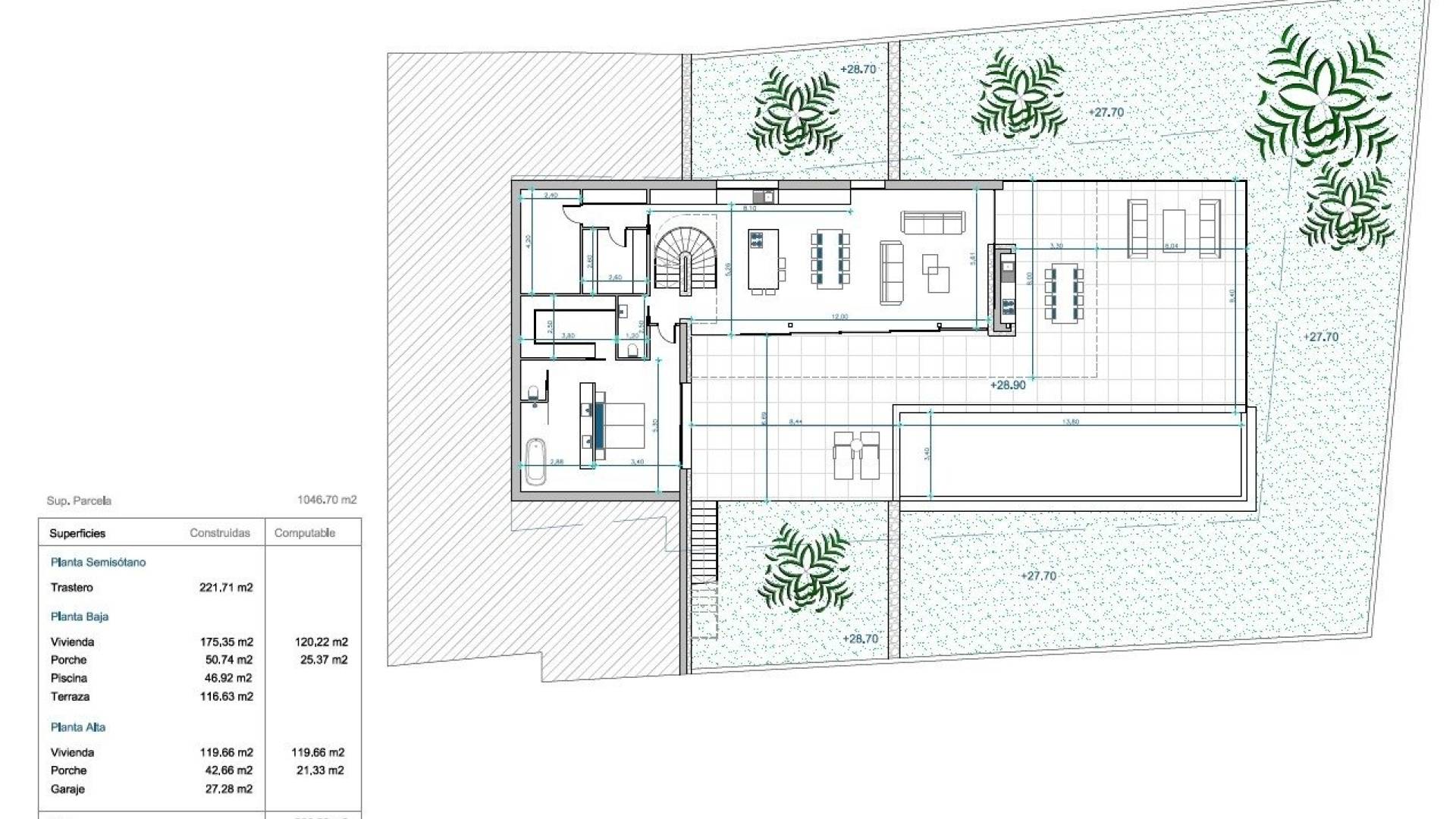
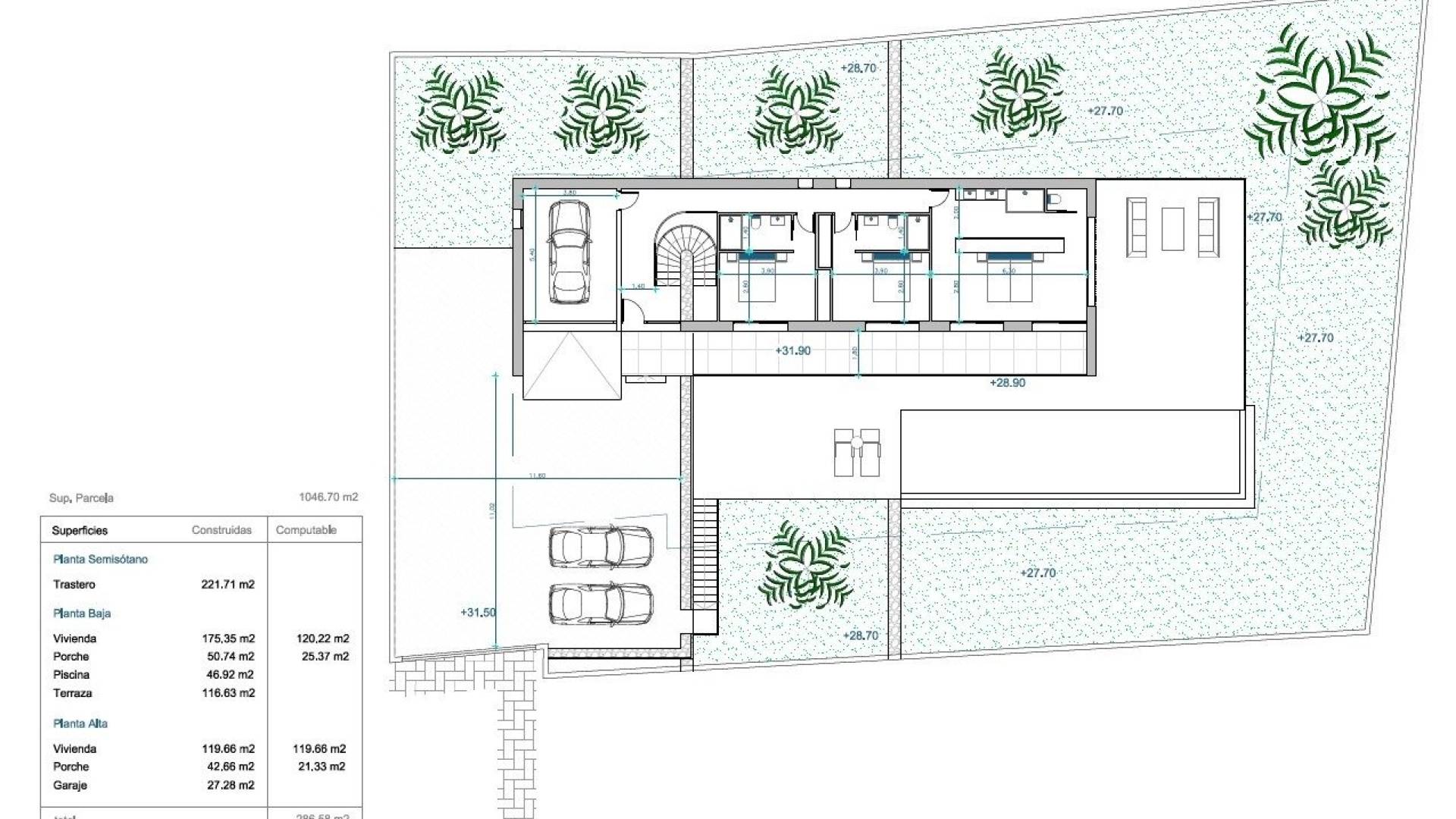
VILLA DE LUXE DE NOUVELLE CONSTRUCTION À MORAIRA Nouvelle construction Villa de luxe avec les meilleures qualités, et donnant sur la mer, sur un terrain de 1046 m2 avec deux accès piétons et véhicules, l'un à travers la zone commune de l'urbanisation. La villa est à distance de marche des belles plages et du centre de Moraira. Villa de luxe distribuée sur 3 étages : rez-de-chaussée avec un grand salon lumineux à côté de la cuisine ouverte avec îlot de cuisine, une toilette invités, et une chambre avec salle de bains en suite. A l'extérieur de cet étage se trouve la piscine à débordement, avec une grande terrasse et un espace barbecue. A l'étage supérieur, nous trouvons 3 chambres spacieuses avec leur salle de bain en suite, et leur propre balcon où vous pourrez profiter des belles vues offertes par cette villa. A l'extérieur de cet étage se trouve le garage. Enfin, le sous-sol, nous trouvons une salle de stockage de 221 m2. EXTRAS : Menuiserie technique avec verre de sécurité, cuisine complète avec appareils Siemens, salles de bains et robinets complets de marque roca, éclairage LED, système aérothermique pour l'eau chaude et le chauffage au sol, conduits de climatisation (chaud et froid) dans toute la maison, panneaux solaires, armoires encastrées, volets électriques, alarme intérieure, pré-installation de l'alarme extérieure et des caméras de sécurité. Piscine rectangulaire avec système de débordement zone de barbecue, buanderie, jardin fini. Portes d'accès automatiques. Classification énergétique A. Orientation sud Moraira est une petite ville avec de bons restaurants, des bars et de nombreux supermarchés autour. Il y a une plage très agréable juste à côté de la ville qui est idéal pour les familles. Le front de mer offre une vue imprenable sur Penon Ifach, de l'autre côté de la baie de Calpe. La route côtière qui y mène vaut la peine d'être parcourue et offre des vues spectaculaires. Moraira est située à environ 1 heure 15 minutes au nord de l'autoroute A7 depuis l'aéroport d'Alicante et est assez facile d'accès. C'est à peu près la même distance ou un peu moins au sud de l'aéroport de Valence. 489

Emplacement

Économie

Cette information donnée ici est sujette à des erreurs et ne fait partie d'aucun contrat. L'offre peut être modifiée ou retirée sans préavis. Les prix n'incluent pas les coûts d'achat

Calculer les hypothèques

Échange de devises

  • Livres sterling: 1.733.390 GBP
  • Rouble russe: 1.733.390 RUB
  • Franc suisse: 1.838.959 CHF
  • Yuan chinois: 15.913.433 CNY
  • Dollar: 2.330.489 USD
  • Couronne suédoise: 21.563.640 SEK
  • La couronne norvégienne: 22.121.835 NOK

Demander des informations

Responsable del tratamiento: Costa Weflen Group SL, Finalidad del tratamiento: Gestión y control de los servicios ofrecidos a través de la página Web de Servicios inmobiliarios, Envío de información a traves de newsletter y otros, Legitimación: Por consentimiento, Destinatarios: No se cederan los datos, salvo para elaborar contabilidad, Derechos de las personas interesadas: Acceder, rectificar y suprimir los datos, solicitar la portabilidad de los mismos, oponerse altratamiento y solicitar la limitación de éste, Procedencia de los datos: El Propio interesado, Información Adicional: Puede consultarse la información adicional y detallada sobre protección de datos Aquí.

Contact

Hilde Jeanette Weflen
Propriétaire et PDG Téléphone +34 639 689 651 Email hilde@cweflengroup.com

© 2026 Costa Weflen Group · Mentions légales · Intimité · Cookies · Plan du site

Conception: Mediaelx

Contact WhatsApp
WhatsApp