
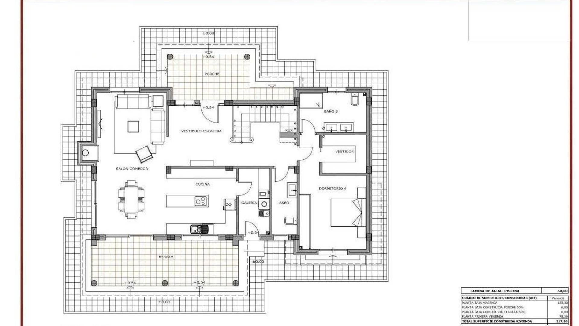
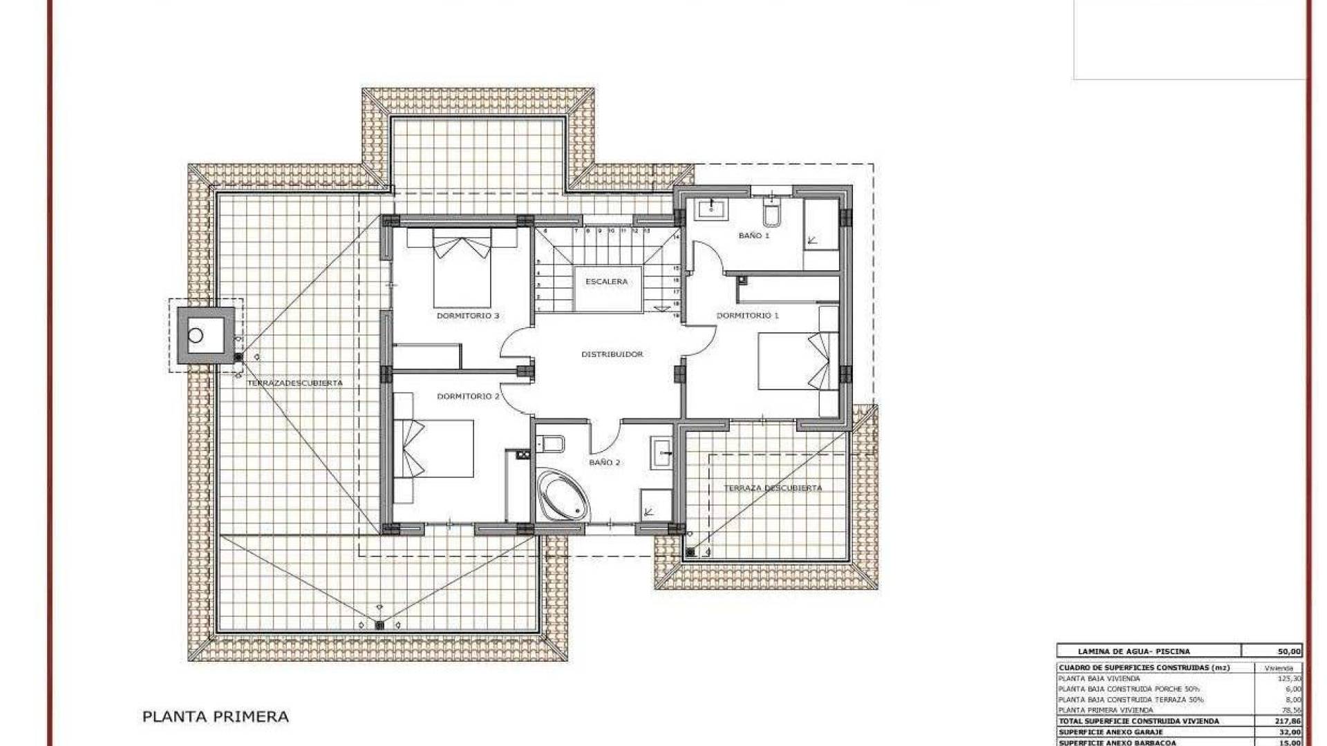
Villas neuves à Pinoso sur des terrains rustiques Vous pouvez choisir des villas avec des touches traditionnelles espagnoles ou des finitions ultra modernes, lumineuses et épurées. Plusieurs tailles sont disponibles, avec 3 à 6 chambres et 1 ou 2 étages. Différentes parcelles légales sont disponibles (rustiques avec un minimum de 10 000 m²), certaines à proximité de la ville, d'autres totalement privées et les plus populaires à 5-10 minutes en voiture d'une ville. Nous avons une parcelle pour tous les goûts, toutes avec des vues imprenables et toutes avec l'eau du réseau + l'électricité incluses dans le prix et l'internet haut débit disponible. Le prix publié comprend 30 000 euros pour la parcelle. Si la parcelle choisie coûte plus cher, la différence sera à payer. Nous travaillons avec le meilleur constructeur de la région et utilisons des matériaux de première qualité pour une finition parfaite. Toutes les maisons comprennent une terrasse en béton estampé de 2 m autour de la piscine (couleur et motif au choix), 1 m autour de la maison, une entrée fermée, une clôture de 3 000 m², la préinstallation de la climatisation par conduits, une cuisine standard, une porte de sécurité, des fenêtres oscillo-battantes allemandes (ou coulissantes si vous préférez), une cheminée encastrée (finition traditionnelle), la préinstallation de la télévision et d'Internet, un chemin de gravier de quelques mètres autour de la maison, une fosse septique. Les salles de bains comprennent une colonne de douche, un receveur de douche ou une baignoire, des meubles de salle de bains (plusieurs couleurs au choix) avec lavabos, robinets et miroirs, ainsi qu'un large choix de carreaux muraux. Large choix de carreaux de céramique pour le sol, de différentes couleurs, effet bois, etc. Les cuisines comprennent des armoires avec portes et poignées standard, un évier et un robinet en acier inoxydable, une pré-installation pour le four, le lave-vaisselle et la hotte aspirante. Plusieurs plans de travail en granit au choix. Appareils électroménagers non inclus. Escalier en marbre (crème, blanc ou gris) et rampes incluses, plus rampes pour le porche avant. Vous pouvez personnaliser la maison à votre goût, la plupart des modifications internes sont gratuites, vous pouvez choisir les finitions des carreaux, des plans de travail de cuisine, du marbre pour les escaliers ou les étagères, etc. Les maisons peuvent être agrandies et nous pouvons même construire votre propre conception. Vous pouvez commander plusieurs extras tels qu'une piscine plus grande, un garage simple ou double, une maison d'amis, etc., moyennant un coût supplémentaire. La ville de Pinoso est située à environ 45 minutes à l'intérieur des terres d'Alicante et des plages de sable blanc de la Costa Blanca, près de la frontière entre Murcie et Alicante. Elle compte un peu moins de 8 000 habitants. Pinoso, également connue sous le nom d'El Pinos, doit son nom aux pins qui couvrent les montagnes de la région. Pinoso offre un style de vie rural espagnol, sans feux de signalisation, presque sans circulation, les seuls embouteillages étant pratiquement causés par les tracteurs qui transportent les raisins à la Bodega. Les champs sont plantés de vignes, d'amandiers et d'oliviers. En février, les champs se remplissent d'amandiers en fleurs roses. Pinoso compte de nombreux bars, restaurants et magasins, un nouveau centre médical ouvert 24 heures sur 24, des dentistes, deux écoles primaires et un collège, ainsi qu'un théâtre. Il y a un excellent centre sportif avec des piscines extérieures, des courts de tennis, des terrains de football et une salle de sport, une bibliothèque et de nombreuses autres installations, dont une belle aire de pique-nique parmi les pins, avec des barbecues, des espaces de détente et l'eau courante.
Cette information donnée ici est sujette à des erreurs et ne fait partie d'aucun contrat. L'offre peut être modifiée ou retirée sans préavis. Les prix n'incluent pas les coûts d'achat