
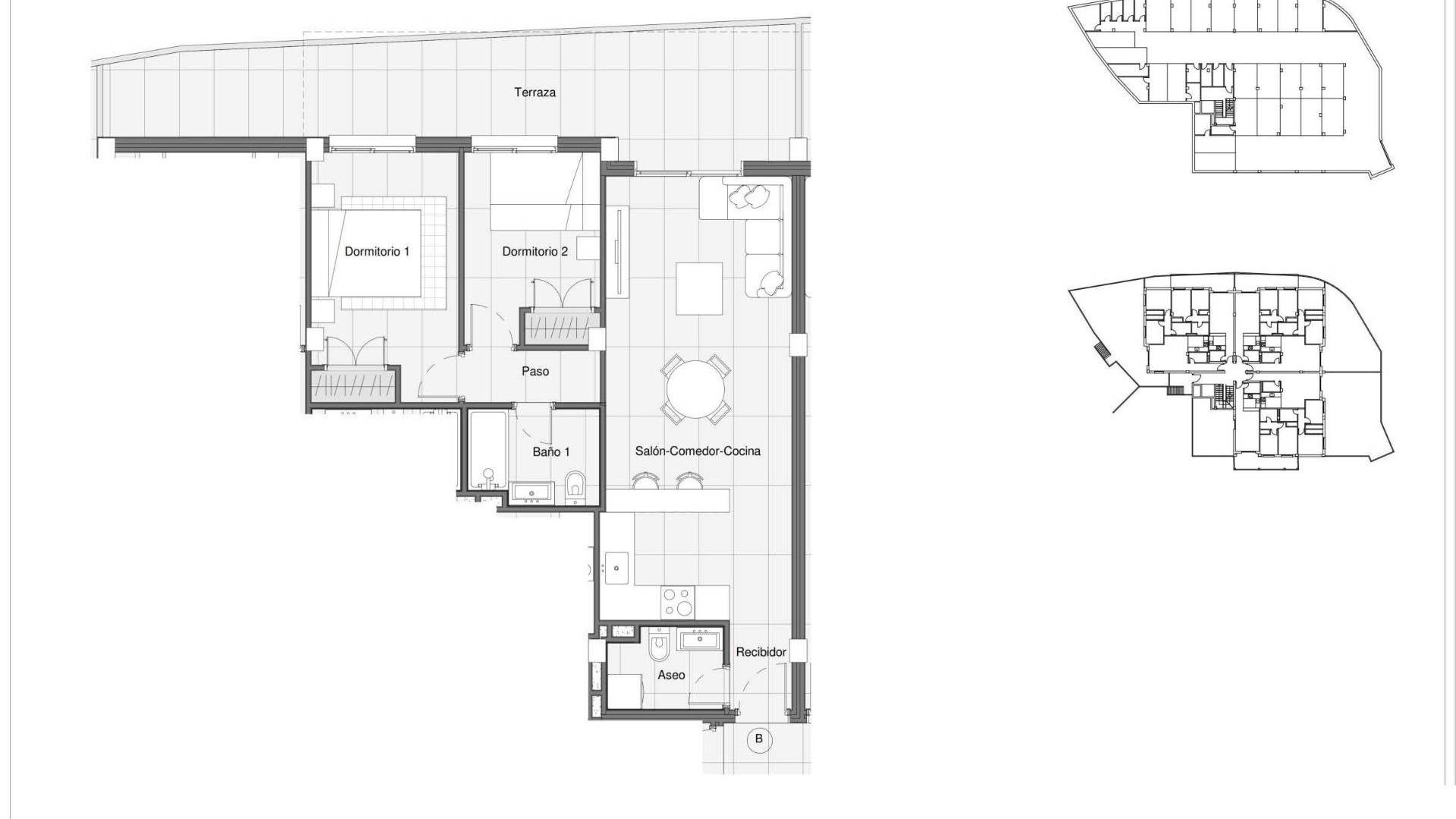
Appartements neufs à Bigastro Costa Blanca Vie résidentielle moderne à Vega Baja del Segura Ce nouveau complexe résidentiel est situé au cœur de la région de Vega Baja del Segura, dans la charmante ville de Bigastro, à Alicante. Réputée pour son atmosphère paisible et son cadre traditionnel, Bigastro offre un excellent équilibre entre nature, confort et proximité des principales destinations côtières de la Costa Blanca. À quelques minutes d'Orihuela et à proximité de Torrevieja et Guardamar del Segura, cet emplacement est idéal pour ceux qui recherchent la tranquillité sans renoncer à la connectivité et aux services. Appartements contemporains avec espaces extérieurs Le bâtiment se compose d'un rez-de-chaussée et de trois étages et propose des appartements modernes avec 2 chambres, 1 salle de bains et 1 toilette pour invités, avec suffisamment d'espace pour ajouter une douche supplémentaire. Chaque logement a été conçu pour maximiser l'espace et la lumière naturelle. Les appartements du rez-de-chaussée disposent de grandes terrasses ou de jardins privés, ceux des étages intermédiaires offrent des terrasses spacieuses et les penthouses bénéficient de solariums privés, parfaits pour profiter de la vie en plein air toute l'année. Finitions de qualité et équipements inclus Tous les appartements sont livrés avec des spécifications de haute qualité conçues pour le confort et l'efficacité. Les équipements comprennent une installation complète de climatisation par conduits, des cuisines meublées et équipées d'appareils électroménagers, des volets électriques et des salles de bains équipées de meubles, de miroirs et de parois de douche. Une place de parking souterrain est incluse avec chaque logement, et certaines unités bénéficient également d'un débarras privé. Espaces communs et style de vie méditerranéen Le complexe résidentiel offre une piscine commune bien conçue et des jardins paysagers, créant un environnement relaxant pour les résidents. Entouré de terres agricoles traditionnelles, de collines douces et de sentiers de randonnée, le quartier invite à pratiquer des activités de plein air telles que la marche et le vélo, favorisant un mode de vie méditerranéen sain dans un cadre sûr et accueillant. Situation géographique et services locaux de Bigastro Bigastro est une commune accueillante située au sud d'Alicante, à proximité de tous les services essentiels, notamment des supermarchés, des écoles, des centres médicaux, des installations sportives et une offre gastronomique variée. Malgré son environnement calme, la ville bénéficie d'excellentes liaisons routières via l'autoroute AP 7, ce qui permet de se déplacer rapidement et facilement le long de la Costa Blanca. Distances vers les principaux points d'intérêt Centre-ville d'Orihuela : 5 km Plages de Guardamar del Segura : 25 km Torrevieja : 30 km Centre commercial Zenia Boulevard : 30 km Aéroport international d'Alicante Elche : 55 km Terrains de golf les plus proches : 20 km Une maison idéale ou une opportunité d'investissement Que vous recherchiez une résidence permanente, une maison de vacances ou un investissement intelligent sur la Costa Blanca, ces appartements neufs à Bigastro offrent un design moderne, un excellent rapport qualité-prix et un emplacement idéal. Contactez-nous dès aujourd'hui pour recevoir plus d'informations ou pour organiser une visite et acquérir votre nouvelle maison dans la région de Vega Baja.
Cette information donnée ici est sujette à des erreurs et ne fait partie d'aucun contrat. L'offre peut être modifiée ou retirée sans préavis. Les prix n'incluent pas les coûts d'achat