
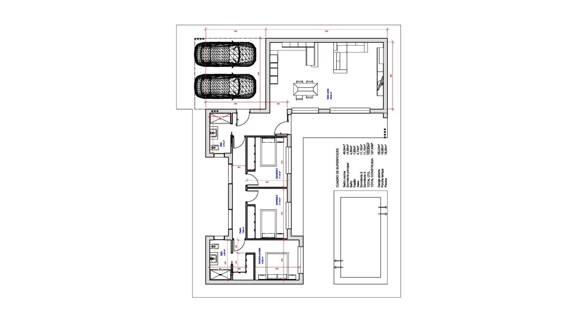
Villa moderne neuve sur un grand terrain rustique à Pinoso Une vie contemporaine dans un cadre rural paisible Découvrez cette élégante villa neuve située sur un grand terrain rustique de 10 700 m² à la périphérie de Pinoso, dans la province d'Alicante. Conçue pour ceux qui recherchent l'intimité, la tranquillité et un contact étroit avec la nature, cette maison moderne allie une architecture contemporaine au charme de la campagne espagnole. Entourée de vignobles, d'amandiers et d'oliviers, la propriété offre un style de vie serein à quelques minutes en voiture de tous les services locaux. Spacieuse villa de plain-pied avec piscine privée La villa est distribuée sur un seul niveau et comprend 3 chambres et 2 salles de bains, dont une en suite. L'agencement ouvert suit une conception en forme de L, séparant le salon des chambres pour plus de confort et d'intimité. La partie jour bénéficie de hauts plafonds qui renforcent la sensation d'espace et inondent l'intérieur de lumière naturelle. À l'extérieur, vous profiterez d'une terrasse privée et d'une piscine, parfaites pour vous détendre et vous divertir sous le soleil méditerranéen. La propriété comprend également un parking couvert pour deux voitures, le tout situé sur un grand terrain rustique qui offre des possibilités infinies pour le jardinage, les loisirs ou simplement pour profiter de la vue environnante. Équipements modernes et finitions de qualité Cette villa neuve est équipée d'une climatisation centralisée pour un confort tout au long de l'année. La cuisine est entièrement équipée et offre un espace fonctionnel et élégant pour la vie quotidienne. Le design moderne, associé à des matériaux de qualité, garantit une maison confortable et facile d'entretien, idéale pour y vivre à l'année ou pour s'y retirer à la campagne. Emplacement près de la ville de Pinoso La propriété est située juste à l'extérieur de la ville de Pinoso, un charmant village de l'intérieur des terres qui compte moins de 8 000 habitants. Réputé pour son rythme de vie tranquille et son atmosphère espagnole authentique, Pinoso offre un large éventail de commodités, notamment des bars, des restaurants, des magasins, un centre médical ouvert 24 heures sur 24, des dentistes, des écoles primaires et secondaires, un théâtre et un complexe sportif moderne avec des piscines extérieures, des courts de tennis, des terrains de football et une salle de sport. Le centre-ville de Pinoso est à environ 3 km. La ville d'Alicante est à environ 55 km, tandis que les plages de sable blanc de la Costa Blanca sont à environ 50 km. L'aéroport international d'Alicante est à environ 60 km de la propriété. La région est également proche de la frontière avec Murcie, ce qui ajoute encore plus de connectivité et de choix de style de vie. Un style de vie espagnol authentique en pleine nature Vivre à Pinoso, c'est profiter d'un style de vie rural traditionnel avec presque pas de circulation, des paysages ouverts et un fort sentiment de communauté. En février, la campagne environnante s'anime avec la floraison des amandiers, créant un spectacle naturel spectaculaire. La maison de campagne de vos rêves vous attend Cette villa moderne récemment construite à Pinoso offre l'équilibre parfait entre le confort contemporain et la tranquillité de la vie rurale. Contactez-nous dès aujourd'hui pour obtenir plus d'informations ou pour organiser une visite et faire le premier pas vers votre nouvelle maison dans la campagne espagnole.
Cette information donnée ici est sujette à des erreurs et ne fait partie d'aucun contrat. L'offre peut être modifiée ou retirée sans préavis. Les prix n'incluent pas les coûts d'achat